+17 fotó
Zenga
Premier
Hirdetéskód: 8991290
Referenciaszám: M328205
Feltöltve: ma
Zsámbék eladó ikerház 2+2 fél szobás: 92,5 millió Ft
92,5 millió Ft
929,6 ezer Ft/m² *
* A m² árat a hirdető adta meg.
99 m²
137 m²
2+2 fél szoba

Friss hirdetések, amiket nem találsz meg más ingatlankereső portálon.
Fedezd fel elsőként a Zenga Premier címkés eladó ingatlanokat! További részletek A Duna House, OTP Ingatlanpont, Otthon Centrum és további hálózatok új, kizárólagos hirdetéseinek nagy részét a zenga.hu és koltozzbe.hu ingatlankeresőn láthatod legelőször, és a feltöltéstől két hétig nem érhetők el más ingatlankeresőn!
Leírás
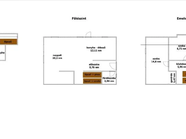
Pest megye, Zsámbék 99,5 nm-es ikerház eladó saját kerttel.
A tehermentes ingatlan az Angyalárok lakópark kertvárosias környezetében helyezkedik el, amelyhez kizárólagos használatú, 137,79 nm-es saját kert tartozik. A tégla falazatú, szigetelt ikerház lakóterülete 84 nm, ahol tágas amerikai konyhás nappali, egy szoba, két félszoba, gardrób, egy zuhanyzós és egy kádas fürdőszoba került kialakításra. Az ingatlan része továbbá egy 31 nm-es pince is, ahol garázs, tároló és mosókonyha kapott helyet, a kertben pedig térkövezett terasz és külön kerti tároló is rendelkezésre áll.
A fűtést gáz cirkó biztosítja radiátoros hőleadással, a nappaliban pedig hűtő-fűtő klíma is beépítésre került. A nyílászárók műanyagok, redőnnyel és szúnyoghálóval felszereltek.
Az ingatlan az elmúlt évben több felújításon esett át: megújult a gépesített konyhabútor, valamint az amerikai konyhás nappali burkolata is cserére került. A beépített szekrények mellett a szigetelt padlástér további tárolási lehetőséget kínál.
Kiváló adottságokkal rendelkező ingatlan, csendes, családi házas övezetben, ideális választás családok számára.
Amennyiben felkeltette érdeklődését, további kérdések esetén várom hívását, akár hétvégén is!
Kedvezményes kamatú hitellel, teljes körű ügyintézéssel segítjük ügyfeleinket díjtalanul, az adásvétel és ingatlanátírás teljes lebonyolításával.
Tulajdonságok
Ikerház
3
Újszerű
Gázkazán
2007
C
Vedd fel a kapcsolatot a hirdetővel

+36 20 487 4
Hitelkalkulátor
Második évtől
398 078 Ft A 13. hónaptól
7,99%
Végig fix Futamidő: 20 év Banki visszahívás
Az OTP Bank munkatársai a neked megfelelő napszakban veszik fel veled a kapcsolatot. A becslés a hirdető által megadott adatokon alapul. A jelen tájékoztatás nem minősül ajánlattételnek és nem teljes körű, az egyes feltételek a hitelbírálat eredményétől függően változhatnak. Kérjük, a részletekről tájékozódj az OTP Bank fiókjaiban vagy az OTP Bank honlapján közzétett vonatkozó Üzletszabályzatokból és Hirdetményekből.
Vedd fel a kapcsolatot a hirdetővel

+36 20 487 4
Vedd fel a kapcsolatot a hirdetővel

+36 20 487 4
UI_KIT.CHARACTER_COUNTER__COMPONENT.ACTUAL_CHARACTER__SR_ONLY UI_KIT.CHARACTER_COUNTER__COMPONENT.MAXIMUM_CHARACTER__SR_ONLY
Hasonló eladó ingatlanok Zsámbékon
Frissítve: 9 napja
8
99,9 millió Ft 882,9 ezer Ft/m²
Eladó ikerház, Zsámbék

Frissítve: ma
7
99,9 millió Ft 884,1 ezer Ft/m²
Eladó ikerház, Zsámbék

Frissítve: 9 napja
7
99,9 millió Ft 977,8 ezer Ft/m²
Eladó ikerház, Zsámbék


Fedezd fel a
hasonló házakat!Még további házak Pest megyében 92,5 M Ft körüli értékben
Tovább a hirdetésekhez Frissítve: ma
8
99,9 millió Ft 979,4 ezer Ft/m²
Eladó ikerház, Zsámbék

Frissítve: 9 napja
12
99,9 millió Ft 974 ezer Ft/m²
Eladó ikerház, Zsámbék, Határ út

Frissítve: 9 napja
11
99,9 millió Ft 974 ezer Ft/m²
Eladó ikerház, Zsámbék, Határ út

