+17 fotó
Hirdetéskód: 8818851
Referenciaszám: UZ019240
Frissítve: 26 napja
Budapest X. kerület eladó iroda és irodaház 550 m² alapterületű: 277 millió Ft
277 millió Ft
503 636 Ft/m²
550 m²
1020 m²
Eladó üzletként működő családi ház a Keresztúri úton!
Eladóvá vált egy családi házban működő gyártó cég telephelyeként szolgáló ingatlan!
Az ingatlan saját 1020 m2-es telekkel rendelkezik, ami a Keresztúri úton található!
BEFEKTETÉSI LEHETŐSÉG! ELADÁS-VISSZABÉRLÉSI KONSTRUKCIÓVAL IS!
A tulajdonos, eladás után az ingatlant akár hosszútávú bérleti szerződéssel is visszabérelné.
Az ingatlan főbb jellemzői:
- Az épület szintjei a földszint, emelet és az alagsor
- Fűtése cirkó kazán
- Víz, gáz, csatorna bekötve
- Minden helyiség fűtött
- Az emeleten 6, a földszinten 4, az alagsorban 1 klímaberendezés található
- Az ingatlan riasztó- és kamerarendszerrel felszerelt
- Az ingatlanhoz tartozik 3 faház, valamint 9 fémkonténer ( 3 konténer a szomszéd ingatlan területén található, érvényes bérleti szerződés jár hozzá)
- Az udvaron 10-12 parkolóhely található
- Az épület szigeteléssel rendelkezik
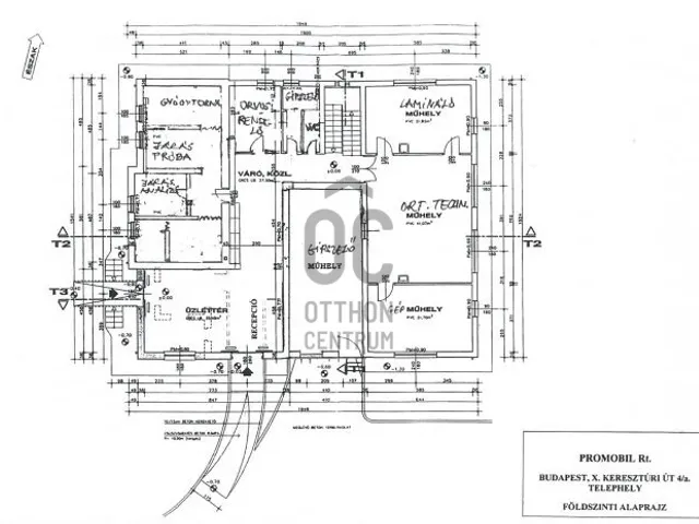
A földszinti helységek (315 cm-es belmagasság, 255,4 m2) :
- előtér/recepció 28 m2
-üzlet 23,08 m2
-orvosi váróterem
-orvosi rendelő
-5 kisebb helyiség
-1 mellékhelyiség
-4 műhely 89 m2
- közlekedő
Az emeleti helységek (255 cm-es belmagasság, 167 m2) :
-6 irodahelyiség
-2 mellékhelyiség
-1 teakonyha
- közlekedő
Az alagsori helységek (235 cm-es belmagasság, 128,43 m2):
-2 műhely 45 m2
-1 raktár 14,46 m2
-1 konyha 14,46 m2
-1 öltöző 6,8 m2
-1 zuhanyzó 2,8 m2
-1 mellékhelyiség 1,4 m2
-kazánház 12,3 m2
- közlekedő
Az ingatlan tömegközlekedéssel, személygépjárművel, és tehergépkocsival is kiválóan megközelíthető.
A gyártóegységek képei érthető módon nem publikusak, de kérésre elküldöm őket.
Az épület családi házon kívül használható irodának, logisztikai központnak, hostel-nek, műhelynek, irodaháznak, és számtalan lehetőség adott a jó közlekedés és elosztás miatt.
100 méteres körzetben SPAR, Aldi, egyéb üzletek, valamit benzinkút is található.
BKK megállók a közelben:
Busz: 44, 45, 67, 277
HÉV: H8, H9
Éjszakai: 908, 908A, 931
Tulajdonságok
Iroda és irodaház
Gázkazán
1989
Nem adta meg a hirdető
Vedd fel a kapcsolatot a hirdetővel
+36 70 465 6
Vedd fel a kapcsolatot a hirdetővel
+36 70 465 6
Vedd fel a kapcsolatot a hirdetővel
+36 70 465 6
UI_KIT.CHARACTER_COUNTER__COMPONENT.ACTUAL_CHARACTER__SR_ONLY UI_KIT.CHARACTER_COUNTER__COMPONENT.MAXIMUM_CHARACTER__SR_ONLY
Hasonló eladó ingatlanok Felsőrákos városrészben
Frissítve: 18 napja
5
299 M Ft 56 003 Ft/m²
Eladó kereskedelmi és ipari ingatlan, Budapest X. kerület

Frissítve: 14 napja
12
262,89 M Ft 1 228 458 Ft/m²
Eladó kereskedelmi és ipari ingatlan, Budapest VII. kerület
Frissítve: 1 hónapja
18
300 M Ft 675 676 Ft/m²
Eladó kereskedelmi és ipari ingatlan, Budapest VIII. kerület


Fedezd fel a
hasonló hirdetéseket!Még további kereskedelmi és ipari ingatlanok Budapesten 277 M Ft körüli értékben
Tovább a hirdetésekhez Frissítve: 24 napja
17
299 M Ft 199 333 Ft/m²
Eladó kereskedelmi és ipari ingatlan, Budapest XVII. kerület, Újmajori utca

Frissítve: ma
18
300 M Ft 675 676 Ft/m²
Eladó kereskedelmi és ipari ingatlan, Budapest VIII. kerület, Kerepesdűlő

Frissítve: 21 napja
8
250,15 M Ft 1 397 486 Ft/m²
Eladó kereskedelmi és ipari ingatlan, Budapest XIV. kerület

