+17 fotó
Hirdetéskód: 8799781
Referenciaszám: HK-5091954-5091954
Frissítve: ma
Eger eladó iroda és irodaház 140 m² alapterületű: 149 millió Ft
149 millió Ft
1 064 286 Ft/m²
140 m²
3 szoba
Eladó Ház, Eger
Elegáns családi ház extrákkal és vendégház-lehetőséggel a Deák Ferenc utcában
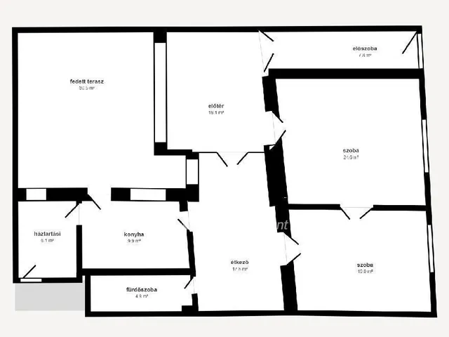
Heves vármegye, Eger belvárosnak közelében egy 140 m2-es elegáns és modern kényelmi megoldásokkal felszerelt családi ház eladó.
Az ingatlan a Deák Ferenc utcában található, rendezett környezetben. A házban előszoba, fényes nappali, 2 tágas hálószoba, étkező, konyha, zuhanyzós fürdőszoba WC-vel, valamint egy praktikus házimunka helyiség található, ahonnan a pince is megközelíthető. Az 50 m2-es, fűthető pince kis ablakkal rendelkezik, jelenleg klubszobaként van kialakítva. A házhoz tartozik továbbá egy 60 m2-es fedett terasz, amely ideális szabadtéri pihenésre és vendégfogadásra. A fürdőszoba járólappal, a többi helyiség pedig laminált padlóval burkolt. Az otthon melegét hőszivattyús rendszer biztosítja, alternatívaként gáz-cirkó és kályha is rendelkezésre áll.
Az ingatlan néhány éve jelentős felújításon esett át: hőszivattyús fűtési-hűtési rendszer kiépítése, 10 kW-os napelemrendszer telepítése a tetőre, a teljes villamos hálózat korszerűsítése, elektromos redőnyök, kamera-, riasztó- és beléptetőrendszer telepítése, az eredeti fa ablakokat felújítása, hőszigetelt üvegezéssel.
A ház előtt saját, 4-5 autó számára kényelmes parkoló áll rendelkezésre.
Az ingatlan minden részlete átgondolt, jól megtervezett és magas minőséget képvisel. Nemcsak családi háznak, de vendégháznak, elegáns orvosi rendelőnek vagy irodának is kiváló választás.
A ház jelenlegi berendezéssel együtt eladó, így akár azonnal költözhető. A bútorzat a vételár részét képezi, de igény esetén megállapodás tárgyát képezheti.
További információért hívjon bizalommal, akár hétvégén is. Ügyfeleink számára igény esetén kedvező hitellehetőséget, megbízható ügyvédi közreműködést és irodai hátteret biztosítunk a szerződéskötéshez. Kérem, érdeklődéskor hivatkozzon az M317855 számra.
Referencia szám: M317855-ZE
Tulajdonságok
Iroda és irodaház
Felújított
1950
Nem adta meg a hirdető
Vedd fel a kapcsolatot a hirdetővel
+36 70 907 0
Vedd fel a kapcsolatot a hirdetővel
+36 70 907 0
Vedd fel a kapcsolatot a hirdetővel
+36 70 907 0
UI_KIT.CHARACTER_COUNTER__COMPONENT.REMAINING_SPACE__SR_ONLYUI_KIT.CHARACTER_COUNTER__COMPONENT.MAXIMUM_CHARACTER__SR_ONLY
Hasonló eladó ingatlanok Egerben
Frissítve: 3 napja
14
150,79 M Ft 538 529 Ft/m²
Eladó kereskedelmi és ipari ingatlan, Eger, Mátyás király út

Frissítve: 4 napja
4
150 M Ft 11 876 Ft/m²
Eladó kereskedelmi és ipari ingatlan, Eger

Frissítve: 17 napja
20
380 000 Euro
147,44 M Ft 156 851 Ft/m²
Eladó kereskedelmi és ipari ingatlan, Eger


Fedezd fel a
hasonló hirdetéseket!Még további kereskedelmi és ipari ingatlanok Heves megyében 149 M Ft körüli értékben
Tovább a hirdetésekhez Frissítve: 28 napja
4
135 M Ft 253 759 Ft/m²
Eladó kereskedelmi és ipari ingatlan, Hatvan
Frissítve: 15 napja
12
139,9 M Ft 382 240 Ft/m²
Eladó kereskedelmi és ipari ingatlan, Hatvan

Frissítve: 27 napja
1
160 M Ft 7 963 Ft/m²
Eladó kereskedelmi és ipari ingatlan, Gyöngyös

Töltsd fel hirdetésed ingyenesen!
Egyszerű
