+10 fotó
Hirdetéskód: 8175831
Referenciaszám: 112437
Frissítve: 22 napja
Miskolc eladó iroda és irodaház 2591 m² alapterületű: 395 millió Ft
395 millió Ft
152,5 ezer Ft/m²
2591 m²
23 szoba
Eladó 2591 m2 iroda irodaházban, Miskolc
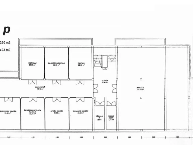
Miskolc központjában, búzatér szomszédságában, 6 szintes (pince, földszint és 4 emelet) irodaépület "üzletház" besorolással és a hozzá tartozó, de külön helyrajzi számon található "üzem" besorolású ingatlan eladó!
Az ingatlan részletes ismertetése:
- Kivett üzem:
Telek terület 2461 m², amin egy 644 m² -es vasbeton tartószerkezetes, egy légterű, csarnok található, amit úgy alakítottak ki, hogy a tartó oszlopok között, egymástól független, szekcionált garázskapukon keresztül lehet a csarnokba bejutni.
A területen jelenleg 20 db szeméjgépkocsi parkoló van kialakítva.
- Üzletház (Iroda épület)
Alapterülete tulajdoni lap szerint 506 m², ezen a területen kialakított irodák összes hasznos alapterülete 2591 m².
Az épület a 80-as években vasbeton oszlopos szerkezettel épült, így a szintek egybefüggő teret alkotnak, amit könnyen variálhatóan fel lehet osztani, akár egymástól független bérlők fogadására is alkalmas.
Fűtése önálló Fan Coil fűtő/hűtő rendszer
levegő cserélő és szellőztető rendszerrel., A pince és legfelső szint kivételével minden szinten külön nő-férfi WC. és mosdók lettek kialakítva. Teakonyha szintén minden szinten megtalálható.
Közlekedés:
Villamos és városi, ill. távolsági buszmegállók néhány perc séta távolságban elérhetők.
Autópálya 7 perc (3,9 km)
BOSCH 9 perc (3,7 km)
Déli ipari park 15 perc (7 km)
Tulajdonságok
Iroda és irodaház
Átlagos
Nem adta meg a hirdető
Vedd fel a kapcsolatot a hirdetővel
+36 20 447 4
Vedd fel a kapcsolatot a hirdetővel
+36 20 447 4
Vedd fel a kapcsolatot a hirdetővel
+36 20 447 4
UI_KIT.CHARACTER_COUNTER__COMPONENT.ACTUAL_CHARACTER__SR_ONLY UI_KIT.CHARACTER_COUNTER__COMPONENT.MAXIMUM_CHARACTER__SR_ONLY
Hasonló eladó ingatlanok Belváros városrészben
Frissítve: 2 napja
20
395 millió Ft 320,6 ezer Ft/m²
Eladó kereskedelmi és ipari ingatlan, Miskolc, Zsarnai telep

Frissítve: 22 napja
15
395 millió Ft 1,07 millió Ft/m²
Eladó kereskedelmi és ipari ingatlan, Bogács
Frissítve: 1 hónapja
11
420 millió Ft 2,66 millió Ft/m²
Eladó kereskedelmi és ipari ingatlan, Szeged, Belváros
Frissítve: 2 éve
13
380 millió Ft 197,9 ezer Ft/m²
Eladó kereskedelmi és ipari ingatlan, Dorog
Frissítve: 22 napja
8
380 millió Ft 364,7 ezer Ft/m²
Eladó kereskedelmi és ipari ingatlan, Budapest X. kerület, Jászberényi út

Frissítve: 12 napja
20
427 millió Ft 251,2 ezer Ft/m²
Eladó kereskedelmi és ipari ingatlan, Törökbálint

