

+11 fotó
Hirdetéskód: 8280222
Referenciaszám: UZ017695
Frissítve: 8 napja
Pécs eladó iroda és irodaház 140 m² alapterületű: 79 millió Ft
79 millió Ft
564 286 Ft/m²
140 m²
398 m²
MŰHELY, IRODA, ÜZLET , MINDEN LEHETSÉGES!!!!
**PÉCSETT ELADÓ KIVÁLÓ BEFEKTETÉSI LEHETŐSÉG: TÖBBFUNKCIÓS INGATLAN A BELVÁROSHOZ KÖZEL!**
Fedezze fel ezt a REMEK LEHETŐSÉGET Pécs keleti oldalán, ahol egy jó elhelyezkedésű ingatlan várja új tulajdonosát! A 398 m²-es telekterületen egy körülbelül 140 m²-es lakóingatlan található, amely jelenleg ipari ingatlanként funkcionál, de lakóingatlan-ként nyilvántartott. Az ingatlan kiváló LOKÁCIÓVAL büszkélkedhet, hiszen mindössze 2 km-re van a városközponttól.
Az ingatlan megközelítése egyszerű és KÉNYELMES mind gyalogosan, mind gépjárművel. A parkolás az utcában INGYENES. Az ingatlan környezetében minden szükséges KOMMUNÁLIS ellátás megtalálható: iskola, óvoda, üzletközpontok mindössze 1 km-es körzetben helyezkednek el.
Az épület a 2000-es évek elején TELJES FELÚJÍTÁSON esett át, amely magában foglalta a modern tégla falazat és műanyag nyílászárók beépítését, valamint a tetőszerkezet cseréjét is. Az ingatlan összközműves, villany és gáz közművekkel felszerelt. A fűtés gázkonvektorokkal biztosított, a műhelyekben LED világítás gondoskodik a fényről.
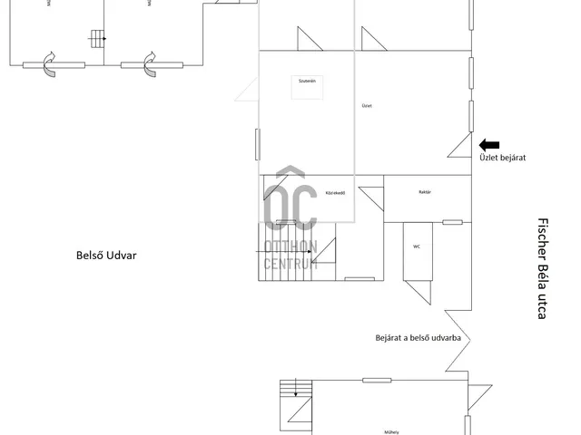
A telek egyik fő eleme a 70 m²-es üzlethelyiség, mely többféle célra alkalmas, valamint a három műhely, amelyek együttesen 76 m² alapterülettel rendelkeznek. Az épületekhez tartozik még egy garázs is, míg a 180 m²-es belső udvar ideális legalább három autó tárolására.
Ez az ingatlan nemcsak lakóhelyként, de üzleti célra is REMEKÜL HASZNOSÍTHATÓ, köszönhetően a meglévő infrastrukturális kapacitásainak és a JÓ STRATÉGIAI ELHELYEZKEDÉSÉNEK. Akár befektetésnek, akár saját vállalkozása számára keresi az IDEÁLIS helyet, ebben a lehetőségben minden adottság megvan a sikerhez.
Ne hagyja ki ezt a KIHAGYHATATLAN ajánlatot! Tekintse meg személyesen és fedezze fel a benne rejlő összes lehetőséget!
Tulajdonságok
Iroda és irodaház
Nem adta meg a hirdető
Vedd fel a kapcsolatot a hirdetővel
+36 70 465 6
Vedd fel a kapcsolatot a hirdetővel
+36 70 465 6
Vedd fel a kapcsolatot a hirdetővel
+36 70 465 6
UI_KIT.CHARACTER_COUNTER__COMPONENT.REMAINING_SPACE__SR_ONLYUI_KIT.CHARACTER_COUNTER__COMPONENT.MAXIMUM_CHARACTER__SR_ONLY
Hasonló eladó ingatlanok Belváros városrészben
Frissítve: 7 napja

7
72 M Ft 120 000 Ft/m²
Eladó kereskedelmi és ipari ingatlan, Pécs, Dobogó dűlő

Frissítve: 7 napja

13
79,9 M Ft 551 034 Ft/m²
Eladó kereskedelmi és ipari ingatlan, Pécs

Frissítve: 7 napja

7
79 M Ft 395 000 Ft/m²
Eladó kereskedelmi és ipari ingatlan, Pécs, Bokor utca


Fedezd fel a
hasonló hirdetéseket!Még további kereskedelmi és ipari ingatlanok Baranya megyében 79 M Ft körüli értékben
Tovább a hirdetésekhez Frissítve: 6 napja

7
79 M Ft 395 000 Ft/m²
Eladó kereskedelmi és ipari ingatlan, Pécs, Diós

Frissítve: 7 napja

10
75 M Ft 150 000 Ft/m²
Eladó kereskedelmi és ipari ingatlan, Kővágószőlős, Nincs utca

Frissítve: 8 napja

15
80 M Ft 200 000 Ft/m²
Eladó kereskedelmi és ipari ingatlan, Komló, Kökönyös


Töltsd fel hirdetésed ingyenesen!
Egyszerű