+10 fotó
Hirdetéskód: 8953970
Referenciaszám: M326335
Frissítve: 3 napja
Szécsény eladó iroda és irodaház 618 m² alapterületű: 130 millió Ft
130 millió Ft
210 356 Ft/m² *
* A m² árat a hirdető adta meg.
618 m²
Leírás
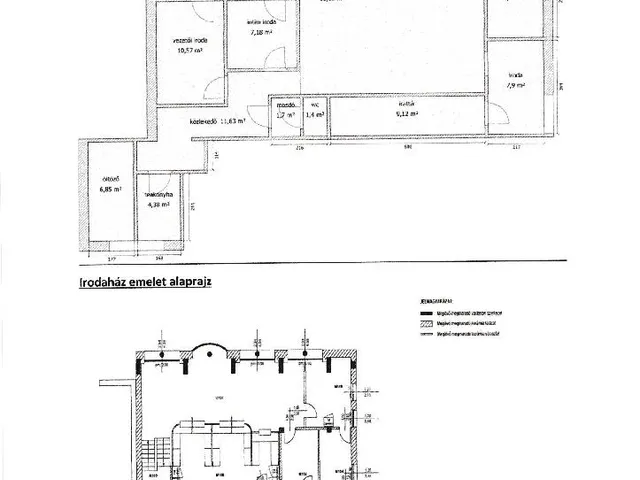
Az ingatlan Szécsény központjában a Rákóczi út és a Feszty Árpád utca találkozásában található a környezetében többnyire kereskedelmi és szolgáltató ingatlanok láthatóak. Az irodaház 410 m2 térmértékű, szabálytalan alakú, 2 közterület által határolt, sík területű, szabálytalan alakú telken helyezkedik el. Az épület az 1994-ben épült, melyben bankfiók üzemel(t), az épületben található helyiségek kialakítása is ennek megfelelően funkcionális pl. széf, zsilip, 24H. zóna, lakossági széf, valamint a bankfiókra kiterjedő biztonsági rendszerek.
Az irodaházban 2017-ben két albetétet hoztak alakítottak ki, a földszinten, az épület középső részében, nagy utcai portállal rendelkező, Szécsény főutcájáról (Rákóczi út) megközelíthető bankfiókot, valamint a pince, emeleti és galériaszinteken és a földszint ?maradék? részén a Feszty Árpád utca felől elérhető, iroda funkciókkal rendelkező albetétet, melyben található helyiségek kialakítása funkcionális.
Az albetétek közös fűtési rendszeren vannak (fűtőberendezés a 1286/A/1 hrsz. albetétben található) valamint közös mérőórákkal rendelkeznek. Az épület elektromos kapcsolórendszere a 1286/A/2 hrsz. albetétben található. Központi fűtés, fűtőberendezés és HMV a 1286/A/1 hrsz.-on
található kombi cirkó gázkazánnal történik, hőleadás acéllemez radiátorokkal biztosított. A 1286/A/2 hrsz. galériaszintjén található, egykor az egész épület fűtését és melegvíz-ellátását biztosító kazánhelyiségből a gépészetet kiszerelték, valamint a rendszerről leválasztották.
Az ingatlanban magas biztonsági elvárások szerint telepített biztonsági rendszer található, a pinceszinten a falazaton több helyen vizesedés eredményeként salétromosodás figyelhető meg. A 1286/A/2 hrsz. albetét szemmel láthatóan évek óta használatlanul áll, szükséges minimális karbantartásokkal.
Tulajdonságok
Iroda és irodaház
Átlagos
Nincs fűtés
1994
Nem adta meg a hirdető
Vedd fel a kapcsolatot a hirdetővel
+36 70 393 4
Vedd fel a kapcsolatot a hirdetővel
+36 70 393 4
Vedd fel a kapcsolatot a hirdetővel
+36 70 393 4
UI_KIT.CHARACTER_COUNTER__COMPONENT.ACTUAL_CHARACTER__SR_ONLY UI_KIT.CHARACTER_COUNTER__COMPONENT.MAXIMUM_CHARACTER__SR_ONLY
Hasonló eladó ingatlanok Szécsényben
Frissítve: 3 napja
13
130 M Ft 210 356 Ft/m²
Eladó kereskedelmi és ipari ingatlan, Szécsény

Feltöltve: 1 éve
1
120,2 M Ft 400 667 Ft/m²
Eladó kereskedelmi és ipari ingatlan, Alsótold, Szabadság utca 4.
Frissítve: 3 napja
1
129,9 M Ft 214 003 Ft/m²
Eladó kereskedelmi és ipari ingatlan, Romhány

Frissítve: 3 napja
5
129,9 M Ft 214 003 Ft/m²
Eladó kereskedelmi és ipari ingatlan, Romhány

Frissítve: 2 napja
9
135 M Ft 268 924 Ft/m²
Eladó kereskedelmi és ipari ingatlan, Tápiószentmárton

Frissítve: 1 éve
1
138 M Ft 197 143 Ft/m²
Eladó kereskedelmi és ipari ingatlan, Doboz
