Hirdetéskód: 8925264
Referenciaszám: CS-1-2026
Feltöltve: 1 hónapja
Szeged eladó iroda és irodaház 62 m² alapterületű: 75 millió Ft
75 millió Ft
1,21 millió Ft/m²
62 m²
3 szoba
Újépítésű iroda a Csemegi utcában
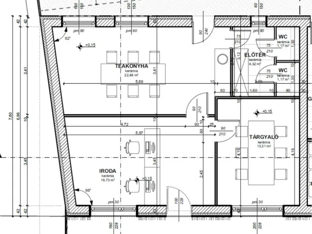
Szeged Újrókus városrészében épülő tégla társasház földszintjén eladó egy új építésű, 62 m2 nettó alapterületű, utcafronti bejáratú iroda.
Helyiségei:
- iroda (19,7 m2)
- tárgyaló (13,3 m2)
- teakonyha (22,5 m2)
- dupla mosdó előtérrel (6,7 m2)
Energiatakarékos kialakítás: Az épület fűtéséről hőszivattyú gondoskodik, padlófűtéses hőleadóval.
A hűtés fan-coil berendezéssel megoldott.
Az iroda irányára: 75 M Ft+ 27% ÁFA
Az ár kulcsrakész állapotra vonatkozik!
Kulcsrakész állapot tervezett időpontja: 2026. december.
Az irodához garázs (15 M Ft) vagy udvari beálló (5 M Ft) is vásárolható.
Kialakításának köszönhetően hasznosíthatósága széles körű: irodaként, üzlethelyiségként, de akár orvosi rendelőként is használható.
Az ingatlan előre egyeztetett időpontban megtekinthető.
Amennyiben az ingatlan felkeltette érdeklődését, forduljon hozzám bizalommal, elérhetőségeimen állok szíves rendelkezésére!
Tulajdonságok
Iroda és irodaház
4
Új építésű
Hőszivattyú
2026
Nem adta meg a hirdető
Vedd fel a kapcsolatot a hirdetővel
+36 30 391 7
Vedd fel a kapcsolatot a hirdetővel
+36 30 391 7
Vedd fel a kapcsolatot a hirdetővel
+36 30 391 7
UI_KIT.CHARACTER_COUNTER__COMPONENT.ACTUAL_CHARACTER__SR_ONLY UI_KIT.CHARACTER_COUNTER__COMPONENT.MAXIMUM_CHARACTER__SR_ONLY
Hasonló eladó ingatlanok Újrókus városrészben
Frissítve: 11 napja
9
74,99 millió Ft 646,5 ezer Ft/m²
Eladó kereskedelmi és ipari ingatlan, Szeged, Kiskundorozsma
Frissítve: 4 napja
11
80 millió Ft 708 ezer Ft/m²
Eladó kereskedelmi és ipari ingatlan, Szeged, Belváros
Frissítve: 4 napja
10
70 millió Ft 546,9 ezer Ft/m²
Eladó kereskedelmi és ipari ingatlan, Szeged, Felsőváros

Fedezd fel a
hasonló hirdetéseket!Még további kereskedelmi és ipari ingatlanok Csongrád megyében 75 M Ft körüli értékben
Tovább a hirdetésekhez Frissítve: 20 napja
12
79,9 millió Ft 508,9 ezer Ft/m²
Eladó kereskedelmi és ipari ingatlan, Szeged, Szőreg
Frissítve: 20 napja
0
79,8 millió Ft 950 ezer Ft/m²
Eladó kereskedelmi és ipari ingatlan, Szeged, Felsőváros
Frissítve: 20 napja
11
70 millió Ft 887,5 ezer Ft/m²
Eladó kereskedelmi és ipari ingatlan, Szeged
