Hirdetéskód: 8956829
Referenciaszám: IR081503
Frissítve: 1 napja
Szentendre eladó iroda és irodaház 98 m² alapterületű: 129,9 millió Ft
129,9 millió Ft
1,33 millió Ft/m² *
* A m² árat a hirdető adta meg.
98 m²
4 szoba
Leírás
Egy újabb megújuló ház Szentendrén!
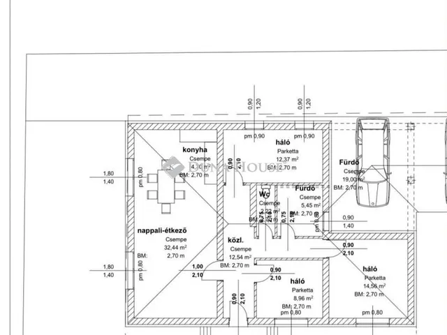
Szentendre központi részéhez közel, de már csendes, családi házas övezetben kínálunk megvételre egy 1970-es években épült, most azonban teljesen megújuló családi házat.Az épület új tetőszerkezetet kap, a stabil tégla falak és a beton alap megtartásával minden egyéb a mai kornak megfelelő, minőségi anyagokból újraéled.Új műanyag nyílászárók kerülnek beépítésre, a fűtésről gáz cirko kazán gondoskodik majd. A belső terek is teljesen átalakulnak:- amerikai konyhás nappali- 3 külön bejáratú szoba- külön fürdőszoba és wc
Az udvar is megszépül. Az autóbeálló térkövezve lesz. Az telek határt új, modern, gondozásmentes kerítés jelzi majd.
A telek 322nm, a ház 98nm.
Kulcsrakész állapotban kerül átadásra, melynek ára: 129.900.000ft
Az ingatlan iroda besorolású, ezért a lakossági 3%-os hitel és egyéb, kedvező kamatozású hitel sem igényelhető a megvásárláshoz. Lakossági piaci hitellel vagy készpénzzel megvásárolható!
De! A vállalkozások erre az ingatlanra megigényelhetik a 3%-os hitelt!Kiválóan alkalmas a ház- irodának- vállalkozás telephelyének- orvosi rendelőnek- és ...
Tervezett ádadás: 2026. augusztus 31.
Érdemes mielőbb a vásárlás mellett dönteni, hogy a felújítás már saját elképzelés alapján történjen! ( Burkolatok, szaniterek, színek kiválasztása, extrák átbeszélése, ...)Érdeklődés esetén a pontos műszaki tartalom rendelkezésre áll.
További részletekért várom hívását! A kivitelezés RUGALMAS!
Tulajdonságok
Iroda és irodaház
1
Új építésű
Gázkazán
1970
Nem adta meg a hirdető
Vedd fel a kapcsolatot a hirdetővel

+36 26 664 0
Vedd fel a kapcsolatot a hirdetővel

+36 26 664 0
Vedd fel a kapcsolatot a hirdetővel

+36 26 664 0
UI_KIT.CHARACTER_COUNTER__COMPONENT.ACTUAL_CHARACTER__SR_ONLY UI_KIT.CHARACTER_COUNTER__COMPONENT.MAXIMUM_CHARACTER__SR_ONLY
Hasonló eladó ingatlanok Szentendrén
Frissítve: 1 hónapja
2
129,9 millió Ft 1,33 millió Ft/m²
Eladó kereskedelmi és ipari ingatlan, Szentendre

Feltöltve: 1 éve
1
128 millió Ft 984,6 ezer Ft/m²
Eladó kereskedelmi és ipari ingatlan, Vámosmikola, Ipolysági út 3
Frissítve: 1 napja
16
125 millió Ft 4,01 millió Ft/m²
Eladó kereskedelmi és ipari ingatlan, Cegléd


Fedezd fel a
hasonló hirdetéseket!Még további kereskedelmi és ipari ingatlanok Pest megyében 129,9 M Ft körüli értékben
Tovább a hirdetésekhez Frissítve: 11 napja
20
125 millió Ft 543,5 ezer Ft/m²
Eladó kereskedelmi és ipari ingatlan, Bugyi

Frissítve: 7 napja
18
130 millió Ft 324,2 ezer Ft/m²
Eladó kereskedelmi és ipari ingatlan, Cegléd

Frissítve: 11 napja
20
139,9 millió Ft 174,9 ezer Ft/m²
Eladó kereskedelmi és ipari ingatlan, Szigethalom

