+11 fotó
Hirdetéskód: 8885983
Referenciaszám: M318181-5146810
Frissítve: 4 napja
Baracska eladó kertes ház 41 m² alapterületű: 29,9 millió Ft
29,9 millió Ft
729 268 Ft/m²
41 m²
961 m²
1+3 fél szoba
Eladó Ház, Baracska
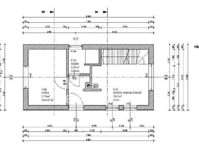
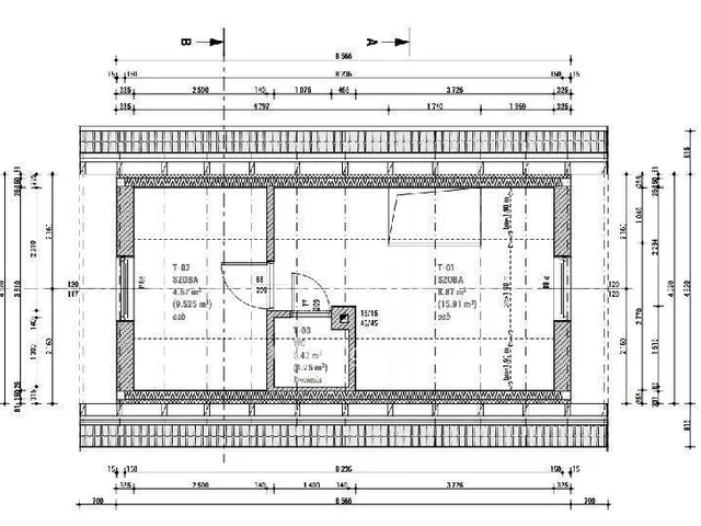
Fejér megye, Baracska 41 nm-es ház eladó. A zártkerti, művelés alól kivett ingatlan -NINCS KIFÜGGESZTÉS- egy 961 nm-es telken helyezkedik el, közel a vasútállomáshoz.
A 2022-ben épült ingatlan földszintje tégla falazatú, a tetőtér könnyűszerkezetes. A nyílászárók 2 rétegű műanyagok. A házban nappali konyha étkező egyben, 3 félszoba, fürdőszoba, külön mosdó található. A közművek közül a villany (1x32A) a házba bevezetve, a vizet az 51 méter mély fúrt kút adja, a szennyvízelvezetés emésztővel megoldott. Jelenleg a fűtést egy kályha biztosítja, az ingatlanba hűtő fűtő klíma lett tervezve. Megvásárlása tökéletes lehetőség álmai otthona megteremtéséhez csendes, barátságos környezetben, közel Budapesthez és a Velencei tóhoz.
Az OTP Ingatlanpont teljeskörű ügyintézéssel áll az eladók és a vevők rendelkezésére! A választott ingatlan finanszírozásához kedvezményes hitel, és pénzügyi konstrukciókat kínálunk. Az adásvétel teljes folyamatát végigkísérjük és ügyvédi közreműködést biztosítunk!
Amennyiben felkeltette érdeklődését az ingatlan, várom megtisztelő hívását akár hétvégén is!
M318181
Tulajdonságok
Kertes ház
Átlagos
Egyéb
2022
Nem adta meg a hirdető
Vedd fel a kapcsolatot a hirdetővel
+36 70 406 0
Hitelkalkulátor
Második évtől
128 676 Ft A 13. hónaptól
7,99%
Végig fix Futamidő: 20 év Banki visszahívás
Az OTP Bank munkatársai a neked megfelelő napszakban veszik fel veled a kapcsolatot.Vedd fel a kapcsolatot a hirdetővel
+36 70 406 0
Vedd fel a kapcsolatot a hirdetővel
+36 70 406 0
UI_KIT.CHARACTER_COUNTER__COMPONENT.ACTUAL_CHARACTER__SR_ONLY UI_KIT.CHARACTER_COUNTER__COMPONENT.MAXIMUM_CHARACTER__SR_ONLY
Hasonló eladó ingatlanok Baracskán
Frissítve: 4 napja
19
28,9 M Ft 722 500 Ft/m²
Eladó üdülő, hétvégi ház, Baracska

Frissítve: 4 napja
17
29,9 M Ft 474 603 Ft/m²
Eladó üdülő, hétvégi ház, Baracska

Frissítve: 4 napja
14
29,9 M Ft 727 494 Ft/m²
Eladó üdülő, hétvégi ház, Baracska


Fedezd fel a
hasonló hirdetéseket!Még további üdülő és hétvégi házak Fejér megyében 29,9 M Ft körüli értékben
Tovább a hirdetésekhez Frissítve: ma
14
29,9 M Ft 729 268 Ft/m²
Eladó üdülő, hétvégi ház, Baracska

Frissítve: 4 napja
14
29,9 M Ft 729 268 Ft/m²
Eladó üdülő, hétvégi ház, Baracska

Frissítve: 4 napja
14
29,9 M Ft 729 268 Ft/m²
Eladó üdülő, hétvégi ház, Baracska

