+17 fotó
Hirdetéskód: 8948741
Referenciaszám: M298308-5187475
Frissítve: 16 napja
Kulcs eladó kertes ház 90 m² alapterületű: 16,5 millió Ft
16,5 millió Ft
183,3 ezer Ft/m²
90 m²
898 m²
2 szoba
Eladó Ház, Kulcs
Nyaraló Kulcson, csodás kilátással!
Eladásra kínálok egy nyaralót Kulcson üdülőövezetben, a Dunától rövid sétányi távolságra.
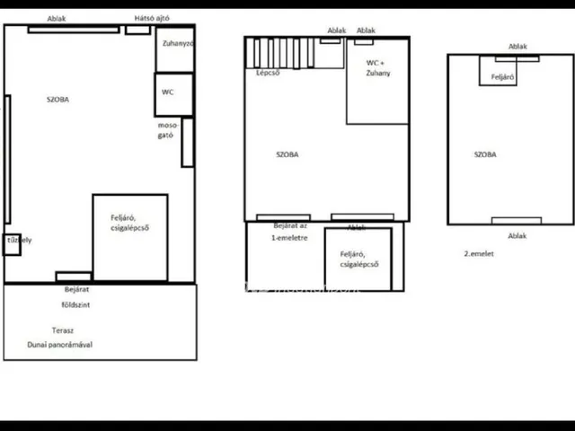
A nyaraló 50 m2 alapterületű, 3 szintes, összesen kb 90 m2-es, mely 898 m2-es telken helyezkedik el. Az épület téliesített, állandó lakhatásra alkalmas szigetelt faház, terasszal.
Az ingatlanban 2 szoba, nappali konyhával, zuhanyzós fürdőszoba, 2 wc található.
Keletre néző ablakaiból gyönyörű örök panorámás kilátás esik a Dunára. Vezetékes víz, villany a házban, emésztő a ház mellett lett kiépítve.
2 autónak alkalmas betonozott beálló a ház előtt található.
Iskola, óvoda, bölcsőde 15 perc séta.
Az M6-os ill. 6-os út közelségének köszönhetően könnyen megközelíthető Dunaújváros, illetve Budapest és környéke is.
A faluban sportpálya, játszótér, orvosi rendelő is van.
Megtekintésért, vagy ha kérdése lenne, forduljon hozzám bizalommal.
Referenciaszám: M298308
Az energetikai tanúsítvány készítése folyamatban van, amint rendelkezésre áll, úgy azzal a hirdetés frissítésre kerül.
Tulajdonságok
Kertes ház
Átlagos
Elektromos
1974
Nem adta meg a hirdető
Vedd fel a kapcsolatot a hirdetővel

Marczi Aletta
OTPip - Szigetszentmiklós Tököli út 19.B - OTP Ingatlanpont Iroda
Az iroda összes hirdetése +36 70 599 0
Hitelkalkulátor
Második évtől
71 008 Ft A 13. hónaptól
7,99%
Végig fix Futamidő: 20 év Banki visszahívás
Az OTP Bank munkatársai a neked megfelelő napszakban veszik fel veled a kapcsolatot.Vedd fel a kapcsolatot a hirdetővel

Marczi Aletta
OTPip - Szigetszentmiklós Tököli út 19.B - OTP Ingatlanpont Iroda
Az iroda összes hirdetése +36 70 599 0
Vedd fel a kapcsolatot a hirdetővel

Marczi Aletta
OTPip - Szigetszentmiklós Tököli út 19.B - OTP Ingatlanpont Iroda
Az iroda összes hirdetése +36 70 599 0
UI_KIT.CHARACTER_COUNTER__COMPONENT.ACTUAL_CHARACTER__SR_ONLY UI_KIT.CHARACTER_COUNTER__COMPONENT.MAXIMUM_CHARACTER__SR_ONLY
Hasonló eladó ingatlanok Kulcson
Frissítve: 4 napja
20
16,5 millió Ft 183,3 ezer Ft/m²
Eladó nyaraló, Kulcs

Feltöltve: 1 éve
1
16,5 millió Ft 330 ezer Ft/m²
Eladó nyaraló, Kulcs
Frissítve: 3 napja
7
14,99 millió Ft 416,4 ezer Ft/m²
Eladó nyaraló, Kulcs, Sőtér sétány


Fedezd fel a
hasonló hirdetéseket!Még további nyaralók Fejér megyében 16,5 M Ft körüli értékben
Tovább a hirdetésekhez Frissítve: 25 napja
11
16,5 millió Ft 471,4 ezer Ft/m²
Eladó nyaraló, Kulcs
Frissítve: 1 napja
20
16,5 millió Ft 183,3 ezer Ft/m²
Eladó nyaraló, Kulcs

Frissítve: 3 napja
18
15,9 millió Ft 467,6 ezer Ft/m²
Eladó nyaraló, Kulcs

