+13 fotó
Hirdetéskód: 8798958
Referenciaszám: M317864
Frissítve: 15 napja
Ajka eladó panellakás 1+2 fél szobás: 42,5 millió Ft
42,5 millió Ft
795 732 Ft/m² *
* A m² árat a hirdető adta meg.
55 m²
1+2 fél szoba
1. emelet
Leírás
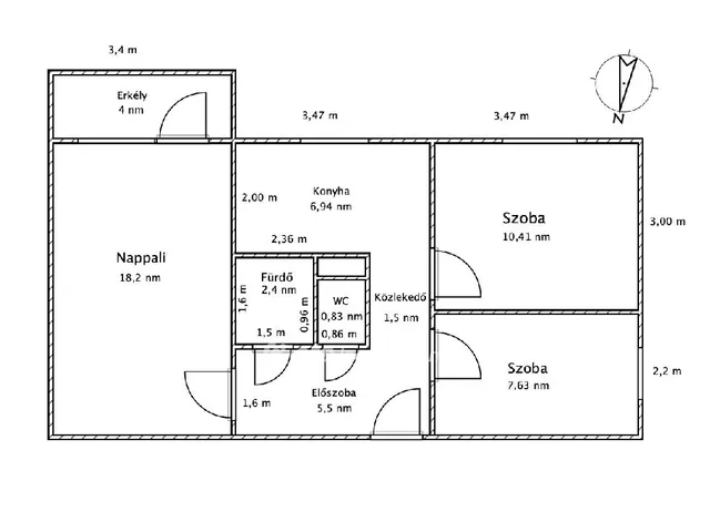
Eladó 55 nm-es első emeleti erkélyes lakás Ajka belváros.
Nagyon szép állapotú, földszinti lakás eladó, amely igényesen berendezett és kedvező elrendezéssel rendelkezik. Az ingatlan tágas, világos tereket kínál, ízléses burkolatokkal, és egy hangulatos erkély is hozzátartozik. A belváros szívében helyezkedik el, így minden fontos szolgáltatás és közlekedési lehetőség néhány perc alatt elérhető. Azonnal költözhető, ideális otthon lehet párok vagy kis családok számára. Ne hagyja ki ezt a kiváló lehetőséget!
Az OTP Ingatlanpont teljes körű ügyintézéssel áll az eladók és a vevők rendelkezésére. Az adásvételi szerződés megkötéséhez igény szerint megbízható ügyvédi közreműködést biztosítunk, és segítséget nyújtunk az adásvételhez kapcsolódó ügyek intézéséhez is. Az ingatlanról készült alaprajz, illetve fényképfelvételek az Otp ingatlanpont szellemi tulajdonát képezik. Amennyiben felkeltette érdeklődését az általam kínált ingatlan, keressen bizalommal! Ne habozzon tovább, hiszen ez a ház valóban páratlan lehetőséget kínál! SZEREZZE MEG EZT SZÉP OTTHONT, HÍVJA MOST A MEGADOTT TELEFONSZÁMOT!
Tulajdonságok
Panellakás
Átlagos
Távfűtés
1985
4 m²
Nem adta meg a hirdető
Vedd fel a kapcsolatot a hirdetővel
+36 30 100 9
Hitelkalkulátor
Második évtől
182 901 Ft A 13. hónaptól
7,99%
Végig fix Futamidő: 20 év Banki visszahívás
Az OTP Bank munkatársai a neked megfelelő napszakban veszik fel veled a kapcsolatot. A becslés a hirdető által megadott adatokon alapul. A jelen tájékoztatás nem minősül ajánlattételnek és nem teljes körű, az egyes feltételek a hitelbírálat eredményétől függően változhatnak. Kérjük, a részletekről tájékozódj az OTP Bank fiókjaiban vagy az OTP Bank honlapján közzétett vonatkozó Üzletszabályzatokból és Hirdetményekből.
Vedd fel a kapcsolatot a hirdetővel
+36 30 100 9
Vedd fel a kapcsolatot a hirdetővel
+36 30 100 9
UI_KIT.CHARACTER_COUNTER__COMPONENT.REMAINING_SPACE__SR_ONLYUI_KIT.CHARACTER_COUNTER__COMPONENT.MAXIMUM_CHARACTER__SR_ONLY
Hasonló eladó ingatlanok Ajkán
Frissítve: 16 napja
20
41,9 M Ft 665 079 Ft/m²
Eladó lakás, Ajka

Frissítve: 4 hónapja
1
44 M Ft 687 500 Ft/m²
Eladó lakás, Ajka, Alkotmány utca 39.
Frissítve: 3 hónapja
1
41 M Ft 803 922 Ft/m²
Eladó lakás, Ajka

Fedezd fel a
hasonló lakásokat!Még további lakások Veszprém megyében 42,5 M Ft körüli értékben
Tovább a hirdetésekhez Frissítve: 15 napja
16
41,99 M Ft 777 593 Ft/m²
Eladó lakás, Ajka

Frissítve: 1 napja
14
44,9 M Ft 863 462 Ft/m²
Eladó lakás, Ajka

Frissítve: 1 napja
16
41,99 M Ft 777 593 Ft/m²
Eladó lakás, Ajka

