+10 fotó
Hirdetéskód: 8828524
Referenciaszám: H510931-5108711
Feltöltve: ma
Budapest III. kerület eladó panellakás 2 szobás: 69,9 millió Ft
69,9 millió Ft
1 398 000 Ft/m²
50 m²
2 szoba
5. emelet
Eladó lakás Budapest 3. ker., Békásmegyer
Új tulajdonosát keresi a III. kerületben, Békásmegyeren, csendes és zöld környezetben egy 50 m2-es, 2 különnyíló szobás, világos, jó állapotú panellakás, karbantartott társasházban. Ha élhető, jól felszerelt, biztonságos és természetközeli környéken szeretné megtalálni új otthonát, ezt feltétlenül nézze meg!
KÖRNYÉK és KÖZLEKEDÉS:
- Budapest III. kerülete, Békásmegyeri lakótelep Duna felőli oldala.
- Kiváló infrastruktúrával és közlekedéssel rendelkező, nagyon szerethető és biztonságos környék.
- Bicikliút vezet a Római-part felé, közel van a Hármashatár-hegy, Csillaghegyi strand és a budai hegyek is.
- A lakástól néhány perce elérhető minden, ami a hétköznapokhoz szükséges.
- A 204, 296, 134, 34-es buszok megállója és a H5-ös HÉV pár perc sétatávolság.
- A ház közvetlen környezetében bölcsőde, óvoda és iskola, orvosi rendelő, gyógyszertár is rendelkezésre áll.
- A bevásárlást a közelben található Auchan, Prima, Spar, Lidl és Aldi biztosítja.
TÁRSASHÁZ:
- 1990-es évek elején épült, 10 szintes, liftes panel épület.
- Műszakilag rendszeresen karbantartott, gondozott társasház.
- Lépcsőháza rendezett, a lift felújítása megtörtént, 2026 tavaszán a szigetelés is kivitelezésre kerül.
- Lakóközössége kulturált, csendes, vegyes korosztály.
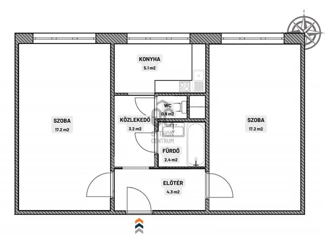
LAKÁS:
- Ötödik emeleti, 50 m2-es, 2 szobás, világos és jó elosztású ingatlan.
- Műszakilag és esztétikailag is jó állapotú lakás.
- Elosztása: előszoba-közlekedő, konyha+étkező, 2 szoba, fürdőszoba, külön WC.
- A nappali és a hálószoba tájolása déli, a lakás világos és logikusan bútorozható terekkel rendelkezik.
- A szobák ablakai fákra és zöld területre néznek.
- A lakásban több nagy méretű beépített szekrény segíti a helykihasználást és tárolást.
- Az ablakos konyha szintén beépített bútorokkal ellátott.
- A szobák laminált parkettával, a közlekedő, konyha, fürdőszoba járólappal burkolt.
- Fűtése távfűtés egyedi méréssel, a hő-leadást radiátorok biztosítják.
- Közös költsége 12.500 Ft/hó, víz és villanyfogyasztás is egyedi mérés alapján fizetendő.
AZ INGATLAN MEGTEKINTHETŐ:
- Személyesen
- Online személyes bejelentkezéssel
FINANSZÍROZÁSI KÉRDÉSEKBEN – ONLINE ÜGYINTÉZÉSSEL IS – SEGÍTÜNK!
- Bank-független hitelcenterünk díjmentesen versenyezteti az összes bank és hitelintézet ajánlatát.
- Önnek csak annyi a dolga, hogy egyeztet munkatársunkkal, majd kiválasztja a hosszú távon is legkedvezőbb konstrukciót.
- Szakértőink 20 év tapasztalattal, fogyasztóbarát lakáshitelekkel, babaváró hitellel és teljes körű CSOK Plusz és OTTHON START program ügyintézéssel várják.
- Időpont-egyeztetéssel munkaidő után is elérhetők.
Kérdéseire szívesen válaszolok, kérem hívjon bizalommal!
Tulajdonságok
Panellakás
Jó állapotú
Távfűtés egyedi méréssel
1995
Nem adta meg a hirdető
Vedd fel a kapcsolatot a hirdetővel
+36 70 467 9
Hitelkalkulátor
Második évtől
300 818 Ft A 13. hónaptól
7,99%
Végig fix Futamidő: 20 év Banki visszahívás
Az OTP Bank munkatársai a neked megfelelő napszakban veszik fel veled a kapcsolatot.Hitelfelvétel esetén akár egy héttel rövidebb lehet az ügyintézés.
Ez az ingatlan a nálunk meglévő adatok alapján azonnali értékbecslésre alkalmas lehet.
A becslés a hirdető által megadott adatokon alapul. A jelen tájékoztatás nem minősül ajánlattételnek és nem teljes körű, az egyes feltételek a hitelbírálat eredményétől függően változhatnak. Kérjük, a részletekről tájékozódj az OTP Bank fiókjaiban vagy az OTP Bank honlapján közzétett vonatkozó Üzletszabályzatokból és Hirdetményekből.
Vedd fel a kapcsolatot a hirdetővel
+36 70 467 9
Vedd fel a kapcsolatot a hirdetővel
+36 70 467 9
UI_KIT.CHARACTER_COUNTER__COMPONENT.REMAINING_SPACE__SR_ONLYUI_KIT.CHARACTER_COUNTER__COMPONENT.MAXIMUM_CHARACTER__SR_ONLY
Hasonló eladó ingatlanok Békásmegyer városrészben
Frissítve: 17 napja
6
70,49 M Ft 1 958 056 Ft/m²
Eladó lakás, Budapest III. kerület, Békásmegyer

Feltöltve: 7 hónapja
14
66,5 M Ft 1 303 922 Ft/m²
Eladó lakás, Budapest III. kerület, Békásmegyer

Frissítve: 15 napja
10
69 M Ft 1 352 941 Ft/m²
Eladó lakás, Budapest III. kerület, Békásmegyer


Fedezd fel a
hasonló lakásokat!Még további lakások Budapest III. kerület, Békásmegyer városrészben 69,9 M Ft körüli értékben
Tovább a hirdetésekhez Frissítve: 3 hónapja
9
69 M Ft 1 352 941 Ft/m²
Eladó lakás, Budapest III. kerület, Békásmegyer

Frissítve: 21 napja
15
73,9 M Ft 1 296 491 Ft/m²
Eladó lakás, Budapest III. kerület, Békásmegyer

Frissítve: 1 napja
8
65,9 M Ft 1 156 140 Ft/m²
Eladó lakás, Budapest III. kerület, Békásmegyer


Töltsd fel hirdetésed ingyenesen!
Egyszerű