+11 fotó
Hirdetéskód: 8858247
Referenciaszám: H511419-5128576
Frissítve: ma
Budapest III. kerület eladó panellakás 3 szobás: 69,9 millió Ft
69,9 millió Ft
1 226 316 Ft/m²
57 m²
3 szoba
5. emelet
Eladó lakás Budapest 3. ker., Békásmegyer
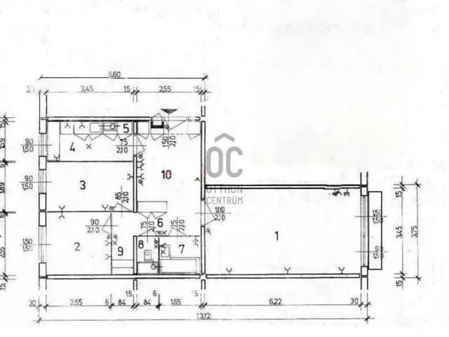
Békásmegyer Hegy-felöldi oldalán, a lakótelep szélén eladóvá vált egy jó adottságokkal rendelkező 3-szobás lakás.
A LAKÁS az 5. emeleten van, - és mivel a lakótelep szélső épülete, É-felé szép kilátása van a budakalászi dombok felé. A D-i oldalon is parkra néz az ablak.
É-D-i tájolásának köszönhetően kellemesen világos, D-i oldalról árad be a napfény. (Nem mellesleg jól átszellőztethető)
ELRENDEZÉSE nagyon praktikus: ha belépünk egy tágas étkezőbe érkezünk, ahonnan valamennyi további helyiség nyílik.
Kifejezetten nagy méretű nappalija kényelmesen berendezhető. A másik oldalon elhelyezett 2 hálószoba a fürdővel és a külön wc-vel jól elkülönül a nappali tartózkodási tértől, így a korábban pihenni vágyókat nem zavarja az esetleges hangos beszélgetés, TV-nézés...
Konyhája világos, praktikus elrendezésű, sok pakolóhellyel.
A lakásban sok praktikus beépített szekrény van, ami szintén része a vételárnak.
MŰSZAKI ÁLLAPOTÁT tekintve az elmúlt 25 évben több felújítás is történt.
Az elektromos vezetékek cserélve lettek, a konyha és fürdőszoba mintegy 8 éve lett újragondolva, burkolatok is akkor lettek cserélve.
A műanyag nyílászárók redőnnyel és szúnyoghálóval vannak ellátva.
FŰTÉSről távhő gondolskodik egyedi méréssel. De mivel nagyon meleg a lakás, jellemzően csupán a hideg téli hetekben kell bekapcsolni a radiátorokat. Ennek köszönhetően igen kellemes rezsi költségekkel lehet számolni.
A hűtésről klímakészülék gondoskodik.
Közös költség: 16.000,-Ft
LOKÁCIÓJA tökéletes. A lakótelepen 3-5 perc sétatávolságon belül van orvos, patika, bölcsi, ovi, suli, bevásárlási lehetőség.
A 160-as busz szinte a ház előtt áll meg, a HÉV-megálló pedig 10 percen belüli sétatávolságban van.
A lakás a START PLUSZ hitel felvételére is alkalmas, ideális választás fiatal párnak kisgyerekkel.
Tulajdonságok
Panellakás
Jó állapotú
Távfűtés egyedi méréssel
1978
Nem adta meg a hirdető
Vedd fel a kapcsolatot a hirdetővel
+36 70 465 6
Hitelkalkulátor
Második évtől
300 818 Ft A 13. hónaptól
7,99%
Végig fix Futamidő: 20 év Banki visszahívás
Az OTP Bank munkatársai a neked megfelelő napszakban veszik fel veled a kapcsolatot.Hitelfelvétel esetén akár egy héttel rövidebb lehet az ügyintézés.
Ez az ingatlan a nálunk meglévő adatok alapján azonnali értékbecslésre alkalmas lehet.
A becslés a hirdető által megadott adatokon alapul. A jelen tájékoztatás nem minősül ajánlattételnek és nem teljes körű, az egyes feltételek a hitelbírálat eredményétől függően változhatnak. Kérjük, a részletekről tájékozódj az OTP Bank fiókjaiban vagy az OTP Bank honlapján közzétett vonatkozó Üzletszabályzatokból és Hirdetményekből.
Vedd fel a kapcsolatot a hirdetővel
+36 70 465 6
Vedd fel a kapcsolatot a hirdetővel
+36 70 465 6
UI_KIT.CHARACTER_COUNTER__COMPONENT.REMAINING_SPACE__SR_ONLYUI_KIT.CHARACTER_COUNTER__COMPONENT.MAXIMUM_CHARACTER__SR_ONLY
Hasonló eladó ingatlanok Békásmegyer városrészben
Feltöltve: 9 hónapja
14
66,5 M Ft 1 303 922 Ft/m²
Eladó lakás, Budapest III. kerület, Békásmegyer

Frissítve: 21 napja
10
67,9 M Ft 1 331 373 Ft/m²
Eladó lakás, Budapest III. kerület, Békásmegyer

Frissítve: 21 napja
9
67,9 M Ft 1 331 373 Ft/m²
Eladó lakás, Budapest III. kerület, Békásmegyer


Fedezd fel a
hasonló lakásokat!Még további lakások Budapest III. kerület, Békásmegyer városrészben 69,9 M Ft körüli értékben
Tovább a hirdetésekhez Frissítve: 5 napja
15
73,9 M Ft 1 296 491 Ft/m²
Eladó lakás, Budapest III. kerület, Békásmegyer

Frissítve: 8 napja
8
65,9 M Ft 1 156 140 Ft/m²
Eladó lakás, Budapest III. kerület, Békásmegyer

Frissítve: 1 napja
1
66,4 M Ft 1 276 923 Ft/m²
Eladó lakás, Budapest III. kerület, Békásmegyer
