+10 fotó
Hirdetéskód: 8764097
Referenciaszám: H506877-5071121
Feltöltve: ma
Budapest III. kerület eladó panellakás 3 szobás: 79,9 millió Ft
79,9 millió Ft
1 175 000 Ft/m²
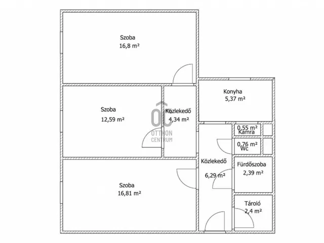
68 m²
3 szoba
9. emelet
Eladó lakás Budapest 3. ker., Óbuda
Eladó egy jó állapotú, 3 szobás panel lakás Óbuda központi részén.
- A fürdő, wc tavaly lett felújítva, az elektromos hálózat, a nyílászárók, a parketta és a konyha pedig korábban.
- Az ingatlan a 3%-os hitel feltételeinek megfelel!
- 3 külön nyíló, egész szoba, a lakás keleti fekvésű.
- Klíma van a nappaliban.
- 9. emelet, liftes, nem zárószinti.
- Biztonsági bejárati ajtó.
- Gardrób / tároló, ahova a mosógép elhelyezhető.
- Kamra / spájz.
- Akár 30 napon belül költözhető (kifizetéstől függően)
- Közös költség 17.000,- Ft/hó, a távhő szintén 17.000,- Ft/hó.
Amennyiben felkeltettem az érdeklődését, kérem hívjon a hét bármelyik napján!
Tulajdonságok
Panellakás
Jó állapotú
Távfűtés
1974
Nem adta meg a hirdető
Vedd fel a kapcsolatot a hirdetővel
+36 70 465 6
Hitelkalkulátor
Második évtől
343 853 Ft A 13. hónaptól
7,99%
Végig fix Futamidő: 20 év Banki visszahívás
Az OTP Bank munkatársai a neked megfelelő napszakban veszik fel veled a kapcsolatot.Hitelfelvétel esetén akár egy héttel rövidebb lehet az ügyintézés.
Ez az ingatlan a nálunk meglévő adatok alapján azonnali értékbecslésre alkalmas lehet.
A becslés a hirdető által megadott adatokon alapul. A jelen tájékoztatás nem minősül ajánlattételnek és nem teljes körű, az egyes feltételek a hitelbírálat eredményétől függően változhatnak. Kérjük, a részletekről tájékozódj az OTP Bank fiókjaiban vagy az OTP Bank honlapján közzétett vonatkozó Üzletszabályzatokból és Hirdetményekből.
Vedd fel a kapcsolatot a hirdetővel
+36 70 465 6
Vedd fel a kapcsolatot a hirdetővel
+36 70 465 6
UI_KIT.CHARACTER_COUNTER__COMPONENT.REMAINING_SPACE__SR_ONLYUI_KIT.CHARACTER_COUNTER__COMPONENT.MAXIMUM_CHARACTER__SR_ONLY
Hasonló eladó ingatlanok Óbuda városrészben
Frissítve: 4 napja
15
83,25 M Ft 1 850 000 Ft/m²
Eladó lakás, Budapest III. kerület, Óbuda
Frissítve: 2 hónapja
1
84,5 M Ft 1 224 638 Ft/m²
Eladó lakás, Budapest III. kerület, Óbuda
Feltöltve: 11 hónapja
11
74 M Ft 1 121 212 Ft/m²
Eladó lakás, Budapest III. kerület, Óbuda


Fedezd fel a
hasonló lakásokat!Még további lakások Budapest III. kerület, Óbuda városrészben 79,9 M Ft körüli értékben
Tovább a hirdetésekhez Frissítve: 4 napja
12
87 M Ft 1 526 316 Ft/m²
Eladó lakás, Budapest III. kerület, Óbuda
Frissítve: 4 napja
10
81 M Ft 1 653 061 Ft/m²
Eladó lakás, Budapest III. kerület, Óbuda
Frissítve: 5 napja
14
75,5 M Ft 1 572 917 Ft/m²
Eladó lakás, Budapest III. kerület, Óbuda

Töltsd fel hirdetésed ingyenesen!
Egyszerű