+13 fotó
Hirdetéskód: 8854035
Referenciaszám: M319625-5125907
Frissítve: ma
Budapest III. kerület eladó panellakás 2 szobás: 67 millió Ft
67 millió Ft
1 313 725 Ft/m²
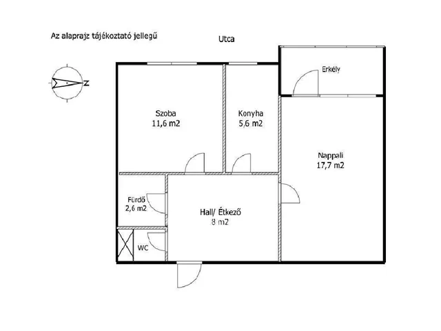
51 m²
2 szoba
9. emelet
Eladó Lakás, Budapest 3. ker.
Budapest III. kerületében, Óbuda kedvelt részén eladó egy 51 nm-es, 2 szobás, erkélyes, jó állapotú lakás.
Az ingatlan 9. emeleti, világos, kiváló benapozottságú, az erkélyről és a lakásból részleges kilátás nyílik a Budai-hegyek irányába. A Szentendrei út felőli elhelyezkedés ellenére a lakás csendes, amit a magas emelet és az új, korszerű nyílászárók biztosítanak.
Főbb jellemzők: új nyílászárók redőnyökkel, légkondicionált, praktikus elrendezés, tágas, beépített szekrény, jó műszaki és esztétikai állapot. Az ingatlan karbantartott társasházban, rendezett lakóközösségben található. Üres, azonnal költözhető.
A lakás 1/1 tulajdonban van, tehermentes, jogilag rendezett.
A Flórián tér, Szentlélek tér és a Duna közelsége kiváló infrastruktúrát biztosít: tömegközlekedés, üzletek, szolgáltatások néhány percen belül elérhetők.
Igény esetén külön megvásárolható egy önálló garázs, amely a környéken kifejezetten ritkaságnak számít.
Ez az ingatlan valóban olyan, ahová csak költözni kell ? ideális választás saját otthonnak vagy befektetésnek egyaránt.
Tulajdonságok
Panellakás
Jó állapotú
Távfűtés egyedi méréssel
1983
Nem adta meg a hirdető
Vedd fel a kapcsolatot a hirdetővel
Kéki Mónika OTPip - Budapest IX. kerület Üllői út 21 - OTP Ingatlanpont Iroda Az iroda összes hirdetése
+36 70 518 5
Hitelkalkulátor
Második évtől
288 337 Ft A 13. hónaptól
7,99%
Végig fix Futamidő: 20 év Banki visszahívás
Az OTP Bank munkatársai a neked megfelelő napszakban veszik fel veled a kapcsolatot.Hitelfelvétel esetén akár egy héttel rövidebb lehet az ügyintézés.
Ez az ingatlan a nálunk meglévő adatok alapján azonnali értékbecslésre alkalmas lehet.
A becslés a hirdető által megadott adatokon alapul. A jelen tájékoztatás nem minősül ajánlattételnek és nem teljes körű, az egyes feltételek a hitelbírálat eredményétől függően változhatnak. Kérjük, a részletekről tájékozódj az OTP Bank fiókjaiban vagy az OTP Bank honlapján közzétett vonatkozó Üzletszabályzatokból és Hirdetményekből.
Vedd fel a kapcsolatot a hirdetővel
Kéki Mónika OTPip - Budapest IX. kerület Üllői út 21 - OTP Ingatlanpont Iroda Az iroda összes hirdetése
+36 70 518 5
Vedd fel a kapcsolatot a hirdetővel
Kéki Mónika OTPip - Budapest IX. kerület Üllői út 21 - OTP Ingatlanpont Iroda Az iroda összes hirdetése
+36 70 518 5
UI_KIT.CHARACTER_COUNTER__COMPONENT.REMAINING_SPACE__SR_ONLYUI_KIT.CHARACTER_COUNTER__COMPONENT.MAXIMUM_CHARACTER__SR_ONLY
Hasonló eladó ingatlanok Óbuda városrészben
Feltöltve: 9 hónapja
1
66 M Ft 1 941 176 Ft/m²
Eladó lakás, Budapest III. kerület, Óbuda, Viador utca 7
Feltöltve: 5 hónapja
1
68,5 M Ft 1 397 959 Ft/m²
Eladó lakás, Budapest III. kerület, Óbuda, Szőlő utca
Frissítve: 27 napja
18
69,9 M Ft 2 588 889 Ft/m²
Eladó lakás, Budapest III. kerület, Óbuda


Fedezd fel a
hasonló lakásokat!Még további lakások Budapest III. kerület, Óbuda városrészben 67 M Ft körüli értékben
Tovább a hirdetésekhez Frissítve: 2 hónapja
1
66,9 M Ft 1 286 538 Ft/m²
Eladó lakás, Budapest III. kerület, Óbuda
Frissítve: 19 napja
19
69,9 M Ft 1 588 636 Ft/m²
Eladó lakás, Budapest III. kerület, Óbuda

Feltöltve: 3 hónapja
1
69,9 M Ft 1 294 444 Ft/m²
Eladó lakás, Budapest III. kerület, Óbuda

