+10 fotó
Hirdetéskód: 8891202
Referenciaszám: M322708-5150050
Frissítve: ma
Budapest III. kerület eladó panellakás 3 szobás: 93 millió Ft
93 millió Ft
1 430 769 Ft/m²
65 m²
3 szoba
3. emelet
Eladó Lakás, Budapest 3. ker.
Magas színvonalon felújított, 3. emeleti, panel lakás a Vörösvári úton eladó!
Képzeljen el egy csodálatos, frissen felújított lakást, ahol minden részlet a kényelem és a stílus jegyében készült.
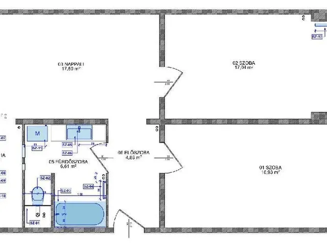
A Vörösvári úton található, 69 nm-es, három külön nyíló szobás otthon ideális választás családoknak és befektetőknek egyaránt.
A lakás a 3. emeleten helyezkedik el, világos és az elhelyezkedéséhez képest, a minőségi nyílászáróknak köszönhetően csendes, kilátással a környékre.
A lakás belsőépítész által megálmodott, magas színvonalon felújított, így Ön azonnal költözhet és élvezheti az új otthon minden előnyét.
A környék igazi kincs! A Flórián tér mindössze pár percre található, ahol könnyedén elérheti a tömegközlekedést, iskolákat, óvodákat és boltokat, ami nagyban segíti a családi élet szervezését.
A konyha teljesen új, egyedi bútorokkal és beépített Bosch gépekkel van felszerelve, így főzni még sosem volt ennyire élvezetes!
A fürdőszoba modern olasz burkolatai és prémium szaniterei pedig a luxus érzetét keltik.
A lakás alacsony rezsijű, hiszen távfűtéses, és minden új elektromos hálózattal, vízvezetékkel és radiátorokkal van ellátva.
Ráadásul a közös költség is kedvező, így Önnek csak élveznie kell az új otthonát!
Legyen Ön az első lakója ennek a különleges ingatlannak.
Ne hagyja ki ezt a remek lehetőséget!
Referencia szám: M322708
Tulajdonságok
Panellakás
Felújított
Távfűtés
1980
Nem adta meg a hirdető
Vedd fel a kapcsolatot a hirdetővel
Fodor Zoltán OTPip - Budapest XIII. kerület Pannónia utca 25 - OTP Ingatlanpont Iroda Az iroda összes hirdetése
+36 70 675 2
Hitelkalkulátor
Második évtől
400 230 Ft A 13. hónaptól
7,99%
Végig fix Futamidő: 20 év Banki visszahívás
Az OTP Bank munkatársai a neked megfelelő napszakban veszik fel veled a kapcsolatot.Hitelfelvétel esetén akár egy héttel rövidebb lehet az ügyintézés.
Ez az ingatlan a nálunk meglévő adatok alapján azonnali értékbecslésre alkalmas lehet.
A becslés a hirdető által megadott adatokon alapul. A jelen tájékoztatás nem minősül ajánlattételnek és nem teljes körű, az egyes feltételek a hitelbírálat eredményétől függően változhatnak. Kérjük, a részletekről tájékozódj az OTP Bank fiókjaiban vagy az OTP Bank honlapján közzétett vonatkozó Üzletszabályzatokból és Hirdetményekből.
Vedd fel a kapcsolatot a hirdetővel
Fodor Zoltán OTPip - Budapest XIII. kerület Pannónia utca 25 - OTP Ingatlanpont Iroda Az iroda összes hirdetése
+36 70 675 2
Vedd fel a kapcsolatot a hirdetővel
Fodor Zoltán OTPip - Budapest XIII. kerület Pannónia utca 25 - OTP Ingatlanpont Iroda Az iroda összes hirdetése
+36 70 675 2
UI_KIT.CHARACTER_COUNTER__COMPONENT.ACTUAL_CHARACTER__SR_ONLY UI_KIT.CHARACTER_COUNTER__COMPONENT.MAXIMUM_CHARACTER__SR_ONLY
Hasonló eladó ingatlanok Óbuda városrészben
Frissítve: 3 napja
12
87 M Ft 1 526 316 Ft/m²
Eladó lakás, Budapest III. kerület, Óbuda
Frissítve: 3 hónapja
1
96,5 M Ft 1 398 551 Ft/m²
Eladó lakás, Budapest III. kerület, Óbuda
Frissítve: 6 napja
12
98,18 M Ft 1 785 000 Ft/m²
Eladó lakás, Budapest III. kerület, Óbuda

Fedezd fel a
hasonló lakásokat!Még további lakások Budapest III. kerület, Óbuda városrészben 93 M Ft körüli értékben
Tovább a hirdetésekhez Feltöltve: 1 éve
1
89,9 M Ft 1 231 507 Ft/m²
Eladó lakás, Budapest III. kerület, Óbuda
Frissítve: 1 napja
10
88,9 M Ft 1 307 353 Ft/m²
Eladó lakás, Budapest III. kerület, Óbuda

Frissítve: ma
8
88,9 M Ft 1 307 353 Ft/m²
Eladó lakás, Budapest III. kerület, Óbuda


