+10 fotó
Hirdetéskód: 8891203
Referenciaszám: M322708-5149958
Frissítve: 1 napja
Budapest III. kerület eladó panellakás 3 szobás: 93 millió Ft
93 millió Ft
1 430 769 Ft/m²
65 m²
3 szoba
3. emelet
Eladó Lakás, Budapest 3. ker.
Magas színvonalon felújított, 3 szobás lakás eladó a Vörösvári úton
ENGLISH DESCRIPTION BELOW!!!
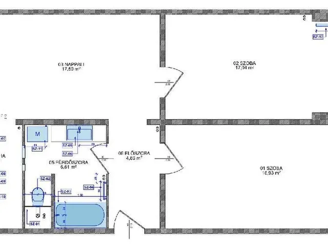
Budapest III. kerületében, a Vörösvári úton eladó egy 69 nm-es, 3 külön nyíló szobás, teljes körűen felújított lakás, a társasház 3. emeletén.
A lakás világos, jól tagolt terekkel rendelkezik, a minőségi nyílászáróknak köszönhetően pedig csendes, kellemes életteret biztosít. A felújítás belsőépítész tervei alapján, magas műszaki és esztétikai színvonalon valósult meg.
Főbb jellemzők:
69 nm alapterület, 3 külön nyíló szoba
Teljes körű felújítás, új elektromos hálózat és vízvezeték
Új radiátorok, minőségi nyílászárók
A konyha egyedi bútorokkal és beépített Bosch gépekkel felszerelt.
A fürdőszoba modern olasz burkolatokkal és prémium szaniterekkel készült.
A lakás távfűtéses, alacsony fenntartási költségekkel.
Kedvező közös költség.
Lokáció
A Flórián tér pár percre található, kiváló közlekedési kapcsolatokkal, üzletekkel, iskolákkal és óvodákkal.
Ideális családok számára, de kiváló befektetési lehetőség is.
Azonnal költözhető, legyen Ön az első lakója!
⸻
Fully Renovated 3-Bedroom Apartment for Sale on Vörösvári Road
In District III of Budapest, on Vörösvári Road, a 69 sqm, fully renovated apartment with 3 separate rooms is for sale on the 3rd floor.
The property is bright and quiet thanks to high-quality windows. The renovation was completed to high technical and aesthetic standards based on interior design plans.
Key features:
69 sqm, 3 separate rooms
Complete renovation, new electrical and plumbing systems
New radiators, quality windows
The kitchen is custom-designed with built-in Bosch appliances.
The bathroom features modern Italian tiles and premium sanitary fittings.
District heating ensures low utility costs.
Excellent location near Flórián Square with great transport, schools and shopping options nearby.
Move-in ready.
Referencia szám: M322708-ZE
Tulajdonságok
Panellakás
Felújított
Távfűtés
1980
Nem adta meg a hirdető
Vedd fel a kapcsolatot a hirdetővel
Gregoryan Artur OTPip - Budapest XIII. kerület Pannónia utca 25 - OTP Ingatlanpont Iroda Az iroda összes hirdetése
+36 70 630 0
Hitelkalkulátor
Második évtől
400 230 Ft A 13. hónaptól
7,99%
Végig fix Futamidő: 20 év Banki visszahívás
Az OTP Bank munkatársai a neked megfelelő napszakban veszik fel veled a kapcsolatot.Hitelfelvétel esetén akár egy héttel rövidebb lehet az ügyintézés.
Ez az ingatlan a nálunk meglévő adatok alapján azonnali értékbecslésre alkalmas lehet.
A becslés a hirdető által megadott adatokon alapul. A jelen tájékoztatás nem minősül ajánlattételnek és nem teljes körű, az egyes feltételek a hitelbírálat eredményétől függően változhatnak. Kérjük, a részletekről tájékozódj az OTP Bank fiókjaiban vagy az OTP Bank honlapján közzétett vonatkozó Üzletszabályzatokból és Hirdetményekből.
Vedd fel a kapcsolatot a hirdetővel
Gregoryan Artur OTPip - Budapest XIII. kerület Pannónia utca 25 - OTP Ingatlanpont Iroda Az iroda összes hirdetése
+36 70 630 0
Vedd fel a kapcsolatot a hirdetővel
Gregoryan Artur OTPip - Budapest XIII. kerület Pannónia utca 25 - OTP Ingatlanpont Iroda Az iroda összes hirdetése
+36 70 630 0
UI_KIT.CHARACTER_COUNTER__COMPONENT.ACTUAL_CHARACTER__SR_ONLY UI_KIT.CHARACTER_COUNTER__COMPONENT.MAXIMUM_CHARACTER__SR_ONLY
Hasonló eladó ingatlanok Óbuda városrészben
Frissítve: 1 napja
14
99,99 M Ft 1 098 791 Ft/m²
Eladó lakás, Budapest III. kerület, Óbuda
Frissítve: 1 napja
19
89,9 M Ft 936 458 Ft/m²
Eladó lakás, Budapest III. kerület, Óbuda, Szomolnok utca
Frissítve: 1 napja
20
84,9 M Ft 1 248 529 Ft/m²
Eladó lakás, Budapest III. kerület, Óbuda


Fedezd fel a
hasonló lakásokat!Még további lakások Budapest III. kerület, Óbuda városrészben 93 M Ft körüli értékben
Tovább a hirdetésekhez Frissítve: 1 napja
11
89,9 M Ft 1 198 667 Ft/m²
Eladó lakás, Budapest III. kerület, Óbuda

Frissítve: 1 napja
20
84,9 M Ft 1 248 529 Ft/m²
Eladó lakás, Budapest III. kerület, Óbuda

Frissítve: 1 napja
20
90,5 M Ft 1 330 883 Ft/m²
Eladó lakás, Budapest III. kerület, Óbuda

