+13 fotó
Hirdetéskód: 8846915
Referenciaszám: M319625-5122159
Feltöltve: 1 napja
Budapest III. kerület eladó panellakás 2 szobás: 67 millió Ft
67 millió Ft
1 313 725 Ft/m²
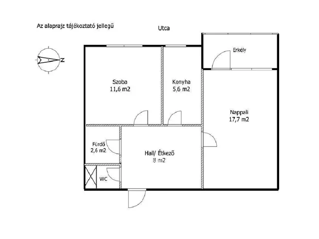
51 m²
2 szoba
9. emelet
Eladó Lakás, Budapest 3. ker.
Budapest III. kerületében, Óbuda kedvelt részén eladó egy 51 nm-es, 2 szobás, erkélyes, jó állapotú lakás.
Az ingatlan 9. emeleti, világos, kiváló benapozottságú, az erkélyről és a lakásból részleges kilátás nyílik a Budai-hegyek irányába. A Szentendrei út felőli elhelyezkedés ellenére a lakás csendes, amit a magas emelet és az új, korszerű nyílászárók biztosítanak.
Főbb jellemzők: új nyílászárók redőnyökkel, légkondicionált, praktikus elrendezés, tágas, beépített szekrény, jó műszaki és esztétikai állapot. Az ingatlan karbantartott társasházban, rendezett lakóközösségben található. Üres, azonnal költözhető.
A lakás 1/1 tulajdonban van, tehermentes, jogilag rendezett.
A Flórián tér, Szentlélek tér és a Duna közelsége kiváló infrastruktúrát biztosít: tömegközlekedés, üzletek, szolgáltatások néhány percen belül elérhetők.
Igény esetén külön megvásárolható egy önálló garázs, amely a környéken kifejezetten ritkaságnak számít.
Ez az ingatlan valóban olyan, ahová csak költözni kell ? ideális választás saját otthonnak vagy befektetésnek egyaránt.
Tulajdonságok
Panellakás
Jó állapotú
Távfűtés egyedi méréssel
1983
Nem adta meg a hirdető
Vedd fel a kapcsolatot a hirdetővel
Nagy Sándor OTPip - Budapest II. kerület Szépvölgyi út 2 - OTP Ingatlanpont Iroda Az iroda összes hirdetése
+36 20 395 9
Hitelkalkulátor
Második évtől
288 337 Ft A 13. hónaptól
7,99%
Végig fix Futamidő: 20 év Banki visszahívás
Az OTP Bank munkatársai a neked megfelelő napszakban veszik fel veled a kapcsolatot.Hitelfelvétel esetén akár egy héttel rövidebb lehet az ügyintézés.
Ez az ingatlan a nálunk meglévő adatok alapján azonnali értékbecslésre alkalmas lehet.
A becslés a hirdető által megadott adatokon alapul. A jelen tájékoztatás nem minősül ajánlattételnek és nem teljes körű, az egyes feltételek a hitelbírálat eredményétől függően változhatnak. Kérjük, a részletekről tájékozódj az OTP Bank fiókjaiban vagy az OTP Bank honlapján közzétett vonatkozó Üzletszabályzatokból és Hirdetményekből.
Vedd fel a kapcsolatot a hirdetővel
Nagy Sándor OTPip - Budapest II. kerület Szépvölgyi út 2 - OTP Ingatlanpont Iroda Az iroda összes hirdetése
+36 20 395 9
Vedd fel a kapcsolatot a hirdetővel
Nagy Sándor OTPip - Budapest II. kerület Szépvölgyi út 2 - OTP Ingatlanpont Iroda Az iroda összes hirdetése
+36 20 395 9
UI_KIT.CHARACTER_COUNTER__COMPONENT.REMAINING_SPACE__SR_ONLYUI_KIT.CHARACTER_COUNTER__COMPONENT.MAXIMUM_CHARACTER__SR_ONLY
Hasonló eladó ingatlanok Budapest III. kerületben
Feltöltve: 1 éve
1
72 M Ft 1 125 000 Ft/m²
Eladó lakás, Budapest III. kerület
Frissítve: 20 napja
5
Waterfront City 5
68,3 M Ft 2 529 630 Ft/m²
Eladó lakás, Budapest III. kerület

Frissítve: 20 napja
5
Waterfront City 5
70,2 M Ft 2 600 000 Ft/m²
Eladó lakás, Budapest III. kerület


Fedezd fel a
hasonló lakásokat!Még további lakások Budapest III. kerületben 67 M Ft körüli értékben
Tovább a hirdetésekhez Frissítve: 20 napja
5
Waterfront City 5
72 M Ft 2 482 759 Ft/m²
Eladó lakás, Budapest III. kerület

Frissítve: 20 napja
5
Waterfront City 5
71,1 M Ft 2 633 333 Ft/m²
Eladó lakás, Budapest III. kerület

Frissítve: 23 napja
19
69,9 M Ft 1 588 636 Ft/m²
Eladó lakás, Budapest III. kerület, Nánási út


