+10 fotó
Hirdetéskód: 8897697
Referenciaszám: M322708-5154187
Feltöltve: ma
Budapest III. kerület eladó panellakás 3 szobás: 93 millió Ft
93 millió Ft
1 430 769 Ft/m²
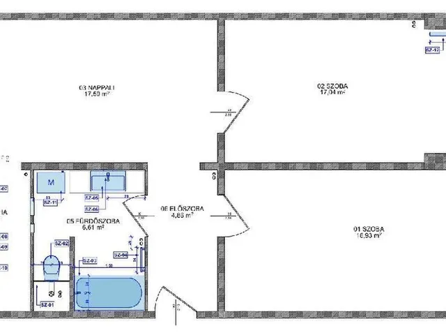
65 m²
3 szoba
3. emelet
Eladó Lakás, Budapest 3. ker.
Magas színvonalon felújított, 3. emeleti, panel lakás a Vörösvári úton eladó!
Képzeljen el egy csodálatos, frissen felújított lakást, ahol minden részlet a kényelem és a stílus jegyében készült. A Vörösvári úton található, 69 nm-es, három külön nyíló szobás otthon ideális választás családoknak és befektetőknek egyaránt.
A lakás a 3. emeleten helyezkedik el, világos és az elhelyezkedéséhez képest, a minőségi nyílászáróknak köszönhetően csendes, kilátással a környékre. A lakás belsőépítész által megálmodott, magas színvonalon felújított, így Ön azonnal költözhet és élvezheti az új otthon minden előnyét.
A környék igazi kincs! A Flórián tér mindössze pár percre található, ahol könnyedén elérheti a tömegközlekedést, iskolákat, óvodákat és boltokat, ami nagyban segíti a családi élet szervezését.
A konyha teljesen új, egyedi bútorokkal és beépített Bosch gépekkel van felszerelve, így főzni még sosem volt ennyire élvezetes! A fürdőszoba modern olasz burkolatai és prémium szaniterei pedig a luxus érzetét keltik.
A lakás alacsony rezsijű, hiszen távfűtéses, és minden új elektromos hálózattal, vízvezetékkel és radiátorokkal van ellátva. Ráadásul a közös költség is kedvező, így Önnek csak élveznie kell az új otthonát!
Legyen Ön az első lakója ennek a különleges ingatlannak.
Ne hagyja ki ezt a remek lehetőséget! Hívjon most, és lépjen be álmai otthonába!
Tulajdonságok
Panellakás
Felújított
Távfűtés
1980
D
Vedd fel a kapcsolatot a hirdetővel
Juhász Emese OTPip - Budapest IX. kerület Üllői út 21 - OTP Ingatlanpont Iroda Az iroda összes hirdetése
+36 70 369 0
Hitelkalkulátor
Második évtől
400 230 Ft A 13. hónaptól
7,99%
Végig fix Futamidő: 20 év Banki visszahívás
Az OTP Bank munkatársai a neked megfelelő napszakban veszik fel veled a kapcsolatot.Hitelfelvétel esetén akár egy héttel rövidebb lehet az ügyintézés.
Ez az ingatlan a nálunk meglévő adatok alapján azonnali értékbecslésre alkalmas lehet.
A becslés a hirdető által megadott adatokon alapul. A jelen tájékoztatás nem minősül ajánlattételnek és nem teljes körű, az egyes feltételek a hitelbírálat eredményétől függően változhatnak. Kérjük, a részletekről tájékozódj az OTP Bank fiókjaiban vagy az OTP Bank honlapján közzétett vonatkozó Üzletszabályzatokból és Hirdetményekből.
Vedd fel a kapcsolatot a hirdetővel
Juhász Emese OTPip - Budapest IX. kerület Üllői út 21 - OTP Ingatlanpont Iroda Az iroda összes hirdetése
+36 70 369 0
Vedd fel a kapcsolatot a hirdetővel
Juhász Emese OTPip - Budapest IX. kerület Üllői út 21 - OTP Ingatlanpont Iroda Az iroda összes hirdetése
+36 70 369 0
UI_KIT.CHARACTER_COUNTER__COMPONENT.ACTUAL_CHARACTER__SR_ONLY UI_KIT.CHARACTER_COUNTER__COMPONENT.MAXIMUM_CHARACTER__SR_ONLY
Hasonló eladó ingatlanok Budapest III. kerületben
Frissítve: ma
13
95,3 M Ft 1 401 471 Ft/m²
Eladó lakás, Budapest III. kerület

Frissítve: ma
20
99,9 M Ft 1 998 000 Ft/m²
Eladó lakás, Budapest III. kerület

Frissítve: 2 napja
20
99,9 M Ft 1 998 000 Ft/m²
Eladó lakás, Budapest III. kerület


Fedezd fel a
hasonló lakásokat!Még további lakások Budapest III. kerületben 93 M Ft körüli értékben
Tovább a hirdetésekhez Frissítve: 10 hónapja
1
89,6 M Ft 1 280 000 Ft/m²
Eladó lakás, Budapest III. kerület, Miklós Utca
Frissítve: 2 napja
12
95,3 M Ft 1 401 471 Ft/m²
Eladó lakás, Budapest III. kerület

Frissítve: 2 napja
13
95,3 M Ft 1 401 471 Ft/m²
Eladó lakás, Budapest III. kerület


