+17 fotó
Hirdetéskód: 8903964
Referenciaszám: M322863-5158007
Feltöltve: 5 napja
Budapest III. kerület eladó panellakás 1+2 fél szobás: 63,99 millió Ft
63,99 millió Ft
1 122 632 Ft/m²
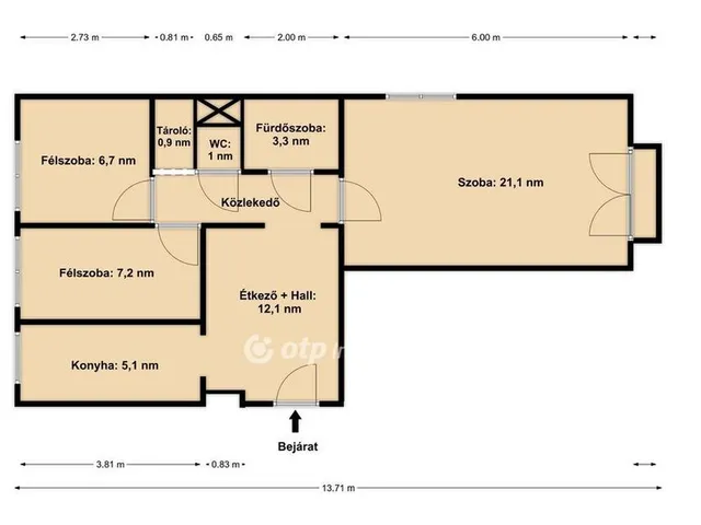
57 m²
1+2 fél szoba
5. emelet
Eladó Lakás, Budapest 3. ker.
Örökpanoráma ~ jó adottságok ~ azonnal birtokba vehető otthon Békásmegyeren!
Budapest, III. kerület, Békásmegyer hegy felőli, csendes oldalán kínálok eladásra egy 57 négyzetméteres, 1+2 félszobás, étkezős lakást nyugodt lépcsőházban.
A francia erkélyes ingatlan különlegessége, hogy három égtáj felé tájolt, körbenapozott lakás, így egész nap világos és kellemes hangulatú. Az erkély déli fekvésű, az ablakok pedig északra és keletre néznek.
Az ingatlan elosztása kifejezetten praktikus, kisgyermekes családok számára is kényelmes otthont nyújt. Az 5. emeletről gyönyörű, örökpanorámás kilátás nyílik a Kálvária dombra, ami igazán különleges hangulatot ad a lakásnak.
A környék parkosított, a ház előtt sok zöld terület és futópálya található, így a természet közelsége mindennap élvezhető.
Szupermarketek, szolgáltatások és a HÉV-megálló pár perc sétával elérhetők, ezért a közlekedés is kiváló.
A lakás tehermentes, jelenleg üres, így azonnal birtokba vehető, felújítás után pedig egy igazán szerethető otthonná alakítható.
Az OTP Ingatlanpont teljes körű ügyintézéssel támogatja Önt az ingatlanvásárlás minden lépésében. Otthon Start Hitelprogram, kedvezményes hitelek, CSOK+, falusi CSOK, lakástakarék, valamint megbízható ügyvédi háttér áll rendelkezésre.
A felújításban is szívesen segítek! Több éve együtt dolgozom megbízható szakemberekkel, akik minden munkálatot precízen elvégeznek, a kisebb javításoktól a teljes átalakításig.
Várom megtisztelő hívását - akár hétvégén is!
Tulajdonságok
Panellakás
Felújítandó
Távfűtés
1980
Nem adta meg a hirdető
Vedd fel a kapcsolatot a hirdetővel
Nagy Sándor OTPip - Budapest II. kerület Szépvölgyi út 2 - OTP Ingatlanpont Iroda Az iroda összes hirdetése
+36 20 395 9
Hitelkalkulátor
Második évtől
275 384 Ft A 13. hónaptól
7,99%
Végig fix Futamidő: 20 év Banki visszahívás
Az OTP Bank munkatársai a neked megfelelő napszakban veszik fel veled a kapcsolatot.Hitelfelvétel esetén akár egy héttel rövidebb lehet az ügyintézés.
Ez az ingatlan a nálunk meglévő adatok alapján azonnali értékbecslésre alkalmas lehet.
A becslés a hirdető által megadott adatokon alapul. A jelen tájékoztatás nem minősül ajánlattételnek és nem teljes körű, az egyes feltételek a hitelbírálat eredményétől függően változhatnak. Kérjük, a részletekről tájékozódj az OTP Bank fiókjaiban vagy az OTP Bank honlapján közzétett vonatkozó Üzletszabályzatokból és Hirdetményekből.
Vedd fel a kapcsolatot a hirdetővel
Nagy Sándor OTPip - Budapest II. kerület Szépvölgyi út 2 - OTP Ingatlanpont Iroda Az iroda összes hirdetése
+36 20 395 9
Vedd fel a kapcsolatot a hirdetővel
Nagy Sándor OTPip - Budapest II. kerület Szépvölgyi út 2 - OTP Ingatlanpont Iroda Az iroda összes hirdetése
+36 20 395 9
UI_KIT.CHARACTER_COUNTER__COMPONENT.ACTUAL_CHARACTER__SR_ONLY UI_KIT.CHARACTER_COUNTER__COMPONENT.MAXIMUM_CHARACTER__SR_ONLY
Hasonló eladó ingatlanok Budapest III. kerületben
Frissítve: 7 napja
5
Waterfront City 5
67 M Ft 2 481 481 Ft/m²
Eladó lakás, Budapest III. kerület

Frissítve: 7 napja
5
Waterfront City 5
70,2 M Ft 2 600 000 Ft/m²
Eladó lakás, Budapest III. kerület

Frissítve: 10 napja
19
69,9 M Ft 1 226 316 Ft/m²
Eladó lakás, Budapest III. kerület, Bálint György utca


Fedezd fel a
hasonló lakásokat!Még további lakások Budapest III. kerületben 63,99 M Ft körüli értékben
Tovább a hirdetésekhez Frissítve: 1 hónapja
1
69,89 M Ft 1 344 038 Ft/m²
Eladó lakás, Budapest III. kerület
Frissítve: 6 napja
10
62,9 M Ft 1 310 417 Ft/m²
Eladó lakás, Budapest III. kerület

Frissítve: 11 napja
18
69,9 M Ft 1 226 316 Ft/m²
Eladó lakás, Budapest III. kerület

