+3 fotó
Hirdetéskód: 8932026
Referenciaszám: M324472-5175518
Feltöltve: 1 napja
Budapest III. kerület eladó panellakás 1+2 fél szobás: 66,8 millió Ft
66,8 millió Ft
1 171 930 Ft/m²
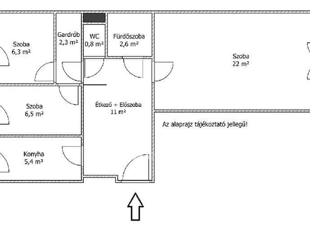
57 m²
1+2 fél szoba
4. emelet
Eladó Lakás, Budapest 3. ker.
Eladó 57 négyzetméteres jó állapotú negyedik emeleti panellakás a Gyűrű utcában. Kiváló elosztású egy plusz két félszobás nagyon praktikus gardróbbal! Az épület panelprogramban részt vett, homlokzata rendezett. A műanyag ablakok redőnyösek és lakó szobánként egy nyitható ablak rovarhálós. A fűtést és a meleg vizet távhőn kapja a lakás, a radiátorok egyedi mérővel vannak ellátva. A háznak jelentős megtakarítása van így a fejlesztéseket folyamatosan tervezik, a közös költség emelkedése a közeljövőben nem várható. A közelben oktatási intézmények, üzletek és bevásárlóközpont is van, a tömegközlekedés kiváló a környéken. Parkolni a ház előtt kialakított parkolóban lehet közterületen ingyenesen. Ezt a remek elosztású lakást pároknak vagy családosoknak ajánlom elsősorban. Az ingatlan tehermentes, szinte azonnal költözhető! Ha érdekesnek találta jöjjön el és tekintse meg élőben is! Időpont egyeztetéshez hívjon bizalommal!
Teljes körű ügyintézéssel állunk az eladók és a vevők rendelkezésére! A kínálatunkból választott ingatlan finanszírozásához minősített fogyasztóbarát, piaci és kedvezményes hitel- és lízingkonstrukciókat kínálunk (lakásvásárlási hitel, szabad felhasználású hitel, babaváró hitel, CSOK Plusz intézés, Otthonfelújítási Támogatás, egyéb felújítási hitelek). Az adásvételi szerződés megkötéséhez igény szerint megbízható ügyvédi közreműködést biztosítunk, és segítséget nyújtunk az adásvételhez kapcsolódó egyéb ügyek intézéséhez.
Kérdéseire az esti órákban és hétvégén is szívesen válaszolok! Ha az új ingatlana megvásárlásához a jelenlegi ingatlanát el kell adnia, abban is szívesen segítünk.
Tulajdonságok
Panellakás
Átlagos
Távfűtés egyedi méréssel
1978
Nem adta meg a hirdető
Vedd fel a kapcsolatot a hirdetővel
Pröbsztl Gábor Zoltán OTPip - Budapest II. kerület Ganz utca 5-7 - OTP Ingatlanpont Iroda Az iroda összes hirdetése
+36 70 786 1
Hitelkalkulátor
Második évtől
287 477 Ft A 13. hónaptól
7,99%
Végig fix Futamidő: 20 év Banki visszahívás
Az OTP Bank munkatársai a neked megfelelő napszakban veszik fel veled a kapcsolatot.Hitelfelvétel esetén akár egy héttel rövidebb lehet az ügyintézés.
Ez az ingatlan a nálunk meglévő adatok alapján azonnali értékbecslésre alkalmas lehet.
A becslés a hirdető által megadott adatokon alapul. A jelen tájékoztatás nem minősül ajánlattételnek és nem teljes körű, az egyes feltételek a hitelbírálat eredményétől függően változhatnak. Kérjük, a részletekről tájékozódj az OTP Bank fiókjaiban vagy az OTP Bank honlapján közzétett vonatkozó Üzletszabályzatokból és Hirdetményekből.
Vedd fel a kapcsolatot a hirdetővel
Pröbsztl Gábor Zoltán OTPip - Budapest II. kerület Ganz utca 5-7 - OTP Ingatlanpont Iroda Az iroda összes hirdetése
+36 70 786 1
Vedd fel a kapcsolatot a hirdetővel
Pröbsztl Gábor Zoltán OTPip - Budapest II. kerület Ganz utca 5-7 - OTP Ingatlanpont Iroda Az iroda összes hirdetése
+36 70 786 1
UI_KIT.CHARACTER_COUNTER__COMPONENT.ACTUAL_CHARACTER__SR_ONLY UI_KIT.CHARACTER_COUNTER__COMPONENT.MAXIMUM_CHARACTER__SR_ONLY
Hasonló eladó ingatlanok Budapest III. kerületben
Feltöltve: 1 éve
1
72 M Ft 1 125 000 Ft/m²
Eladó lakás, Budapest III. kerület
Feltöltve: ma
6
62,9 M Ft 1 209 615 Ft/m²
Eladó lakás, Budapest III. kerület

Feltöltve: ma
6
66,8 M Ft 1 171 930 Ft/m²
Eladó lakás, Budapest III. kerület


Fedezd fel a
hasonló lakásokat!Még további lakások Budapest III. kerületben 66,8 M Ft körüli értékben
Tovább a hirdetésekhez Frissítve: 12 napja
5
Waterfront City 5
72,4 M Ft 2 496 552 Ft/m²
Eladó lakás, Budapest III. kerület

Frissítve: 12 napja
5
Waterfront City 5
65 M Ft 2 407 407 Ft/m²
Eladó lakás, Budapest III. kerület

Frissítve: 12 napja
5
Waterfront City 5
72,9 M Ft 2 513 793 Ft/m²
Eladó lakás, Budapest III. kerület

