

+12 fotó
Hirdetéskód: 8725728
Referenciaszám: M313691-5048171
Feltöltve: 6 napja
Budapest IV. kerület eladó panellakás 2+1 fél szobás: 73,5 millió Ft
73,5 millió Ft
1 035 211 Ft/m²
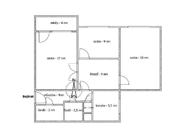
71 m²
2+1 fél szoba
4. emelet
Eladó Lakás, Budapest 4. ker.
Eladó 71 nm-s, erkélyes, 3 szobás + hallos lakás Újpesten!
Az ingatlan tágas konyhával, gardróbbal, világos szobákkal és erkéllyel rendelkezik. Jelenleg is beköltözhető állapotú, de igény szerint felújítható, így teljesen a saját ízlésére alakítható.
Közlekedés: Újpest-központ metrómegálló 15 perc sétára, vagy 10 perc busszal elérhető, így a belváros könnyen megközelíthető.
Főbb előnyök:
3 különnyíló szoba + hall
Tágas konyha és gardrób
Panorámás kilátás, erkély
Azonnal birtokba vehető
Ideális választás családoknak vagy azoknak, akik tágas, élhető otthont keresnek jó lokációban.
Hívjon és tekintse meg!
Antal Enikő
+36/20-371-2105
Tulajdonságok
Panellakás
Átlagos
Házközponti
1970
Nem adta meg a hirdető
Vedd fel a kapcsolatot a hirdetővel
Antal Enikő OTPip - Budapest IX. kerület Üllői út 21 - OTP Ingatlanpont Iroda Az iroda összes hirdetése
+36 20 371 2
Hitelkalkulátor
Második évtől
316 310 Ft A 13. hónaptól
7,99%
Végig fix Futamidő: 20 év Banki visszahívás
Az OTP Bank munkatársai a neked megfelelő napszakban veszik fel veled a kapcsolatot.Hitelfelvétel esetén akár egy héttel rövidebb lehet az ügyintézés.
Ez az ingatlan a nálunk meglévő adatok alapján azonnali értékbecslésre alkalmas lehet.
A becslés a hirdető által megadott adatokon alapul. A jelen tájékoztatás nem minősül ajánlattételnek és nem teljes körű, az egyes feltételek a hitelbírálat eredményétől függően változhatnak. Kérjük, a részletekről tájékozódj az OTP Bank fiókjaiban vagy az OTP Bank honlapján közzétett vonatkozó Üzletszabályzatokból és Hirdetményekből.
Vedd fel a kapcsolatot a hirdetővel
Antal Enikő OTPip - Budapest IX. kerület Üllői út 21 - OTP Ingatlanpont Iroda Az iroda összes hirdetése
+36 20 371 2
Vedd fel a kapcsolatot a hirdetővel
Antal Enikő OTPip - Budapest IX. kerület Üllői út 21 - OTP Ingatlanpont Iroda Az iroda összes hirdetése
+36 20 371 2
UI_KIT.CHARACTER_COUNTER__COMPONENT.REMAINING_SPACE__SR_ONLYUI_KIT.CHARACTER_COUNTER__COMPONENT.MAXIMUM_CHARACTER__SR_ONLY
Hasonló eladó ingatlanok Újpest városrészben
Frissítve: 2 napja

1
79,9 M Ft 1 452 727 Ft/m²
Eladó lakás, Budapest IV. kerület, Újpest, József Attila utca - akár két autóbeállóval
Frissítve: 6 hónapja

1
70 M Ft 795 455 Ft/m²
Eladó lakás, Budapest IV. kerület, Újpest, Templom u. 1.
Frissítve: 5 napja

7
73,9 M Ft 754 082 Ft/m²
Eladó lakás, Budapest IV. kerület, Újpest


Fedezd fel a
hasonló lakásokat!Még további lakások Budapest IV. kerület, Újpest városrészben 73,5 M Ft körüli értékben
Tovább a hirdetésekhez Frissítve: ma

19
72,5 M Ft 823 864 Ft/m²
Eladó lakás, Budapest IV. kerület, Újpest

Feltöltve: 10 hónapja
0
75 M Ft 1 119 403 Ft/m²
Eladó lakás, Budapest IV. kerület, Újpest, Görgey Artúr 39
Frissítve: 2 napja

14
69,9 M Ft 794 318 Ft/m²
Eladó lakás, Budapest IV. kerület, Újpest

Töltsd fel hirdetésed ingyenesen!
Egyszerű