+8 fotó
Hirdetéskód: 8758514
Referenciaszám: 388763
Frissítve: 4 napja
Budapest IV. kerület eladó panellakás 3 szobás: 71,5 millió Ft
71,5 millió Ft
1 007 042 Ft/m²
71 m²
3 szoba
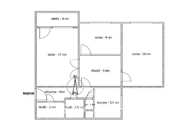
Eladó panellakás Budapest, IV. kerület, 71nm, 71.500.000Ft - Rózsa utca
Újpesten az Árpád üzletház közelében , Horváth cukrászda, M3 metró stb...eladó egy tágas világos 71nm-es,3 szoba hallos, ERKÉLYES, PANORÁMÁS távfűtéses, 4.emeleti panellakás.
Közös költség 24eft a felújítási alappal együtt.
Távfűtés 15eft.
A társasház 1985-ben épült, karbantartott.
Az utcán ingyenes a parkolás.
20E busz, Spar, bankok parkok a közelben. ...TOVÁBBI, TÖBBEZRES INGATLAN KÍNÁLAT: www.gdn-ingatlan.hu - GDN azonosító: 388763
Tulajdonságok
1985
2 m²
Nem adta meg a hirdető
Vedd fel a kapcsolatot a hirdetővel
+36 70 605 0
Hitelkalkulátor
Második évtől
307 703 Ft A 13. hónaptól
7,99%
Végig fix Futamidő: 20 év Banki visszahívás
Az OTP Bank munkatársai a neked megfelelő napszakban veszik fel veled a kapcsolatot.Hitelfelvétel esetén akár egy héttel rövidebb lehet az ügyintézés.
Ez az ingatlan a nálunk meglévő adatok alapján azonnali értékbecslésre alkalmas lehet.
A becslés a hirdető által megadott adatokon alapul. A jelen tájékoztatás nem minősül ajánlattételnek és nem teljes körű, az egyes feltételek a hitelbírálat eredményétől függően változhatnak. Kérjük, a részletekről tájékozódj az OTP Bank fiókjaiban vagy az OTP Bank honlapján közzétett vonatkozó Üzletszabályzatokból és Hirdetményekből.
Vedd fel a kapcsolatot a hirdetővel
+36 70 605 0
Vedd fel a kapcsolatot a hirdetővel
+36 70 605 0
UI_KIT.CHARACTER_COUNTER__COMPONENT.REMAINING_SPACE__SR_ONLYUI_KIT.CHARACTER_COUNTER__COMPONENT.MAXIMUM_CHARACTER__SR_ONLY
Hasonló eladó ingatlanok Budapest IV. kerületben
Frissítve: 1 napja
11
68,9 M Ft 1 275 926 Ft/m²
Eladó lakás, Budapest IV. kerület

Frissítve: ma
13
74,9 M Ft 902 410 Ft/m²
Eladó lakás, Budapest IV. kerület

Frissítve: ma
11
68,9 M Ft 1 378 000 Ft/m²
Eladó lakás, Budapest IV. kerület


Fedezd fel a
hasonló lakásokat!Még további lakások Budapest IV. kerületben 71,5 M Ft körüli értékben
Tovább a hirdetésekhez Frissítve: 23 napja
12
74,3 M Ft 1 259 322 Ft/m²
Eladó lakás, Budapest IV. kerület

Feltöltve: 8 napja
16
71 M Ft 1 109 375 Ft/m²
Eladó lakás, Budapest IV. kerület

Frissítve: 3 napja
12
75,5 M Ft 1 279 661 Ft/m²
Eladó lakás, Budapest IV. kerület


Töltsd fel hirdetésed ingyenesen!
Egyszerű
