+15 fotó
Hirdetéskód: 8792987
Referenciaszám: M316220-5089361
Frissítve: 28 napja
Budapest IV. kerület eladó panellakás 2 szobás: 86,9 millió Ft
86,9 millió Ft
1 223 944 Ft/m²
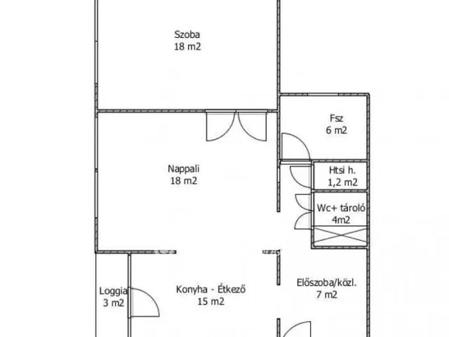
71 m²
2 szoba
2. emelet
Eladó Lakás, Budapest 4. ker.
Kivételes lehetőség - csak hozza a bőröndjét! Eladó Otthon Start Programnak megfelelő 71 nm-es, tágas, világos, teljesen felújíott és átalakított, klímás, tehermentes, azonnal költözhető, erkélyes, II. emeleti lakás! Teljesen berendezett, az ár tartalmazza igény szerint a bútorokat is - így tényleg csak költöznie kell! (A képek látványtervet is tartalmaznak).
Modern, igényes kialakítás, kényelmes elrendezés és kellemes hangulat várja az új tulajdonost. Az ingatlan rendezett, csendes, biztonságos környezetben található, kiváló infrastruktúrával és közlekedéssel - az M3-s metróvonal Újpest - Városkapu és Újpest-Központ megállója között, parkosított területen. A közelben - sétatávolságra - minden megtalálható, amire csak szüksége lehet: iskola, óvoda, park, játszótér, orvosi rendelők, különféle szolgáltatások, bevásárlási és sportolási lehetőségek, kávézók...busz-pályaudvar és vasútállomás!
Ideális választás lehet fiatal párnak, kisgyermekes családnak, de akár befektetési lehetőségnek is nagyszerű!
Ügyfeleink számára teljes körű ügyintézéssel állunk rendelkezésre! Kínálatunkból választott ingatlan finanszírozásához kedvezményes hitelmegoldásokat kínálunk, illetve az adásvételi szerződés megkötéséhez megbízható ügyvédi közreműködést is tudunk biztosítani!
Ha hirdetésünk felkeltette érdeklődését, kérem hívjon bizalommal a hét bármely napján! M316220
Tulajdonságok
Panellakás
Felújított
Távfűtés egyedi méréssel
1981
Nem adta meg a hirdető
Vedd fel a kapcsolatot a hirdetővel
Schuszter Tamás OTPip - Budapest I. kerület Zsolt utca 6 - OTP Ingatlanpont Iroda Az iroda összes hirdetése
+36 70 790 7
Hitelkalkulátor
Második évtől
373 978 Ft A 13. hónaptól
7,99%
Végig fix Futamidő: 20 év Banki visszahívás
Az OTP Bank munkatársai a neked megfelelő napszakban veszik fel veled a kapcsolatot.Hitelfelvétel esetén akár egy héttel rövidebb lehet az ügyintézés.
Ez az ingatlan a nálunk meglévő adatok alapján azonnali értékbecslésre alkalmas lehet.
A becslés a hirdető által megadott adatokon alapul. A jelen tájékoztatás nem minősül ajánlattételnek és nem teljes körű, az egyes feltételek a hitelbírálat eredményétől függően változhatnak. Kérjük, a részletekről tájékozódj az OTP Bank fiókjaiban vagy az OTP Bank honlapján közzétett vonatkozó Üzletszabályzatokból és Hirdetményekből.
Vedd fel a kapcsolatot a hirdetővel
Schuszter Tamás OTPip - Budapest I. kerület Zsolt utca 6 - OTP Ingatlanpont Iroda Az iroda összes hirdetése
+36 70 790 7
Vedd fel a kapcsolatot a hirdetővel
Schuszter Tamás OTPip - Budapest I. kerület Zsolt utca 6 - OTP Ingatlanpont Iroda Az iroda összes hirdetése
+36 70 790 7
UI_KIT.CHARACTER_COUNTER__COMPONENT.REMAINING_SPACE__SR_ONLYUI_KIT.CHARACTER_COUNTER__COMPONENT.MAXIMUM_CHARACTER__SR_ONLY
Hasonló eladó ingatlanok Budapest IV. kerületben
Frissítve: 6 napja
18
92,9 M Ft 1 119 277 Ft/m²
Eladó lakás, Budapest IV. kerület

Frissítve: 19 napja
18
92,9 M Ft 1 119 277 Ft/m²
Eladó lakás, Budapest IV. kerület

Frissítve: 14 napja
11
89,8 M Ft 1 832 653 Ft/m²
Eladó lakás, Budapest IV. kerület


Fedezd fel a
hasonló lakásokat!Még további lakások Budapest IV. kerületben 86,9 M Ft körüli értékben
Tovább a hirdetésekhez Frissítve: 20 napja
8
87,6 M Ft 1 095 000 Ft/m²
Eladó lakás, Budapest IV. kerület

Frissítve: 1 napja
16
84,9 M Ft 1 195 775 Ft/m²
Eladó lakás, Budapest IV. kerület

Frissítve: 20 napja
11
89,8 M Ft 1 832 653 Ft/m²
Eladó lakás, Budapest IV. kerület


