+2 fotó
Hirdetéskód: 8925501
Referenciaszám: M323825-5172745
Feltöltve: 1 napja
Budapest X. kerület eladó panellakás 1+2 fél szobás: 72,9 millió Ft
72,9 millió Ft
1 235 593 Ft/m²
59 m²
1+2 fél szoba
3. emelet
Eladó Lakás, Budapest 10. ker.
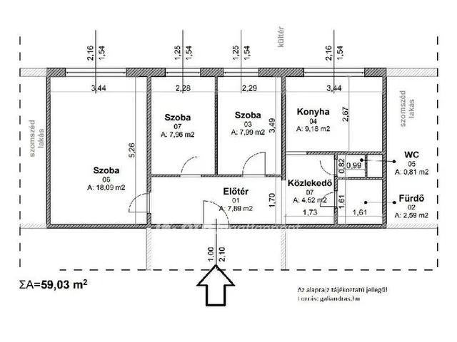
Eladó a 10. kerületben zöldövezeti részen, az Óhegy park mellett egy 3. emeleti, világos 3 szobás, 59 nm -es panel lakás. A lakás MEGFELEL A 3 SZÁZALÉKOS OTTHON START PROGRAM FELTÉTELEINEK! A rendezett ház 4 emeletes, sajnos lift nincs, viszont az emeletek alacsony szint különbségűek. A lakás 1+2 félszobás elrendezésű, a szobák mind külön bejáratúak. A lakás kifejezetten világos, napfényes a délkeleti tájolásának köszönhetően. A ház nagyon tiszta, rendezett, emeletenként mindössze 3 lakással. A lakás alaprajza alapján látható, hogy ideális lehet többgyermekes családoknak, de akár befektetési célból is, vagy bérbeadásra. A lakáshoz tartozik egy 25 nm-es közös tároló is. A parkolás az utcán, a ház előtt megoldható és ami különösen fontos, ingyenes. A tömegközlekedés is jónak mondható, több buszjárat is van a közelben. A lakás tehermentes, egy tulajdonosa van, tiszta jogi helyzetű. A közös költség kifejezetten baráti és a társasháznak nincsen tartozása. A lokáció ideális, szinte minden megtalálható a közelben. Ami nagy előnye, hogy az Óhegy park pár perc sétára van. Mivel a lakás mellékutcában van, így egyben csendes is. Jöjjön el és szeressen bele ebbe a családbarát ingatlanba! Ingatlanjogász ügyvédi iroda vagyunk 25 éve.
Az OTP Csoport teljes körű ügyintézéssel áll az eladók és a vevők rendelkezésére! Cégünk digitális rendszerrel dolgozik már közel 6 éve, így akár online, személyes találkozó nélkül is zökkenőmentesen vásárolhatja meg a kiválasztott ingatlant! A kínálatunkból választott ingatlan finanszírozásához kedvezményes hitel- és lízing konstrukciót, állami támogatásokat, lakás-takarékpénztári megoldásokat kínálunk. Az adásvételi szerződés megkötéséhez igény szerint megbízható ügyvédi közreműködést biztosítunk, és segítséget nyújtunk az adásvételhez kapcsolódó ügyek intézésében is. Bővebb tájékoztatásért hívjon bizalommal akár hétvégén is! FONTOS: Ha még nem volt ingatlan a nevén, vagy gyermekeinek szeretné megvásárolni ezt a kiváló adottságokkal rendelkező lakást, az új kedvezményes 3%-os kamatozású hitelt az OTP Bank hátterével 22 napon belül tudjuk biztosítani!
Referencia szám: M323825-ZE
Tulajdonságok
Panellakás
Jó állapotú
Távfűtés
1980
Nem adta meg a hirdető
Vedd fel a kapcsolatot a hirdetővel
Hegedűs Tibor OTPip - Budapest I. kerület Fő utca 7 - OTP Ingatlanpont Iroda Az iroda összes hirdetése
+36 70 329 4
Hitelkalkulátor
Második évtől
313 728 Ft A 13. hónaptól
7,99%
Végig fix Futamidő: 20 év Banki visszahívás
Az OTP Bank munkatársai a neked megfelelő napszakban veszik fel veled a kapcsolatot.Hitelfelvétel esetén akár egy héttel rövidebb lehet az ügyintézés.
Ez az ingatlan a nálunk meglévő adatok alapján azonnali értékbecslésre alkalmas lehet.
A becslés a hirdető által megadott adatokon alapul. A jelen tájékoztatás nem minősül ajánlattételnek és nem teljes körű, az egyes feltételek a hitelbírálat eredményétől függően változhatnak. Kérjük, a részletekről tájékozódj az OTP Bank fiókjaiban vagy az OTP Bank honlapján közzétett vonatkozó Üzletszabályzatokból és Hirdetményekből.
Vedd fel a kapcsolatot a hirdetővel
Hegedűs Tibor OTPip - Budapest I. kerület Fő utca 7 - OTP Ingatlanpont Iroda Az iroda összes hirdetése
+36 70 329 4
Vedd fel a kapcsolatot a hirdetővel
Hegedűs Tibor OTPip - Budapest I. kerület Fő utca 7 - OTP Ingatlanpont Iroda Az iroda összes hirdetése
+36 70 329 4
UI_KIT.CHARACTER_COUNTER__COMPONENT.ACTUAL_CHARACTER__SR_ONLY UI_KIT.CHARACTER_COUNTER__COMPONENT.MAXIMUM_CHARACTER__SR_ONLY
Hasonló eladó ingatlanok Óhegy városrészben
Frissítve: 7 hónapja
1
65,9 M Ft 1 029 688 Ft/m²
Eladó lakás, Budapest X. kerület, Óhegy
Feltöltve: 6 hónapja
0
71,9 M Ft 1 123 438 Ft/m²
Eladó lakás, Budapest X. kerület, Óhegy, Kőrösi Csoma Sándor út 3.
Frissítve: 5 hónapja
11
69,9 M Ft 1 226 316 Ft/m²
Eladó lakás, Budapest X. kerület, Óhegy, Kelemen utca


Fedezd fel a
hasonló lakásokat!Még további lakások Budapest X. kerület, Óhegy városrészben 72,9 M Ft körüli értékben
Tovább a hirdetésekhez Feltöltve: 3 hónapja
14
80 M Ft 1 269 825 Ft/m²
Eladó lakás, Budapest X. kerület, Óhegy
Frissítve: 23 napja
7
72,9 M Ft 1 235 593 Ft/m²
Eladó lakás, Budapest X. kerület, Óhegy

Feltöltve: 1 hónapja
17
69,9 M Ft 1 248 214 Ft/m²
Eladó lakás, Budapest X. kerület, Óhegy, Sörgyár utca 21.


