+2 fotó
Hirdetéskód: 8927320
Referenciaszám: M323825-5171564
Feltöltve: ma
Budapest X. kerület eladó panellakás 1+2 fél szobás: 72,9 millió Ft
72,9 millió Ft
1 235 593 Ft/m²
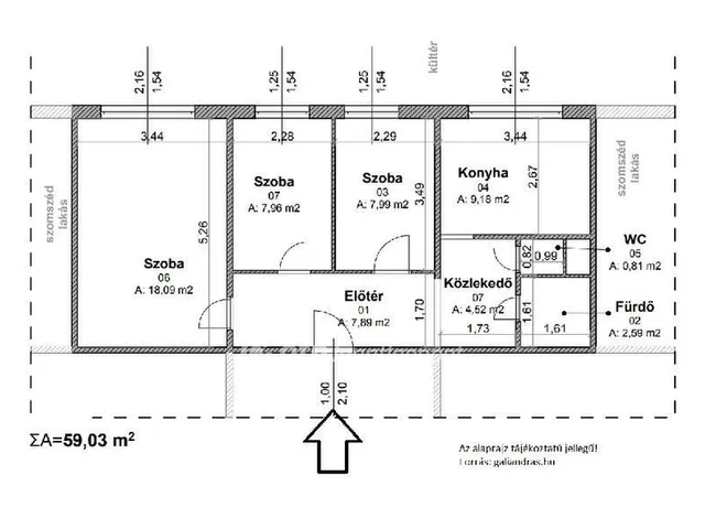
59 m²
1+2 fél szoba
3. emelet
Eladó Lakás, Budapest 10. ker.
Eladó a 10. kerületben zöldövezeti részen, az Óhegy park mellett egy 3. emeleti, világos 3 szobás, 59 nm -es panel lakás. A lakás MEGFELEL A 3 SZÁZALÉKOS OTTHON START PROGRAM FELTÉTELEINEK! A rendezett ház 4 emeletes, sajnos lift nincs, viszont az emeletek alacsony szint különbségűek. A lakás 1+2 félszobás elrendezésű, a szobák mind külön bejáratúak. A lakás kifejezetten világos, napfényes a délkeleti tájolásának köszönhetően. A ház nagyon tiszta, rendezett, emeletenként mindössze 3 lakással. A lakás alaprajza alapján látható, hogy ideális lehet többgyermekes családoknak, de akár befektetési célból is, vagy bérbeadásra. A lakáshoz tartozik egy 25 nm-es közös tároló is. A parkolás az utcán, a ház előtt megoldható és ami különösen fontos, ingyenes. A tömegközlekedés is jónak mondható, több buszjárat is van a közelben. A lakás tehermentes, egy tulajdonosa van, tiszta jogi helyzetű. A közös költség kifejezetten baráti és a társasháznak nincsen tartozása. A lokáció ideális, szinte minden megtalálható a közelben. Ami nagy előnye, hogy az Óhegy park pár perc sétára van. Mivel a lakás mellékutcában van, így egyben csendes is. Jöjjön el és szeressen bele ebbe a családbarát ingatlanba! Az OTP Ingatlanpont teljes körű ügyintézéssel áll az eladók és a vevők rendelkezésére. A kínálatunkból választott ingatlan finanszírozásához kedvezményes hitelkonstrukciókat kínálunk. További információkért keressen bizalommal!
Referencia szám: M323825
Tulajdonságok
Panellakás
Jó állapotú
Távfűtés
1980
Nem adta meg a hirdető
Vedd fel a kapcsolatot a hirdetővel
Papp-Horváth Katalin OTPip - Budapest I. kerület Fő utca 7 - OTP Ingatlanpont Iroda Az iroda összes hirdetése
+36 30 400 1
Hitelkalkulátor
Második évtől
313 728 Ft A 13. hónaptól
7,99%
Végig fix Futamidő: 20 év Banki visszahívás
Az OTP Bank munkatársai a neked megfelelő napszakban veszik fel veled a kapcsolatot.Hitelfelvétel esetén akár egy héttel rövidebb lehet az ügyintézés.
Ez az ingatlan a nálunk meglévő adatok alapján azonnali értékbecslésre alkalmas lehet.
A becslés a hirdető által megadott adatokon alapul. A jelen tájékoztatás nem minősül ajánlattételnek és nem teljes körű, az egyes feltételek a hitelbírálat eredményétől függően változhatnak. Kérjük, a részletekről tájékozódj az OTP Bank fiókjaiban vagy az OTP Bank honlapján közzétett vonatkozó Üzletszabályzatokból és Hirdetményekből.
Vedd fel a kapcsolatot a hirdetővel
Papp-Horváth Katalin OTPip - Budapest I. kerület Fő utca 7 - OTP Ingatlanpont Iroda Az iroda összes hirdetése
+36 30 400 1
Vedd fel a kapcsolatot a hirdetővel
Papp-Horváth Katalin OTPip - Budapest I. kerület Fő utca 7 - OTP Ingatlanpont Iroda Az iroda összes hirdetése
+36 30 400 1
UI_KIT.CHARACTER_COUNTER__COMPONENT.ACTUAL_CHARACTER__SR_ONLY UI_KIT.CHARACTER_COUNTER__COMPONENT.MAXIMUM_CHARACTER__SR_ONLY
Hasonló eladó ingatlanok Budapest X. kerületben
Frissítve: 8 hónapja
16
Kincsem by Bayer
69,9 M Ft 1 059 091 Ft/m²
Eladó lakás, Budapest X. kerület, Gyógyszergyári út 6-12.
Frissítve: 8 hónapja
16
Kincsem by Bayer
67 M Ft 1 178 728 Ft/m²
Eladó lakás, Budapest X. kerület, Gyógyszergyári út 6-12.
Frissítve: 8 hónapja
16
Kincsem by Bayer
79,9 M Ft 1 069 407 Ft/m²
Eladó lakás, Budapest X. kerület, Gyógyszergyári út 6-12.

Fedezd fel a
hasonló lakásokat!Még további lakások Budapest X. kerületben 72,9 M Ft körüli értékben
Tovább a hirdetésekhez Frissítve: 10 hónapja
16
Kincsem by Bayer
69,9 M Ft 1 553 333 Ft/m²
Eladó lakás, Budapest X. kerület, Gyógyszergyári út 6-12.
Frissítve: 8 hónapja
16
Kincsem by Bayer
71 M Ft 1 145 161 Ft/m²
Eladó lakás, Budapest X. kerület, Gyógyszergyári út 6-12.
Frissítve: 15 napja
15
79,9 M Ft 1 079 730 Ft/m²
Eladó lakás, Budapest X. kerület


