+2 fotó
Hirdetéskód: 8929912
Referenciaszám: M323825-5171605
Frissítve: ma
Budapest X. kerület eladó panellakás 1+2 fél szobás: 72,9 millió Ft
72,9 millió Ft
1 235 593 Ft/m²
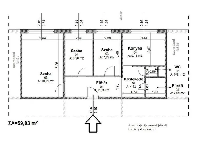
59 m²
1+2 fél szoba
3. emelet
Eladó Lakás, Budapest 10. ker.
Eladó világos, 3 szobás lakás az Óhegy park közelében – kiváló elhelyezkedéssel!
Budapest X. kerületének zöldövezeti részén, az Óhegy park közelében eladó egy 3. emeleti, 59 nm-es, 1+2 félszobás panel lakás.
A lakás megfelel a 3%-os Otthon Start Program feltételeinek!
A lakás egy rendezett, 4 emeletes társasházban található. Lift ugyan nincs az épületben, azonban az emeletek közötti szintkülönbség alacsony, így a lépcsőzés kevésbé megterhelő.
Az ingatlan praktikus elrendezésű, a három szoba külön bejárattal rendelkezik, ami ideálissá teszi családok számára, de akár befektetésre vagy bérbeadásra is kiváló választás lehet. A délkeleti tájolásnak köszönhetően a lakás kifejezetten világos és napfényes.
A társasház tiszta, gondozott, emeletenként mindössze három lakással, ami nyugodt, barátságos lakókörnyezetet biztosít.
A lakáshoz tartozik egy kb. 25 nm-es közös tároló, amely további praktikus tárolási lehetőséget kínál.
Parkolás: a ház előtt az utcán, ingyenesen megoldható.
Közlekedés: a környéken több buszjárat is elérhető, így a tömegközlekedés kényelmesen használható.
Az ingatlan főbb jellemzői:
-tehermentes
-egy tulajdonos
-rendezett, tiszta jogi háttér
-kedvező közös költség
-a társasháznak nincs tartozása
A környék infrastruktúrája kiváló: üzletek, szolgáltatások, intézmények könnyen elérhetők, miközben az Óhegy park mindössze pár perc sétára található, ami remek kikapcsolódási lehetőséget kínál. A lakás csendes mellékutcában helyezkedik el.
Ha egy világos, jó elrendezésű, családbarát lakást keres zöld környezetben, érdemes személyesen is megtekinteni!
Az OTP Ingatlanpont teljes körű ügyintézéssel segíti az eladókat és a vevőket. Igény esetén kedvezményes hitelkonstrukciók és finanszírozási megoldások is rendelkezésre állnak.
További információért és megtekintésért keressen bizalommal!
Referencia szám: M323825
Tulajdonságok
Panellakás
Jó állapotú
Távfűtés
1980
Nem adta meg a hirdető
Vedd fel a kapcsolatot a hirdetővel
Fodor Zoltán OTPip - Budapest XIII. kerület Pannónia utca 25 - OTP Ingatlanpont Iroda Az iroda összes hirdetése
+36 70 675 2
Hitelkalkulátor
Második évtől
313 728 Ft A 13. hónaptól
7,99%
Végig fix Futamidő: 20 év Banki visszahívás
Az OTP Bank munkatársai a neked megfelelő napszakban veszik fel veled a kapcsolatot.Hitelfelvétel esetén akár egy héttel rövidebb lehet az ügyintézés.
Ez az ingatlan a nálunk meglévő adatok alapján azonnali értékbecslésre alkalmas lehet.
A becslés a hirdető által megadott adatokon alapul. A jelen tájékoztatás nem minősül ajánlattételnek és nem teljes körű, az egyes feltételek a hitelbírálat eredményétől függően változhatnak. Kérjük, a részletekről tájékozódj az OTP Bank fiókjaiban vagy az OTP Bank honlapján közzétett vonatkozó Üzletszabályzatokból és Hirdetményekből.
Vedd fel a kapcsolatot a hirdetővel
Fodor Zoltán OTPip - Budapest XIII. kerület Pannónia utca 25 - OTP Ingatlanpont Iroda Az iroda összes hirdetése
+36 70 675 2
Vedd fel a kapcsolatot a hirdetővel
Fodor Zoltán OTPip - Budapest XIII. kerület Pannónia utca 25 - OTP Ingatlanpont Iroda Az iroda összes hirdetése
+36 70 675 2
UI_KIT.CHARACTER_COUNTER__COMPONENT.ACTUAL_CHARACTER__SR_ONLY UI_KIT.CHARACTER_COUNTER__COMPONENT.MAXIMUM_CHARACTER__SR_ONLY
Hasonló eladó ingatlanok Budapest X. kerületben
Frissítve: 8 hónapja
16
Kincsem by Bayer
71 M Ft 1 145 161 Ft/m²
Eladó lakás, Budapest X. kerület, Gyógyszergyári út 6-12.
Frissítve: 8 hónapja
16
Kincsem by Bayer
67 M Ft 1 178 728 Ft/m²
Eladó lakás, Budapest X. kerület, Gyógyszergyári út 6-12.
Frissítve: 11 hónapja
16
Kincsem by Bayer
69,9 M Ft 1 553 333 Ft/m²
Eladó lakás, Budapest X. kerület, Gyógyszergyári út 6-12.

Fedezd fel a
hasonló lakásokat!Még további lakások Budapest X. kerületben 72,9 M Ft körüli értékben
Tovább a hirdetésekhez Frissítve: 8 hónapja
16
Kincsem by Bayer
79,9 M Ft 1 069 407 Ft/m²
Eladó lakás, Budapest X. kerület, Gyógyszergyári út 6-12.
Frissítve: 8 hónapja
16
Kincsem by Bayer
69,9 M Ft 1 059 091 Ft/m²
Eladó lakás, Budapest X. kerület, Gyógyszergyári út 6-12.
Frissítve: ma
15
79,9 M Ft 1 079 730 Ft/m²
Eladó lakás, Budapest X. kerület


