+8 fotó
Hirdetéskód: 8973548
Referenciaszám: 394821
Feltöltve: 2 napja
Budapest XI. kerület eladó panellakás 2+1 fél szobás: 99,9 millió Ft
99,9 millió Ft
1 350 000 Ft/m²
74 m²
2+1 fél szoba
4. emelet
Eladó panellakás Budapest, XI. kerület, 74nm, 99.900.000Ft - Gazdagrét
--- GAZDAGRÉTI LAKÓTELEPEN, BUDAPEST LEGKEDVELTEBB LAKÓTELEPÉN, 74 nm-es LAKÁS ---
A KÖRNYÉK
Gazdagrét a XI.kerület méltán kedvelt városrésze. Minden ami fontos, sétatávolságon belül megtalálható.
Bevásárló központ, éttermek, kávézók, játszóterek, kutyafuttatók, szépségszalonok, orvos rendelő, bankok, iskola, óvoda, bölcsőde stb. Tényleg minden.
Tömegközlekedése kiváló. Közvetlen buszjárat a 4-es Metróhoz, Kelenföldi pályaudvarhoz, Blaha Lujza térre, busz a Ferenciek terére és a Déli pályaudvarra.
Autóval pár perc az M1-M7 autópálya, a budaörsi bevásárló centrum.
A HÁZ
A ház a nyolcvanas évek közepén épült, 9 emeletes lakótömb. Igényes lakóközösség lakja, a lépcsőház tiszta, rendezett, gondnok és közös képviselő kiváló munkát végeznek.
A házak nem épültek közel egymáshoz, köztük hatalmas gondozott parkok találhatók.
Autóval parkolni a ház előtt díjmentesen lehet.
A LAKÁS
A lakás a 4.emeleten található. A sok ablaknak és a K-Ny-i tájolásnak köszönhetően világos. Remek elosztású, tágas lakás, mely még egy további szobával is bővíthető szükség esetén.
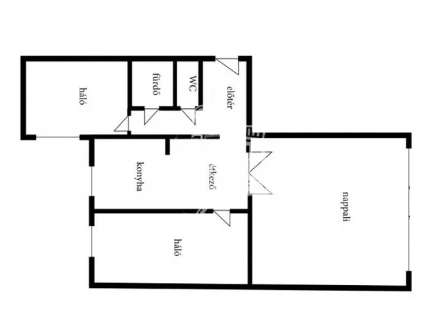
Elrendezése az alaprajz szerinti:
- Előszoba
- Hall/étkező
- Konyha
- Nappali
- Szoba
- Szoba
- Fürdőszoba
- WC (külön helységben)
A nagy méretű nappali könnyedén egy térré alakítható a hall és a konyha közti fal elbontásával, tovább növelve a teret.
A lakásban található bútorok megállapodás szerint maradhatnak.
AZ INGATLAN JÓ HELYEN TALÁLHATÓ, ELOSZTÁSA MIATT IGAZÁN ÉLHETŐ.
A KÖRNYÉK ADOTTSÁGAI MIATT TÖKÉLETES VÁLASZTÁS MINDEN KOROSZTÁLY SZÁMÁRA.
Amennyiben az ingatlan felkeltette érdeklődését keressen bizalommal!
AMENNYIBEN NEM RENDELKEZIK A TELJES VÉTELÁRRAL, segítünk Önnek megtalálni a legjobb megoldást!
BANKFÜGGETLEN hitelcentrumunk minden elérhető bank és hitelintézet ajánlatát versenyezteti az Ön kedvéért, ráadásul díjmentesen. Önnek nincs más dolga, mint elbeszélgetni munkatársunkkal, aki a hallott információk alapján versenyre hívja a bankokat, hogy Ön hosszú távon is a legjobb konstrukciót kaphassa. A legjobb ajánlatokból végül Ön választhatja ki a nyertest. Munkatársaink sokéves szakmai tapasztalattal várják Önt, előre egyeztetve akár a normál munkaidő után is.
Térkép ...TOVÁBBI, TÖBBEZRES INGATLAN KÍNÁLAT: www.gdn-ingatlan.hu - GDN azonosító: 394821
Tulajdonságok
Panellakás
Jó állapotú
Házközponti
1986
Nem adta meg a hirdető
Vedd fel a kapcsolatot a hirdetővel
+36 70 942 3
Hitelkalkulátor
Második évtől
429 924 Ft A 13. hónaptól
7,99%
Végig fix Futamidő: 20 év Banki visszahívás
Az OTP Bank munkatársai a neked megfelelő napszakban veszik fel veled a kapcsolatot.Hitelfelvétel esetén akár egy héttel rövidebb lehet az ügyintézés.
Ez az ingatlan a nálunk meglévő adatok alapján azonnali értékbecslésre alkalmas lehet.
A becslés a hirdető által megadott adatokon alapul. A jelen tájékoztatás nem minősül ajánlattételnek és nem teljes körű, az egyes feltételek a hitelbírálat eredményétől függően változhatnak. Kérjük, a részletekről tájékozódj az OTP Bank fiókjaiban vagy az OTP Bank honlapján közzétett vonatkozó Üzletszabályzatokból és Hirdetményekből.
Vedd fel a kapcsolatot a hirdetővel
+36 70 942 3
Vedd fel a kapcsolatot a hirdetővel
+36 70 942 3
UI_KIT.CHARACTER_COUNTER__COMPONENT.ACTUAL_CHARACTER__SR_ONLY UI_KIT.CHARACTER_COUNTER__COMPONENT.MAXIMUM_CHARACTER__SR_ONLY
Hasonló eladó ingatlanok Gazdagrét városrészben
Frissítve: 6 hónapja
1
92 M Ft 1 393 939 Ft/m²
Eladó lakás, Budapest XI. kerület, Gazdagrét
Frissítve: 11 napja
6
96,9 M Ft 1 309 459 Ft/m²
Eladó lakás, Budapest XI. kerület, Gazdagrét
Feltöltve: 2 hónapja
1
94,9 M Ft 1 416 418 Ft/m²
Eladó lakás, Budapest XI. kerület, Gazdagrét, Kaptárkő

Fedezd fel a
hasonló lakásokat!Még további lakások Budapest XI. kerületben 99,9 M Ft körüli értékben
Tovább a hirdetésekhez Frissítve: 11 napja
12
97 M Ft 1 469 697 Ft/m²
Eladó lakás, Budapest XI. kerület, Gazdagrét
Feltöltve: 18 napja
1
92 M Ft 1 373 134 Ft/m²
Eladó lakás, Budapest XI. kerület, Gazdagrét
Frissítve: ma
13
105,9 M Ft 1 450 685 Ft/m²
Eladó lakás, Budapest XI. kerület, Gazdagrét


