+13 fotó
Zenga
Premier
Hirdetéskód: 8790302
Referenciaszám: H510323
Frissítve: 2 napja
Budapest XIII. kerület eladó panellakás 2 szobás: 59,9 millió Ft
59,9 millió Ft
1 618 919 Ft/m²
37 m²
2 szoba
1. emelet

Friss hirdetések, amiket nem találsz meg más ingatlankereső portálon.
Fedezd fel elsőként a Zenga Premier címkés eladó ingatlanokat! További részletek A Duna House, OTP Ingatlanpont, Otthon Centrum és további hálózatok új, kizárólagos hirdetéseinek nagy részét a zenga.hu és koltozzbe.hu ingatlankeresőn láthatod legelőször, és a feltöltéstől két hétig nem érhetők el más ingatlankeresőn!
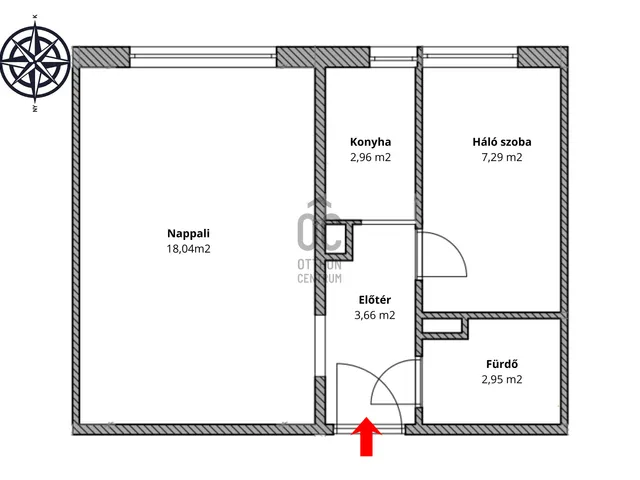
Újlipótváros szívében 1. emeleti, 37 m2-es, 2 szobás panellakás eladó.
Budapest XIII. kerületének egyik legkedveltebb részén, Újlipótváros szívében, kiváló közlekedésű és remek infrastruktúrával rendelkező környéken keresi új tulajdonosát egy 37 m2-es, jó állapotú lakás. Ha logikus elosztású és kedvező fenntartású ingatlant keres, ezt feltétlenül nézze meg!
KÖRNYÉK ÉS KÖZLEKEDÉS
Budapest XIII. kerülete, Újlipótváros, Vág utca.
Központi elhelyezkedésű, jól ellátott és nagyon kedvelt, értékálló környék.
5 perc séta az M3 metró Dózsa György úti megállója, a környéken több busz és villamosjárat is elérhető.
A Vág utca nyugodt lakókörnyezetet biztosít, mégis közel van a Váci úti központi részhez.
Lidl, Spar, kisboltok, pékség és drogériák is elérhetők sétatávolságban.
Játszóterek, kisebb parkok, sportolási lehetőségek biztosítják a kellemes, családbarát környezetet.
Gyógyszertár, posta, bankok, kávézók és éttermek néhány perc alatt elérhetők.
Metróval és autóval egyaránt pár perc alatt elérhető a Nyugati, a Westend és a belváros.
TÁRSASHÁZ PARAMÉTEREI:
1970-as években épült, 14 szintes, 2 lifttel rendelkező panel épület.
Külső, belső homlokzata és a lépcsőháza is egyaránt jó állapotú.
A társasház a panelprogramban részt vett.
Lakóközössége rendezett, nyugodt, vegyes korosztály.
A lakáshoz tartozik egy privát kapuval elzárt kocsibeálló és egy közös tároló helyiség is.
Mindkettő az ár részét képezi, így extra költség nélkül használható.
LAKÁS ADOTTSÁGAI ÉS PARAMÉTEREI:
1. emeleti, 37 m2-es, jó állapotú, tisztasági festés után, költözhető ingatlan.
Elosztása: előszoba, ablakos konyha, nappali, hálószoba, zuhanyzós fürdőszoba.
A szobák ablakai csendes belső udvarra néznek.
A nappali keleti tájolású, a lakótér normál fényviszonyokkal rendelkezik, délelőtti órákban süt be a nap.
A nyílászárók hőszigetelő műanyagra lettek cserélve.
A szobák laminált parkettával, az előszoba, konyha és a fürdőszoba járólappal burkolt.
A hálószobában hatalmas beépített szekrény segíti a tárolást.
Közös költség 8400 Ft / hó, a fenntartási költségek kedvezők.
Fűtést és a melegvíz előállítását távfűtés biztosítja.
AZ INGATLAN MEGTEKINTHETŐ:
személyesen,
ONLINE személyes bemutatással.
FINANSZÍROZÁSBAN ONLINE ÜGYINTÉZÉSSEL IS SEGÍTÜNK:
Bank-független hitelcenterünk díjmentesen versenyezteti minden bank és hitelintézet ajánlatát.
Önnek nincs más dolga, mint beszélgetni munkatársunkkal, majd a megversenyeztetett ajánlatokból kiválasztani a hosszútávon is a legmegfelelőbb konstrukciót.
Szakértőink 20 éves szakmai tapasztalattal és egyedi igényekre szabott, fogyasztóbarát lakáshitelekkel, babaváró hitellel, teljes körű CSOK PLUSZ és OTTHON START program ügyintézéssel várják Önt.
Előre egyeztetve akár a normál munkaidő után is.
Az ingatlan kiváló elhelyezkedésének köszönhetően igazán sok lehetőséget rejt magában. Akár saját részre, akár befektetésként, ezt mindenképp érdemes megnéznie!
VÁROM HÍVÁSÁT a hét minden napján!
Ez az ingatlan a "Felező csomag" megbízási portfólióhoz tartozik. Részletek az Otthon Centrum weboldalán.
Tulajdonságok
Panellakás
Távfűtés egyedi méréssel
1970
Nem adta meg a hirdető
Vedd fel a kapcsolatot a hirdetővel
+36 70 467 9
Hitelkalkulátor
Második évtől
257 782 Ft A 13. hónaptól
7,99%
Végig fix Futamidő: 20 év Banki visszahívás
Az OTP Bank munkatársai a neked megfelelő napszakban veszik fel veled a kapcsolatot.Hitelfelvétel esetén akár egy héttel rövidebb lehet az ügyintézés.
Ez az ingatlan a nálunk meglévő adatok alapján azonnali értékbecslésre alkalmas lehet.
A becslés a hirdető által megadott adatokon alapul. A jelen tájékoztatás nem minősül ajánlattételnek és nem teljes körű, az egyes feltételek a hitelbírálat eredményétől függően változhatnak. Kérjük, a részletekről tájékozódj az OTP Bank fiókjaiban vagy az OTP Bank honlapján közzétett vonatkozó Üzletszabályzatokból és Hirdetményekből.
Vedd fel a kapcsolatot a hirdetővel
+36 70 467 9
Vedd fel a kapcsolatot a hirdetővel
+36 70 467 9
UI_KIT.CHARACTER_COUNTER__COMPONENT.REMAINING_SPACE__SR_ONLYUI_KIT.CHARACTER_COUNTER__COMPONENT.MAXIMUM_CHARACTER__SR_ONLY
Hasonló eladó ingatlanok Újlipótváros városrészben
Feltöltve: 4 hónapja
1
65 M Ft 1 226 415 Ft/m²
Eladó lakás, Budapest XIII. kerület, Újlipótváros, Váci út 66.
Frissítve: 2 napja
9
62,9 M Ft 1 965 625 Ft/m²
Eladó lakás, Budapest XIII. kerület, Újlipótváros

Feltöltve: 23 napja
20
64,9 M Ft 1 442 222 Ft/m²
Eladó lakás, Budapest XIII. kerület, Újlipótváros, Visegrádi utca


Fedezd fel a
hasonló lakásokat!Még további lakások Budapest XIII. kerület, Újlipótváros városrészben 59,9 M Ft körüli értékben
Tovább a hirdetésekhez Frissítve: 12 napja
18
63 M Ft 1 500 000 Ft/m²
Eladó lakás, Budapest XIII. kerület, Újlipótváros

Frissítve: 15 napja
19
62,5 M Ft 1 562 500 Ft/m²
Eladó lakás, Budapest XIII. kerület, Újlipótváros, Visegrádi utca
Feltöltve: 1 napja
12
65 M Ft 2 096 774 Ft/m²
Eladó lakás, Budapest XIII. kerület, Újlipótváros


Töltsd fel hirdetésed ingyenesen!
Egyszerű
