+8 fotó
Zenga
Premier
Hirdetéskód: 8965523
Referenciaszám: M326897
Feltöltve: ma
Budapest XIII. kerület eladó panellakás 2+1 fél szobás: 85,4 millió Ft
85,4 millió Ft
1 255 883 Ft/m² *
* A m² árat a hirdető adta meg.
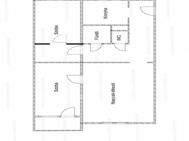
68 m²
2+1 fél szoba
1. emelet

Friss hirdetések, amiket nem találsz meg más ingatlankereső portálon.
Fedezd fel elsőként a Zenga Premier címkés eladó ingatlanokat! További részletek A Duna House, OTP Ingatlanpont, Otthon Centrum és további hálózatok új, kizárólagos hirdetéseinek nagy részét a zenga.hu és koltozzbe.hu ingatlankeresőn láthatod legelőször, és a feltöltéstől két hétig nem érhetők el más ingatlankeresőn!
Leírás
Családoknak és Pároknak, a biztos kezdet helye
Kiváló Környezetben, az Árpád híd pesti lehajtójánál lévő, frekventált, mégis zöldövezeti hangulatú környék. A Margit-sziget gyalog pár perc alatt elérhető, tökéletes kikapcsolódás, sport és családi programok helyszíne.
68 nm-en 3 külön nyíló szoba (nappali + 2 hálószoba) biztosítja a kényelmet. Az 1. emeleti elhelyezkedés ideális kisgyermekes családok számára.
Panelprogramban részt vett épület (új hőszigetelés és nyílászárók) garantálja az alacsony fenntartási költségeket és a kifogástalan külső állapotot (felújított lépcsőház és tető is!).
A lakás belső felújításra szorul, ami fantasztikus lehetőség, hogy saját ízlésére formálja.
Garantált bérbeadhatóság és értéknövelés
A környék közlekedése kiváló, irodaházak, boltok közelsége miatt a lakás kiadás szempontjából több mint ideális.
A jelenlegi felújítási igény (villany, vízvezetékek, belső nyílászárók és burkolatok cseréje szükséges) lehetővé teszi, hogy kedvező áron szerezzen meg egy olyan ingatlant, aminek értékét a felújítást követően azonnal maximalizálhatja.
A ház aljában lévő üzletek és szolgáltatók stabil bevételt biztosítanak a közös kasszának, ami a lakóközösség és a ház pénzügyi helyzetét is megerősíti.
Jogi Tisztaság: Per- és tehermentes, azonnal birtokba vehető!
Tulajdonságok
Panellakás
Felújítandó
Távfűtés
1987
Nem adta meg a hirdető
Vedd fel a kapcsolatot a hirdetővel
Potoczki László Budapest III. kerület Lajos utca 74-76 - OTP Ingatlanpont Iroda Az iroda összes hirdetése
+36 70 458 4
Hitelkalkulátor
Második évtől
367 523 Ft A 13. hónaptól
7,99%
Végig fix Futamidő: 20 év Banki visszahívás
Az OTP Bank munkatársai a neked megfelelő napszakban veszik fel veled a kapcsolatot.Hitelfelvétel esetén akár egy héttel rövidebb lehet az ügyintézés.
Ez az ingatlan a nálunk meglévő adatok alapján azonnali értékbecslésre alkalmas lehet.
A becslés a hirdető által megadott adatokon alapul. A jelen tájékoztatás nem minősül ajánlattételnek és nem teljes körű, az egyes feltételek a hitelbírálat eredményétől függően változhatnak. Kérjük, a részletekről tájékozódj az OTP Bank fiókjaiban vagy az OTP Bank honlapján közzétett vonatkozó Üzletszabályzatokból és Hirdetményekből.
Vedd fel a kapcsolatot a hirdetővel
Potoczki László Budapest III. kerület Lajos utca 74-76 - OTP Ingatlanpont Iroda Az iroda összes hirdetése
+36 70 458 4
Vedd fel a kapcsolatot a hirdetővel
Potoczki László Budapest III. kerület Lajos utca 74-76 - OTP Ingatlanpont Iroda Az iroda összes hirdetése
+36 70 458 4
UI_KIT.CHARACTER_COUNTER__COMPONENT.ACTUAL_CHARACTER__SR_ONLY UI_KIT.CHARACTER_COUNTER__COMPONENT.MAXIMUM_CHARACTER__SR_ONLY
Hasonló eladó ingatlanok Vizafogó városrészben
Frissítve: 1 éve
1
93,9 M Ft 1 956 250 Ft/m²
Eladó lakás, Budapest XIII. kerület, Vizafogó
Frissítve: 3 napja
13
78,99 M Ft 1 974 750 Ft/m²
Eladó lakás, Budapest XIII. kerület, Vizafogó

Frissítve: 3 napja
6
85,01 M Ft 1 911 626 Ft/m²
Eladó lakás, Budapest XIII. kerület, Vizafogó


Fedezd fel a
hasonló lakásokat!Még további lakások Budapest XIII. kerület, Vizafogó városrészben 85,4 M Ft körüli értékben
Tovább a hirdetésekhez Frissítve: 3 napja
9
92,41 M Ft 1 976 262 Ft/m²
Eladó lakás, Budapest XIII. kerület, Vizafogó

Frissítve: 3 napja
8
83,84 M Ft 1 960 711 Ft/m²
Eladó lakás, Budapest XIII. kerület, Vizafogó

Frissítve: 3 napja
7
79,62 M Ft 1 704 926 Ft/m²
Eladó lakás, Budapest XIII. kerület, Vizafogó

