+8 fotó
Hirdetéskód: 8826456
Referenciaszám: M317057-5107261
Frissítve: 8 napja
Budapest XIII. kerület eladó panellakás 2+1 fél szobás: 86,9 millió Ft
86,9 millió Ft
1 277 941 Ft/m²
68 m²
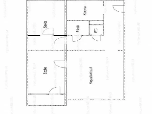
2+1 fél szoba
1. emelet
Eladó Lakás, Budapest 13. ker.
Ez az ingatlan KÉT CÉLCSOPORT számára KIVÉTELES LEHETŐSÉG:
Családoknak és Pároknak: A biztos kezdet helye
Kiváló Környezet: Az Árpád híd pesti lehajtójánál lévő, frekventált, mégis zöldövezeti hangulatú környék. A Margit-sziget gyalog pár perc alatt elérhető, tökéletes kikapcsolódás, sport és családi programok helyszíne.
Kényelmes Élet: 68 nm-en 3 külön nyíló szoba (nappali + 2 hálószoba) biztosítja a kényelmet. Az 1. emeleti elhelyezkedés ideális kisgyermekes családok számára.
Költséghatékony: A Panelprogramban részt vett épület (új hőszigetelés és nyílászárók) garantálja az alacsony fenntartási költségeket és a kifogástalan külső állapotot (felújított lépcsőház és tető is!).
Személyre Szabható Otthon: A lakás belső felújításra szorul, ami fantasztikus lehetőség, hogy saját ízlésére formálja.
Befektetőknek: Garantált Bérbeadhatóság és Értéknövelés
Prémium Lokáció: A környék közlekedése kiváló, irodaházak, boltok közelsége miatt a lakás kiadás szempontjából több mint ideális.
Azonnali Értéknövelés: A jelenlegi felújítási igény (villany, vízvezetékek, belső nyílászárók és burkolatok cseréje szükséges) lehetővé teszi, hogy kedvező áron szerezzen meg egy olyan ingatlant, aminek értékét a felújítást követően azonnal maximalizálhatja.
Stabilitás: A ház aljában lévő üzletek és szolgáltatók stabil bevételt biztosítanak a közös kasszának, ami a lakóközösség és a ház pénzügyi helyzetét is megerősíti.
Jogi Tisztaság: Per- és tehermentes, azonnal birtokba vehető!
Ne maradjon le erről a páratlan lehetőségről, ahol a lokáció, a biztonság és a felújítási potenciál találkozik!
Hívjon még ma, és tekintse meg személyesen a jövőbeni otthonát vagy befektetését! M317057
Referencia szám: M317057
Tulajdonságok
Panellakás
Felújítandó
Távfűtés
1987
Nem adta meg a hirdető
Vedd fel a kapcsolatot a hirdetővel
Farkasné Hernádi Ágnes OTPip - Budapest I. kerület Zsolt utca 6 - OTP Ingatlanpont Iroda Az iroda összes hirdetése
+36 30 871 5
Hitelkalkulátor
Második évtől
373 978 Ft A 13. hónaptól
7,99%
Végig fix Futamidő: 20 év Banki visszahívás
Az OTP Bank munkatársai a neked megfelelő napszakban veszik fel veled a kapcsolatot.Hitelfelvétel esetén akár egy héttel rövidebb lehet az ügyintézés.
Ez az ingatlan a nálunk meglévő adatok alapján azonnali értékbecslésre alkalmas lehet.
A becslés a hirdető által megadott adatokon alapul. A jelen tájékoztatás nem minősül ajánlattételnek és nem teljes körű, az egyes feltételek a hitelbírálat eredményétől függően változhatnak. Kérjük, a részletekről tájékozódj az OTP Bank fiókjaiban vagy az OTP Bank honlapján közzétett vonatkozó Üzletszabályzatokból és Hirdetményekből.
Vedd fel a kapcsolatot a hirdetővel
Farkasné Hernádi Ágnes OTPip - Budapest I. kerület Zsolt utca 6 - OTP Ingatlanpont Iroda Az iroda összes hirdetése
+36 30 871 5
Vedd fel a kapcsolatot a hirdetővel
Farkasné Hernádi Ágnes OTPip - Budapest I. kerület Zsolt utca 6 - OTP Ingatlanpont Iroda Az iroda összes hirdetése
+36 30 871 5
UI_KIT.CHARACTER_COUNTER__COMPONENT.ACTUAL_CHARACTER__SR_ONLY UI_KIT.CHARACTER_COUNTER__COMPONENT.MAXIMUM_CHARACTER__SR_ONLY
Hasonló eladó ingatlanok Budapest XIII. kerületben
Frissítve: 8 napja
20
89,9 M Ft 1 167 532 Ft/m²
Eladó lakás, Budapest XIII. kerület
Frissítve: 6 napja
18
89 M Ft 978 022 Ft/m²
Eladó lakás, Budapest XIII. kerület

Frissítve: 8 napja
8
78,9 M Ft 1 878 571 Ft/m²
Eladó lakás, Budapest XIII. kerület


Fedezd fel a
hasonló lakásokat!Még további lakások Budapest XIII. kerületben 86,9 M Ft körüli értékben
Tovább a hirdetésekhez Frissítve: 5 hónapja
6
Kamilla Club House By Astora
89,37 M Ft 1 624 909 Ft/m²
Eladó lakás, Budapest XIII. kerület, Jász utca 48
Frissítve: 5 hónapja
5
Granat Club House By Astora
87,79 M Ft 1 540 175 Ft/m²
Eladó lakás, Budapest XIII. kerület
Frissítve: 6 napja
17
94,1 M Ft 990 526 Ft/m²
Eladó lakás, Budapest XIII. kerület, Mosoly utca

