+8 fotó
Hirdetéskód: 8920316
Referenciaszám: 393367
Feltöltve: 2 napja
Budapest XIV. kerület eladó panellakás 1+1 fél szobás: 64,9 millió Ft
64,9 millió Ft
1 324 490 Ft/m²
49 m²
1+1 fél szoba
félemelet
Eladó panellakás Budapest, XIV. kerület, 49nm, 64.900.000Ft - Ond vezér útja
Világos, erkélyes 49nm -es lakás eladó a XIV. kerület egyik legkedveltebb részén – a Füredi lakótelepen!
Nyugati fekvésének köszönhetően világos, a 3 m²-es loggia pedig kellemes plusz tér egy kávéhoz vagy esti pihenéshez.
Ha egy jó elosztású, akár azonnal kiadható lakást keresel zöld környezetben, kiváló közlekedéssel, ezt érdemes megnézni.
________________________________________
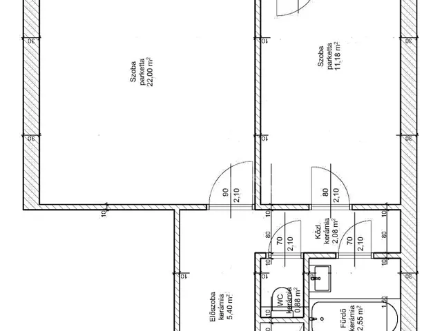
Lakás jellemzői
• 49 m² alapterület
• 2 külön és egyben nyíló szoba
• 3 m²-es loggia
• Nyugati fekvés – világos lakás
• 2,7 m belmagasság
• Jó állapot
• Szabályozható távfűtés → kedvező rezsi
• Per- és tehermentes
A lakás praktikus elosztású:
egy L alakú előtérből minden helyiség külön nyílik.
Konyha, külön WC, fürdőszoba, valamint két szoba, melyek közül a kisebbhez loggia kapcsolódik.
________________________________________
Társasház
• 10 emeletes, panelprogramos épület
• Lift
• Rendezett lépcsőház
• Szintenként közös tároló
• Számkódos beléptetés
________________________________________
Környék
Zöld környezettel, parkokkal és játszóterekkel.
A közelben:
Spar, ALDI
Sugár, Árkád
IKEA
éttermek, pékségek
iskola, óvoda, posta, gyógyszertár
________________________________________
Közlekedés
Nagyon jó:
80-as troli
M2 metró pár perc
több buszjárat
Rákosfalva HÉV könnyen elérhető
________________________________________
Parkolás: a ház körül ingyenesen.
________________________________________
Ideális választás:
• első lakásnak
• egyedülállóknak
• pároknak
• vagy akár kiadásra is
Ha kiadásban gondolkodik az ingatlan jelenleg is bérbe van adva, így akár azonnali hozamot biztosít!
Kérdés, illetve megtekintés esetén forduljon hozzám bizalommal! ...TOVÁBBI, TÖBBEZRES INGATLAN KÍNÁLAT: www.gdn-ingatlan.hu - GDN azonosító: 393367
Tulajdonságok
Panellakás
Jó állapotú
Távfűtés egyedi méréssel
1977
4 m²
Nem adta meg a hirdető
Vedd fel a kapcsolatot a hirdetővel
+36 30 478 2
Hitelkalkulátor
Második évtől
279 300 Ft A 13. hónaptól
7,99%
Végig fix Futamidő: 20 év Banki visszahívás
Az OTP Bank munkatársai a neked megfelelő napszakban veszik fel veled a kapcsolatot.Hitelfelvétel esetén akár egy héttel rövidebb lehet az ügyintézés.
Ez az ingatlan a nálunk meglévő adatok alapján azonnali értékbecslésre alkalmas lehet.
A becslés a hirdető által megadott adatokon alapul. A jelen tájékoztatás nem minősül ajánlattételnek és nem teljes körű, az egyes feltételek a hitelbírálat eredményétől függően változhatnak. Kérjük, a részletekről tájékozódj az OTP Bank fiókjaiban vagy az OTP Bank honlapján közzétett vonatkozó Üzletszabályzatokból és Hirdetményekből.
Vedd fel a kapcsolatot a hirdetővel
+36 30 478 2
Vedd fel a kapcsolatot a hirdetővel
+36 30 478 2
UI_KIT.CHARACTER_COUNTER__COMPONENT.ACTUAL_CHARACTER__SR_ONLY UI_KIT.CHARACTER_COUNTER__COMPONENT.MAXIMUM_CHARACTER__SR_ONLY
Hasonló eladó ingatlanok Zugló városrészben
Feltöltve: 17 napja
13
64,9 M Ft 1 410 870 Ft/m²
Eladó lakás, Budapest XIV. kerület, Zugló

Frissítve: 1 napja
10
66,9 M Ft 1 454 348 Ft/m²
Eladó lakás, Budapest XIV. kerület, Zugló

Frissítve: 19 napja
18
67 M Ft 1 340 000 Ft/m²
Eladó lakás, Budapest XIV. kerület, Zugló

Fedezd fel a
hasonló lakásokat!Még további lakások Budapest XIV. kerület, Zugló városrészben 64,9 M Ft körüli értékben
Tovább a hirdetésekhez Frissítve: 17 napja
13
69 M Ft 1 500 000 Ft/m²
Eladó lakás, Budapest XIV. kerület, Zugló

Frissítve: 1 napja
12
65,2 M Ft 1 417 391 Ft/m²
Eladó lakás, Budapest XIV. kerület, Zugló

Frissítve: 11 napja
18
67 M Ft 1 340 000 Ft/m²
Eladó lakás, Budapest XIV. kerület, Zugló

