+10 fotó
Hirdetéskód: 8970046
Referenciaszám: 394756
Frissítve: ma
Budapest XIV. kerület eladó panellakás 1+1 fél szobás: 71,5 millió Ft
71,5 millió Ft
1 300 000 Ft/m²
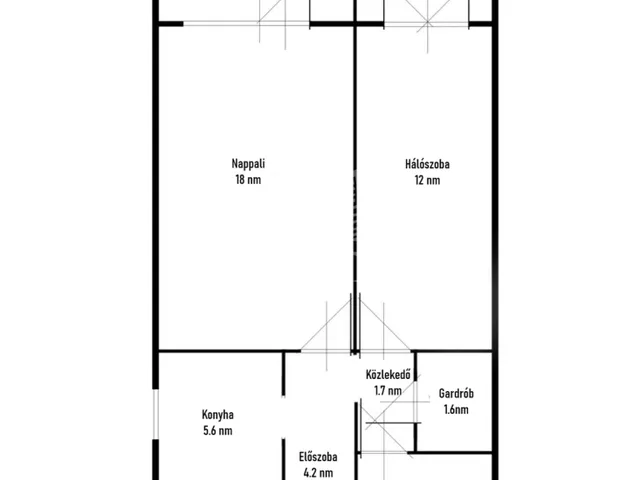
55 m²
1+1 fél szoba
2. emelet
Eladó panellakás Budapest, XIV. kerület, 55nm, 71.500.000Ft - Vezér utca
Zugló egyik legjobb fogása – 2 loggiás, felújított lakás a Füredi lakótelepen
Zugló közkedvelt részén, a Füredi lakótelepen kínálok megvételre egy 55 m²-es, 2. emeleti, teljeskörűen felújított lakást, amely ritka adottságával – két külön loggiával – azonnal kitűnik a piacon.
Ez nem egy átlagos panel. Ez egy jól átgondolt, élhető otthon, ahol minden négyzetméternek funkciója van.
- Ami miatt azonnal beleszeretnek:
-2 külön loggia – extra tér, reggeli kávé, esti kikapcsolódás
-Klímás lakás – nyáron is komfort
-Nappali + külön háló – ideális pároknak, kis családnak
- Külön nyíló szobák – nincs átjárás
- Gardrób + kamra – ritka, brutál jó tárolás
- Felújítás (2017 – nem kozmetika, hanem alapoktól):
-villanyvezetékek teljes cseréje
-burkolatok és beltéri ajtók cseréje
-radiátorcsere
-áramhálózat bővítés
Magyarul: nem kell hozzányúlni, költözöl és kész.
Főbb adatok:
-55 m²
-1 + 1 fél szoba
-2 emelet
-lift + teherlift
tehermentes
Örs vezér tere ~10 perc séta
több buszjárat pár perc
boltok, éttermek, minden a közelben
óvoda, iskola, orvos – családbarát környezet
Kinek ideális?
első lakásnak
fiatal párnak
kisgyermekes családnak
befektetésnek (könnyen kiadható lokáció!) ...TOVÁBBI, TÖBBEZRES INGATLAN KÍNÁLAT: www.gdn-ingatlan.hu - GDN azonosító: 394756
Tulajdonságok
Panellakás
Felújított
Távfűtés
1980
7 m²
Nem adta meg a hirdető
Vedd fel a kapcsolatot a hirdetővel
+36 30 720 3
Hitelkalkulátor
Második évtől
307 703 Ft A 13. hónaptól
7,99%
Végig fix Futamidő: 20 év Banki visszahívás
Az OTP Bank munkatársai a neked megfelelő napszakban veszik fel veled a kapcsolatot.Hitelfelvétel esetén akár egy héttel rövidebb lehet az ügyintézés.
Ez az ingatlan a nálunk meglévő adatok alapján azonnali értékbecslésre alkalmas lehet.
A becslés a hirdető által megadott adatokon alapul. A jelen tájékoztatás nem minősül ajánlattételnek és nem teljes körű, az egyes feltételek a hitelbírálat eredményétől függően változhatnak. Kérjük, a részletekről tájékozódj az OTP Bank fiókjaiban vagy az OTP Bank honlapján közzétett vonatkozó Üzletszabályzatokból és Hirdetményekből.
Vedd fel a kapcsolatot a hirdetővel
+36 30 720 3
Vedd fel a kapcsolatot a hirdetővel
+36 30 720 3
UI_KIT.CHARACTER_COUNTER__COMPONENT.ACTUAL_CHARACTER__SR_ONLY UI_KIT.CHARACTER_COUNTER__COMPONENT.MAXIMUM_CHARACTER__SR_ONLY
Hasonló eladó ingatlanok Budapest XIV. kerületben
Frissítve: 1 éve
1
66,56 M Ft 993 366 Ft/m²
Eladó lakás, Budapest XIV. kerület
Frissítve: 11 napja
20
73,44 M Ft 1 668 977 Ft/m²
Eladó lakás, Budapest XIV. kerület

Frissítve: 11 napja
18
75 M Ft 1 923 077 Ft/m²
Eladó lakás, Budapest XIV. kerület


Fedezd fel a
hasonló lakásokat!Még további lakások Budapest XIV. kerületben 71,5 M Ft körüli értékben
Tovább a hirdetésekhez Frissítve: 11 napja
18
75 M Ft 1 923 077 Ft/m²
Eladó lakás, Budapest XIV. kerület

Feltöltve: 10 hónapja
0
68,5 M Ft 1 245 455 Ft/m²
Eladó lakás, Budapest XIV. kerület
Frissítve: 11 napja
20
73,44 M Ft 1 668 977 Ft/m²
Eladó lakás, Budapest XIV. kerület, Szuglói körvasút sor


