

+7 fotó
Hirdetéskód: 8740243
Referenciaszám: M314112-5057651
Feltöltve: 7 napja
Budapest XIX. kerület eladó panellakás 2+1 fél szobás: 76 millió Ft
76 millió Ft
1 433 962 Ft/m²
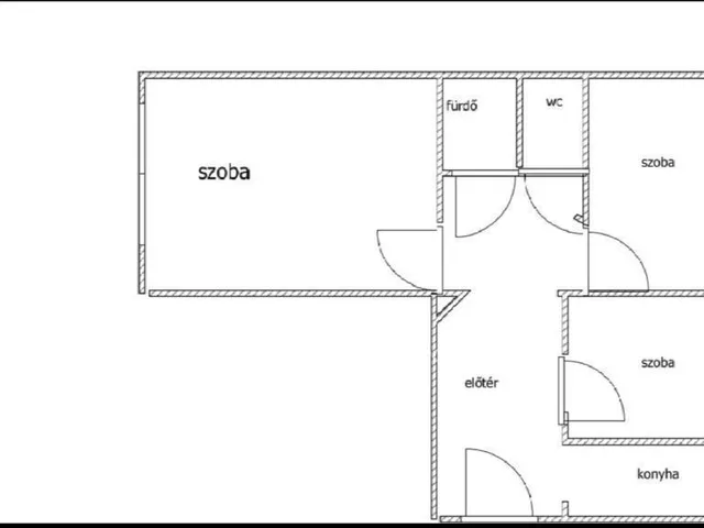
53 m²
2+1 fél szoba
Eladó Lakás, Budapest 19. ker.
Eladó ******Kispest*****3 szobás lakás****3%- os hitel!!!!
Eladásra kínálok Kispest szívében, egy 53 m2-es, 2 +1 szobás, loggiás ,7.emeleti világos lakást!
Gyönyörűen felújított, IKEA bútorokkal ízlésesen berendezett, modern burkolatokkal, új konyhabútorral és berendezési tárgyakkal ellátott, igényes otthon! Délkeleti fekvésű a nagyobb szoba, de a két kisebb szoba délnyugati, mindegyiken ablak, így a lakás mindig fényben úszik.
A loggia a kisgyermekek miatt védőhálózott. Külön wc és fürdőszoba van. A konyhában a tűzhely és a sütő is villany,szintén Ikeás.
A beépített gardróbok, cipőtárolók, a nappali bútor a leendő vevő igénye szerint mind maradhatnak,a tulajdonossal egyeztetve megvásárolhatók.
A környék telis tele óvodákkal, bölcsikkel, játszótérrel, parkokkal, bevásárlási lehetőségekkel.
A házban Telekom és Digi is elérhető.
A közös költség 27.000,-a vízzel és szeméttel, jelenleg extra csomaggal,extra fogyasztási lehetőséggel. 4 vízórával ellátott. Panel program folyamatban. Fűtés, villany kb.22.000,-.
Csendes, békés ház, jó szomszédok!!
Remek lehetőség kisgyermekeseknek, home officeban dolgozóknak, új otthont keresőknek, kiscsaládosoknak,de befektetésnek sem utolsó!! A beköltözés gyorsan megoldható!
Teljeskörű hitel ügyintézéssel és ügyvédi háttérrel biztosítjuk a leendő tulajdonosok gyors, minden igényt kielégítő ingatlan vásárlását!
Kérdéseivel és megtekintési szándékával forduljon hozzám bizalommal!
Az ingatlan kevés, igény szerint rendezhető hitellel terhelt, de 3% otthon Start és egyéb hitelre is alkalmas .
Tulajdonságok
1990
Nem adta meg a hirdető
Vedd fel a kapcsolatot a hirdetővel
Terjék Nikolett Erzsébet OTPip - Dunaharaszti Bocskai utca 10 - OTP Ingatlanpont Iroda Az iroda összes hirdetése
+36 70 941 9
Hitelkalkulátor
Második évtől
327 069 Ft A 13. hónaptól
7,99%
Végig fix Futamidő: 20 év Banki visszahívás
Az OTP Bank munkatársai a neked megfelelő napszakban veszik fel veled a kapcsolatot.Hitelfelvétel esetén akár egy héttel rövidebb lehet az ügyintézés.
Ez az ingatlan a nálunk meglévő adatok alapján azonnali értékbecslésre alkalmas lehet.
A becslés a hirdető által megadott adatokon alapul. A jelen tájékoztatás nem minősül ajánlattételnek és nem teljes körű, az egyes feltételek a hitelbírálat eredményétől függően változhatnak. Kérjük, a részletekről tájékozódj az OTP Bank fiókjaiban vagy az OTP Bank honlapján közzétett vonatkozó Üzletszabályzatokból és Hirdetményekből.
Vedd fel a kapcsolatot a hirdetővel
Terjék Nikolett Erzsébet OTPip - Dunaharaszti Bocskai utca 10 - OTP Ingatlanpont Iroda Az iroda összes hirdetése
+36 70 941 9
Vedd fel a kapcsolatot a hirdetővel
Terjék Nikolett Erzsébet OTPip - Dunaharaszti Bocskai utca 10 - OTP Ingatlanpont Iroda Az iroda összes hirdetése
+36 70 941 9
UI_KIT.CHARACTER_COUNTER__COMPONENT.REMAINING_SPACE__SR_ONLYUI_KIT.CHARACTER_COUNTER__COMPONENT.MAXIMUM_CHARACTER__SR_ONLY
Hasonló eladó ingatlanok Budapest XIX. kerületben
Feltöltve: 2 éve

20
69,78 M Ft 1 057 318 Ft/m²
Eladó lakás, Budapest XIX. kerület
Frissítve: 19 napja

20
80,04 M Ft 1 861 341 Ft/m²
Eladó lakás, Budapest XIX. kerület

Frissítve: 19 napja

20
81,61 M Ft 1 854 785 Ft/m²
Eladó lakás, Budapest XIX. kerület


Fedezd fel a
hasonló lakásokat!Még további lakások Budapest XIX. kerületben 76 M Ft körüli értékben
Tovább a hirdetésekhez Frissítve: 19 napja

20
83,23 M Ft 1 698 661 Ft/m²
Eladó lakás, Budapest XIX. kerület

Frissítve: 19 napja

20
83,59 M Ft 1 705 912 Ft/m²
Eladó lakás, Budapest XIX. kerület

Frissítve: 19 napja

20
77,59 M Ft 1 939 700 Ft/m²
Eladó lakás, Budapest XIX. kerület


Töltsd fel hirdetésed ingyenesen!
Egyszerű