+6 fotó
Hirdetéskód: 8962811
Referenciaszám: 394595
Feltöltve: 3 napja
Budapest XIX. kerület eladó panellakás 1+2 fél szobás: 66,9 millió Ft
66,9 millió Ft
1 262 264 Ft/m²
53 m²
1+2 fél szoba
6. emelet
Eladó panellakás Budapest, XIX. kerület, 53nm, 66.900.000Ft - Zrínyi utca
Első lakás a XIX. kerületben – ideális választás az Otthon Start Programhoz
Megvételre kínálok a XIX. kerületben, a Zrínyi utcában egy 53 m²-es, 2 + 1 félszobás, tehermentes panellakást. Az ingatlan azonnal költözhető állapotban van, így kiváló lehetőség első lakást keresőknek vagy fiatal pároknak.
A lakás egy 10 emeletes, liftes, rendezett társasház 6. emeletén található. A környék csendes, parkos, mégis jól megközelíthető, így ideális választás azok számára, akik nyugodt, de városi környezetben szeretnének élni.
Elrendezés – jól alakítható terek
A 2 + 1 félszobás kialakítás rugalmasan alkalmazkodik az élethelyzethez:
a nappali tágas közösségi térként funkcionál,
a félszoba kényelmes hálószobának ideális,
a harmadik szoba használható dolgozószobának, gyerekszobának vagy gardróbnak.
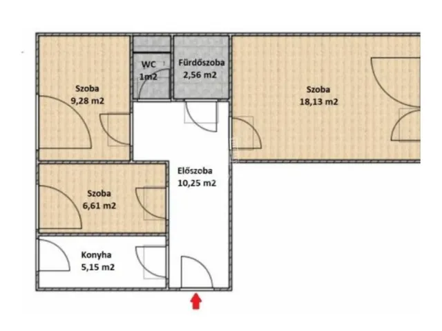
Helyiségek:
előszoba (5,8 m²)
konyha
közlekedő (4,1 m²)
külön fürdőszoba és WC
hálószoba (9,3 m²)
nappali (18,3 m²)
Műszaki állapot
Az ingatlan az elmúlt években több felújításon esett át:
2022-ben műanyag, több rétegű üvegezésű nyílászárók kerültek beépítésre,
szintén 2022-ben megtörtént a hidegburkolatok cseréje a folyosón, konyhában, fürdőben és WC-ben,
új radiátorok biztosítják az egyenletes hőleadást,
a nappaliban hűtő-fűtő klíma található,
2025 novemberében tisztasági festés történt.
A lakás azonnali felújítás nélkül birtokba vehető.
Költségek és finanszírozás
A közös költség 20.500 Ft/hó, amely tartalmazza a takarítást, a felújítási alapot és a lift felújításának törlesztését is.
Az ingatlan tehermentes, banki hitellel is megvásárolható.
Környék és ellátottság
A közelben minden fontos szolgáltatás elérhető: bevásárlási lehetőségek, gyógyszertár, orvosi rendelő, oktatási intézmények, valamint sportolási és kikapcsolódási lehetőségek.
Közlekedés
3 perc sétára az 50-es villamos, amely kapcsolatot biztosít a Határ úti M3-as metróhoz,
3 perc sétára több buszjárat (93, 93A, 136),
a belváros, Deák Ferenc tér körülbelül 36 perc alatt elérhető,
a parkolás a környéken díjmentes.
Sport és kikapcsolódás
A közelben új konditerem található, valamint az utca végén reformer pilates stúdió is elérhető.
Ez a lakás kiváló választás mindazok számára, akik egy jól elrendezett, azonnal költözhető otthont keresnek jó közlekedéssel és teljes infrastruktúrával rendelkező környezetben. ...TOVÁBBI, TÖBBEZRES INGATLAN KÍNÁLAT: www.gdn-ingatlan.hu - GDN azonosító: 394595
Tulajdonságok
Panellakás
Felújított
Távfűtés
1980
Nem adta meg a hirdető
Vedd fel a kapcsolatot a hirdetővel
+36 30 720 3
Hitelkalkulátor
Második évtől
287 907 Ft A 13. hónaptól
7,99%
Végig fix Futamidő: 20 év Banki visszahívás
Az OTP Bank munkatársai a neked megfelelő napszakban veszik fel veled a kapcsolatot.Hitelfelvétel esetén akár egy héttel rövidebb lehet az ügyintézés.
Ez az ingatlan a nálunk meglévő adatok alapján azonnali értékbecslésre alkalmas lehet.
A becslés a hirdető által megadott adatokon alapul. A jelen tájékoztatás nem minősül ajánlattételnek és nem teljes körű, az egyes feltételek a hitelbírálat eredményétől függően változhatnak. Kérjük, a részletekről tájékozódj az OTP Bank fiókjaiban vagy az OTP Bank honlapján közzétett vonatkozó Üzletszabályzatokból és Hirdetményekből.
Vedd fel a kapcsolatot a hirdetővel
+36 30 720 3
Vedd fel a kapcsolatot a hirdetővel
+36 30 720 3
UI_KIT.CHARACTER_COUNTER__COMPONENT.ACTUAL_CHARACTER__SR_ONLY UI_KIT.CHARACTER_COUNTER__COMPONENT.MAXIMUM_CHARACTER__SR_ONLY
Hasonló eladó ingatlanok Budapest XIX. kerületben
Frissítve: 5 napja
20
68,43 M Ft 1 754 488 Ft/m²
Eladó lakás, Budapest XIX. kerület

Frissítve: 5 napja
20
63,28 M Ft 1 861 104 Ft/m²
Eladó lakás, Budapest XIX. kerület

Frissítve: 5 napja
20
63,31 M Ft 1 862 117 Ft/m²
Eladó lakás, Budapest XIX. kerület


Fedezd fel a
hasonló lakásokat!Még további lakások Budapest XIX. kerületben 66,9 M Ft körüli értékben
Tovább a hirdetésekhez Frissítve: 5 napja
20
63,64 M Ft 1 818 150 Ft/m²
Eladó lakás, Budapest XIX. kerület

Frissítve: 5 napja
20
62,4 M Ft 1 782 808 Ft/m²
Eladó lakás, Budapest XIX. kerület

Frissítve: 5 napja
20
65,22 M Ft 1 918 336 Ft/m²
Eladó lakás, Budapest XIX. kerület


