+7 fotó
Hirdetéskód: 8913887
Referenciaszám: M322862-5164826
Feltöltve: ma
Budapest XV. kerület eladó panellakás 1+1 fél szobás: 51 millió Ft
51 millió Ft
1 457 143 Ft/m²
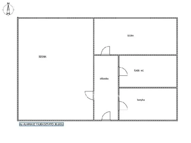
35 m²
1+1 fél szoba
1. emelet
Eladó Lakás, Budapest 15. ker.
Eladó másfél szobás lakás Budapest XV. kerületében azonnal költözhető! Budapest XV. kerületében, központi elhelyezkedéssel eladó egy 35 m2-es, másfél szobás, első emeleti panellakás. Főbb jellemzők: panelprogramos épület (szigetelés, műanyag nyílászárók). Rendezett, tiszta lépcsőház. A lakás jó állapotú, azonnal költözhető. Fürdőszoba felújítva: csempefestékkel korszerűsítve, burkolatok rendben. Ingyenes parkolás közterületen. 1/1 tulajdon, tehermentes. 3%-os OSP hitelre alkalmas. Elhelyezkedés: kiváló infrastruktúra, Pólus Center és Ázsia Center a közelben. Tömegközlekedés, boltok, szolgáltatások pár perc sétára. Ajánljuk: kezdő lakásnak, befektetésnek (könnyen kiadható). Ne maradjon le erről a remek lehetőségről azonnal költözhető lakás, kiváló helyen!
Tulajdonságok
Panellakás
Átlagos
Távfűtés egyedi méréssel
1980
Nem adta meg a hirdető
Vedd fel a kapcsolatot a hirdetővel
Kéki Mónika OTPip - Budapest IX. kerület Üllői út 21 - OTP Ingatlanpont Iroda Az iroda összes hirdetése
+36 70 518 5
Hitelkalkulátor
Második évtől
219 481 Ft A 13. hónaptól
7,99%
Végig fix Futamidő: 20 év Banki visszahívás
Az OTP Bank munkatársai a neked megfelelő napszakban veszik fel veled a kapcsolatot.Hitelfelvétel esetén akár egy héttel rövidebb lehet az ügyintézés.
Ez az ingatlan a nálunk meglévő adatok alapján azonnali értékbecslésre alkalmas lehet.
A becslés a hirdető által megadott adatokon alapul. A jelen tájékoztatás nem minősül ajánlattételnek és nem teljes körű, az egyes feltételek a hitelbírálat eredményétől függően változhatnak. Kérjük, a részletekről tájékozódj az OTP Bank fiókjaiban vagy az OTP Bank honlapján közzétett vonatkozó Üzletszabályzatokból és Hirdetményekből.
Vedd fel a kapcsolatot a hirdetővel
Kéki Mónika OTPip - Budapest IX. kerület Üllői út 21 - OTP Ingatlanpont Iroda Az iroda összes hirdetése
+36 70 518 5
Vedd fel a kapcsolatot a hirdetővel
Kéki Mónika OTPip - Budapest IX. kerület Üllői út 21 - OTP Ingatlanpont Iroda Az iroda összes hirdetése
+36 70 518 5
UI_KIT.CHARACTER_COUNTER__COMPONENT.ACTUAL_CHARACTER__SR_ONLY UI_KIT.CHARACTER_COUNTER__COMPONENT.MAXIMUM_CHARACTER__SR_ONLY
Hasonló eladó ingatlanok Újpalota városrészben
Frissítve: 4 hónapja
1
52,5 M Ft 1 500 000 Ft/m²
Eladó lakás, Budapest XV. kerület, Újpalota, Nyírpalota
Frissítve: 14 napja
9
52,99 M Ft 1 471 944 Ft/m²
Eladó lakás, Budapest XV. kerület, Újpalota

Frissítve: 14 napja
20
55,9 M Ft 1 597 143 Ft/m²
Eladó lakás, Budapest XV. kerület, Újpalota


Fedezd fel a
hasonló lakásokat!Még további lakások Budapest XV. kerület, Újpalota városrészben 51 M Ft körüli értékben
Tovább a hirdetésekhez Frissítve: 14 napja
20
55,9 M Ft 1 597 143 Ft/m²
Eladó lakás, Budapest XV. kerület, Újpalota

Feltöltve: 4 hónapja
1
49,9 M Ft 1 425 714 Ft/m²
Eladó lakás, Budapest XV. kerület, Újpalota, Neptun
Frissítve: 12 napja
8
51,9 M Ft 1 482 857 Ft/m²
Eladó lakás, Budapest XV. kerület, Újpalota

