+4 fotó
Hirdetéskód: 8931503
Referenciaszám: M322862-5175317
Feltöltve: 1 napja
Budapest XV. kerület eladó panellakás 1+1 fél szobás: 51 millió Ft
51 millió Ft
1 457 143 Ft/m²
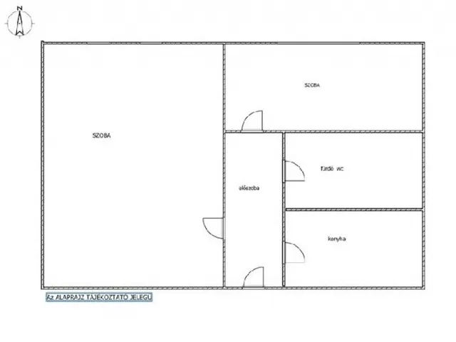
35 m²
1+1 fél szoba
1. emelet
Eladó Lakás, Budapest 15. ker.
Eladó másfél szobás lakás Budapest XV. kerületében azonnal költözhető!
Budapest XV. kerületében, központi elhelyezkedéssel eladó egy 35 nm-es, másfél szobás, első emeleti panellakás.
Főbb jellemzők: panelprogramos épület (szigetelés, műanyag nyílászárók).
Rendezett, tiszta lépcsőház.
A lakás jó állapotú, azonnal költözhető.
Fürdőszoba felújítva: csempefestékkel korszerűsítve, burkolatok rendben.
Ingyenes parkolás közterületen.
1/1 tulajdon, tehermentes. 3%-os OSP hitelre alkalmas.
Elhelyezkedés: kiváló infrastruktúra, Pólus Center és Ázsia Center a közelben.
Tömegközlekedés, boltok, szolgáltatások pár perc sétára.
Ajánljuk: kezdő lakásnak, befektetésnek (könnyen kiadható).
Ne maradjon le erről a remek lehetőségről azonnal költözhető lakás, kiváló helyen!
Antal Enikő
+36/20-371-2105
Tulajdonságok
Panellakás
Átlagos
Távfűtés egyedi méréssel
1980
Nem adta meg a hirdető
Vedd fel a kapcsolatot a hirdetővel
Antal Enikő OTPip - Budapest IX. kerület Üllői út 21 - OTP Ingatlanpont Iroda Az iroda összes hirdetése
+36 20 371 2
Hitelkalkulátor
Második évtől
219 481 Ft A 13. hónaptól
7,99%
Végig fix Futamidő: 20 év Banki visszahívás
Az OTP Bank munkatársai a neked megfelelő napszakban veszik fel veled a kapcsolatot.Hitelfelvétel esetén akár egy héttel rövidebb lehet az ügyintézés.
Ez az ingatlan a nálunk meglévő adatok alapján azonnali értékbecslésre alkalmas lehet.
A becslés a hirdető által megadott adatokon alapul. A jelen tájékoztatás nem minősül ajánlattételnek és nem teljes körű, az egyes feltételek a hitelbírálat eredményétől függően változhatnak. Kérjük, a részletekről tájékozódj az OTP Bank fiókjaiban vagy az OTP Bank honlapján közzétett vonatkozó Üzletszabályzatokból és Hirdetményekből.
Vedd fel a kapcsolatot a hirdetővel
Antal Enikő OTPip - Budapest IX. kerület Üllői út 21 - OTP Ingatlanpont Iroda Az iroda összes hirdetése
+36 20 371 2
Vedd fel a kapcsolatot a hirdetővel
Antal Enikő OTPip - Budapest IX. kerület Üllői út 21 - OTP Ingatlanpont Iroda Az iroda összes hirdetése
+36 20 371 2
UI_KIT.CHARACTER_COUNTER__COMPONENT.ACTUAL_CHARACTER__SR_ONLY UI_KIT.CHARACTER_COUNTER__COMPONENT.MAXIMUM_CHARACTER__SR_ONLY
Hasonló eladó ingatlanok Újpalota városrészben
Frissítve: 25 napja
11
54 M Ft 1 148 936 Ft/m²
Eladó lakás, Budapest XV. kerület, Újpalota

Frissítve: 1 napja
7
54,9 M Ft 1 568 571 Ft/m²
Eladó lakás, Budapest XV. kerület, Újpalota

Frissítve: ma
6
51,9 M Ft 1 482 857 Ft/m²
Eladó lakás, Budapest XV. kerület, Újpalota


Fedezd fel a
hasonló lakásokat!Még további lakások Budapest XV. kerület, Újpalota városrészben 51 M Ft körüli értékben
Tovább a hirdetésekhez Frissítve: 17 napja
14
53,5 M Ft 1 138 298 Ft/m²
Eladó lakás, Budapest XV. kerület, Újpalota

Feltöltve: 15 napja
5
55 M Ft 1 571 429 Ft/m²
Eladó lakás, Budapest XV. kerület, Újpalota

Frissítve: 9 napja
13
53,5 M Ft 1 138 298 Ft/m²
Eladó lakás, Budapest XV. kerület, Újpalota, Erdőkerülő

