+16 fotó
Hirdetéskód: 8914582
Referenciaszám: M322616-5162852
Feltöltve: 1 napja
Budapest XV. kerület eladó panellakás 1+2 fél szobás: 65 millió Ft
65 millió Ft
1 181 800 Ft/m²
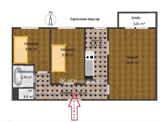
55 m²
1+2 fél szoba
2. emelet
Eladó Lakás, Budapest 15. ker.
Kertvárosi nyugalom, élhető tér - saját ízlésére formálható otthon Rákospalotán!
Rákospalota-Kertváros részen kínálunk megvételre egy 55 négyzetméteres, nappali + 2 hálószobás, erkélyes lakást, amely kiváló választás lehet családoknak vagy azoknak, akik szeretnének egy értékálló ingatlant saját elképzelésük szerint kialakítani.
Ezen a környéken ritkaságnak számít a hasonló adottságú, eladó lakás, NE MARADJON LE RÓLA!
Egy folyamatosan karbantartott, jó állapotú társasházban található ez a mindössze másfél emeletnyi lépcsőzéssel elérhető otthon.
- Élhető elrendezés, valódi térérzet:
Az ingatlan egyik előnye a praktikus, különnyíló elrendezés:
- nappali + 2 hálószoba
- világos, ablakos konyha
- külön fürdőszoba
- külön WC
- nappaliból nyíló, 3 m2-es nyugati tájolású erkély
A nyugati fekvésnek köszönhetően a lakás délutánonként napfényes, meleg hangulatú. Az erkély ideális egy kávéra, esti beszélgetésre vagy egy csendes pihenésre.
Lehetőség azoknak, akik értéket látnak benne
Az ingatlan felújítandó állapotú, így új tulajdonosa teljes mértékben saját igényei szerint alakíthatja ki.
Egy tisztasági festéssel és burkolatcserével akár rövid időn belül költözhetővé tehető, hosszabb távon pedig a gépészeti és nyílászáró korszerűsítés tovább növelheti az értékét.
Ez nem kompromisszum - ez lehetőség.
Kiváló közlekedés, élhető környezet
Sétatávolságra több buszjárat is elérhető, melyekkel közvetlenül megközelíthető:
- Újpest-Központ (170)
- Bosnyák tér (124, 125)
- Mexikói út (225)
- valamint a Budapest-Nyugati - Vác vasútvonal állomásai
Az éjszakai közlekedést a 950-es busz biztosítja.
A parkolás a környéken ingyenes.
Családbarát környezet
Óvoda, játszótér és általános iskola a közelben, biztonságos, kertvárosi hangulatú utcák, nyugodt lakókörnyezet - ideális választás gyermekes családok számára is.
Az ingatlan megfelel az Otthon_Start_Program (Fix3% Lakáshitel Program) feltételeinek.
Felkeltette érdeklődését az általam kínált ingatlan?
Keressen bizalommal!
Referencia szám: M322616
Tulajdonságok
Panellakás
Felújítandó
Házközponti
1983
Nem adta meg a hirdető
Vedd fel a kapcsolatot a hirdetővel
Fodor Zoltán OTPip - Budapest XIII. kerület Pannónia utca 25 - OTP Ingatlanpont Iroda Az iroda összes hirdetése
+36 70 675 2
Hitelkalkulátor
Második évtől
279 726 Ft A 13. hónaptól
7,99%
Végig fix Futamidő: 20 év Banki visszahívás
Az OTP Bank munkatársai a neked megfelelő napszakban veszik fel veled a kapcsolatot.Hitelfelvétel esetén akár egy héttel rövidebb lehet az ügyintézés.
Ez az ingatlan a nálunk meglévő adatok alapján azonnali értékbecslésre alkalmas lehet.
A becslés a hirdető által megadott adatokon alapul. A jelen tájékoztatás nem minősül ajánlattételnek és nem teljes körű, az egyes feltételek a hitelbírálat eredményétől függően változhatnak. Kérjük, a részletekről tájékozódj az OTP Bank fiókjaiban vagy az OTP Bank honlapján közzétett vonatkozó Üzletszabályzatokból és Hirdetményekből.
Vedd fel a kapcsolatot a hirdetővel
Fodor Zoltán OTPip - Budapest XIII. kerület Pannónia utca 25 - OTP Ingatlanpont Iroda Az iroda összes hirdetése
+36 70 675 2
Vedd fel a kapcsolatot a hirdetővel
Fodor Zoltán OTPip - Budapest XIII. kerület Pannónia utca 25 - OTP Ingatlanpont Iroda Az iroda összes hirdetése
+36 70 675 2
UI_KIT.CHARACTER_COUNTER__COMPONENT.ACTUAL_CHARACTER__SR_ONLY UI_KIT.CHARACTER_COUNTER__COMPONENT.MAXIMUM_CHARACTER__SR_ONLY
Hasonló eladó ingatlanok Budapest XV. kerületben
Frissítve: 15 napja
20
68,9 M Ft 1 325 000 Ft/m²
Eladó lakás, Budapest XV. kerület

Frissítve: 15 napja
20
68,9 M Ft 1 325 000 Ft/m²
Eladó lakás, Budapest XV. kerület

Frissítve: 9 napja
20
68,9 M Ft 1 325 000 Ft/m²
Eladó lakás, Budapest XV. kerület


Fedezd fel a
hasonló lakásokat!Még további lakások Budapest XV. kerületben 65 M Ft körüli értékben
Tovább a hirdetésekhez Frissítve: 8 napja
20
68,9 M Ft 1 325 000 Ft/m²
Eladó lakás, Budapest XV. kerület

Frissítve: ma
20
69,5 M Ft 1 544 444 Ft/m²
Eladó lakás, Budapest XV. kerület

Frissítve: 9 napja
20
68,9 M Ft 1 325 000 Ft/m²
Eladó lakás, Budapest XV. kerület


