+12 fotó
Hirdetéskód: 8820675
Referenciaszám: M318003-5103084
Frissítve: 1 napja
Budapest XVII. kerület eladó panellakás 1+2 fél szobás: 70 millió Ft
70 millió Ft
1 296 296 Ft/m²
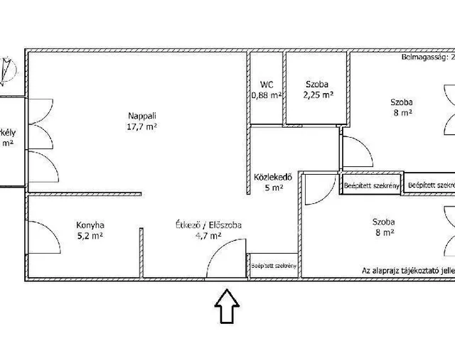
54 m²
1+2 fél szoba
2. emelet
Eladó Lakás, Budapest 17. ker.
Eladó 54 négyzetméteres második emeleti erkélyes panellakás az Újlak utcai lakótelepen. Kiváló adottságai mellett a lakást több felújításon is átesett már az évek során. Zuhanyzós fürdőszoba, egyedi bútorok és klíma berendezések lettek beszerelve. Két éve az összes nyílászárót műanyagra cserélték, majd múlt évben belülről teljesen ki lett festve. A fűtést és a meleg vizet távhőn kapja a lakás, így egyszerre komfortos és kedvező a rezsije. A ház folyamatosan fejleszt, jövőre egyedi hőmennyiségmérők is terveben vannak tovább csökkentve a havi költségeket, de a tetőszigetelés felújítására is gyűjtenek már. A közelben játszótér és bevásárlóközpontok megtalálhatóak. A tömegközlekedés nagyon könnyen elérhető, de mégis távol van a forgalmas zajos utaktól. Az erkély csendes udvarra néz, tájolásának köszönhetően nyáron is kellemes időtöltést tesz lehetővé. Ezt a remek elosztású lakást pároknak vagy családosoknak ajánlom elsősorban, de mindenkinek érdekes lehet aki nyugalmat keres karnyújtásnyira a város sűrűjétől. Ha érdekesnek találta jöjjön el és tekintse meg élőben is! Időpont egyeztetéshez hívjon bizalommal!
Teljes körű ügyintézéssel állunk az eladók és a vevők rendelkezésére! A kínálatunkból választott ingatlan finanszírozásához minősített fogyasztóbarát, piaci és kedvezményes hitel- és lízingkonstrukciókat kínálunk (lakásvásárlási hitel, szabad felhasználású hitel, babaváró hitel, CSOK Plusz intézés, Otthonfelújítási Támogatás, egyéb felújítási hitelek). Az adásvételi szerződés megkötéséhez igény szerint megbízható ügyvédi közreműködést biztosítunk, és segítséget nyújtunk az adásvételhez kapcsolódó egyéb ügyek intézéséhez.
Kérdéseire az esti órákban és hétvégén is szívesen válaszolok! Ha az új ingatlana megvásárlásához a jelenlegi ingatlanát el kell adnia, abban is szívesen segítünk.
Referencia szám: M318003-ZE
Tulajdonságok
Panellakás
Jó állapotú
Távfűtés
1970
Nem adta meg a hirdető
Vedd fel a kapcsolatot a hirdetővel
Tamásné Mocsári Ildikó OTPip - Budapest XIV. kerület Vezér utca 147 - OTP Ingatlanpont Iroda Az iroda összes hirdetése
+36 70 206 2
Hitelkalkulátor
Második évtől
301 248 Ft A 13. hónaptól
7,99%
Végig fix Futamidő: 20 év Banki visszahívás
Az OTP Bank munkatársai a neked megfelelő napszakban veszik fel veled a kapcsolatot.Hitelfelvétel esetén akár egy héttel rövidebb lehet az ügyintézés.
Ez az ingatlan a nálunk meglévő adatok alapján azonnali értékbecslésre alkalmas lehet.
A becslés a hirdető által megadott adatokon alapul. A jelen tájékoztatás nem minősül ajánlattételnek és nem teljes körű, az egyes feltételek a hitelbírálat eredményétől függően változhatnak. Kérjük, a részletekről tájékozódj az OTP Bank fiókjaiban vagy az OTP Bank honlapján közzétett vonatkozó Üzletszabályzatokból és Hirdetményekből.
Vedd fel a kapcsolatot a hirdetővel
Tamásné Mocsári Ildikó OTPip - Budapest XIV. kerület Vezér utca 147 - OTP Ingatlanpont Iroda Az iroda összes hirdetése
+36 70 206 2
Vedd fel a kapcsolatot a hirdetővel
Tamásné Mocsári Ildikó OTPip - Budapest XIV. kerület Vezér utca 147 - OTP Ingatlanpont Iroda Az iroda összes hirdetése
+36 70 206 2
UI_KIT.CHARACTER_COUNTER__COMPONENT.REMAINING_SPACE__SR_ONLYUI_KIT.CHARACTER_COUNTER__COMPONENT.MAXIMUM_CHARACTER__SR_ONLY
Hasonló eladó ingatlanok Budapest XVII. kerületben
Frissítve: 7 napja
20
70 M Ft 1 014 493 Ft/m²
Eladó lakás, Budapest XVII. kerület
Frissítve: 4 hónapja
1
75 M Ft 1 000 000 Ft/m²
Eladó lakás, Budapest XVII. kerület
Frissítve: 20 napja
15
67,49 M Ft 1 205 179 Ft/m²
Eladó lakás, Budapest XVII. kerület


Fedezd fel a
hasonló lakásokat!Még további lakások Budapest XVII. kerületben 70 M Ft körüli értékben
Tovább a hirdetésekhez Frissítve: 23 napja
15
76,9 M Ft 1 011 842 Ft/m²
Eladó lakás, Budapest XVII. kerület

Frissítve: 12 napja
14
76,9 M Ft 1 011 842 Ft/m²
Eladó lakás, Budapest XVII. kerület

Frissítve: 18 napja
15
76,9 M Ft 1 011 842 Ft/m²
Eladó lakás, Budapest XVII. kerület


Töltsd fel hirdetésed ingyenesen!
Egyszerű
