

 +13 fotó 
Hirdetéskód: 8767208
Referenciaszám: M315142-5072886
 Feltöltve: 1 napja 
Budapest XX. kerület eladó panellakás 1 szobás: 56,5 millió Ft
 56,5 millió Ft 
 1 527 027 Ft/m² 
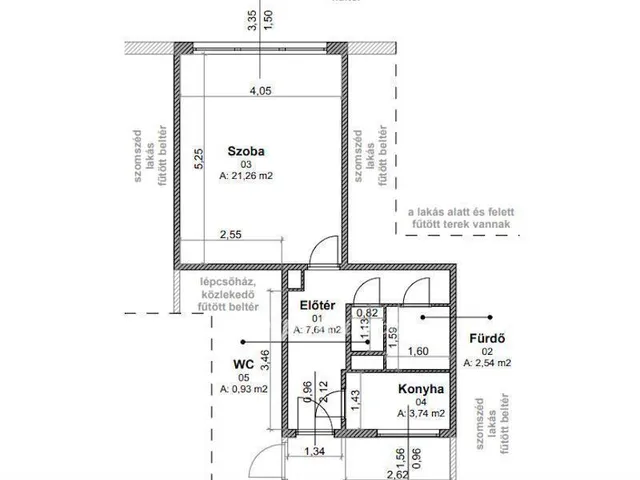
 37 m²  
 1 szoba 
 9. emelet  
Eladó Lakás, Budapest 20. ker.
 Világos, modern garzon Pesterzsébet városközpontjában!
Eladó egy igényesen felújított, napfényes, 37 m²-es lakás az Ady Endre utcában, Pesterzsébet központi részén. Az ingatlan 2020-ban teljes körű felújításon esett át, így minden részletében megújult, minőségi anyagokkal, modern megoldásokkal és átgondolt kialakítással.
A lakásban új laminált parketta, műanyag nyílászárók redőnnyel és szúnyoghálóval, biztonsági bejárati ajtó, új beltéri ajtók, modern burkolatok és szaniterek, valamint teljesen megújult villamos hálózat és radiátorok kaptak helyet. A Gree hűtő-fűtő klíma egész évben komfortos hőmérsékletet biztosít.
A gépesített konyha (Ikea sütő és mikrohullámú, Gorenje hűtő, 4 égős gáztűzhely) tágas és praktikus, a korábbi konyhafal elbontásával egy levegős, nyitott előtér-konyha rész alakult ki. A lakás világos, jól kihasználható terekkel rendelkezik, egyik fala akusztikai panelekkel burkolt, így akár zenéléshez, házimozihoz vagy otthoni stúdióhoz is ideális.
A ház rendezett, barátságos lakóközösséggel rendelkezik, a lakás pedig külön zárható folyosóról nyílik, ami extra biztonságot és nyugalmat ad.
A környék kiváló infrastruktúrával bír: pár perc sétára elérhető a Spar, Interspar, Aldi, Penny, Rossmann, DM, iskola, óvoda és háziorvosi rendelő. A 2B villamos, 151-es, 223-as és 224-es busz megállói néhány perc alatt megközelíthetők, így a közlekedés is remek.
Az ingatlan 1/1 tulajdonú, rendezett tulajdoni lappal rendelkezik, és igény esetén bútorozottan is eladó.
Ez a lakás tökéletes választás lehet első otthonként, fiatal párnak vagy befektetésnek.
Ha felkeltette az érdeklődését, hívjon bizalommal!
Ha az új ingatlana megvásárlásához a jelenlegi ingatlanát el kell adnia, abban is szívesen segítünk. 
Tulajdonságok
Panellakás
Felújított
Távfűtés egyedi méréssel
1980
Nem adta meg a hirdető
Vedd fel a kapcsolatot a hirdetővel
Győri Eszter OTPip - Budapest IX. kerület Üllői út 21 - OTP Ingatlanpont Iroda  Az iroda összes hirdetése 
 +36 70 792 0 
Hitelkalkulátor
 Második évtől 
 243 150 Ft  A 13. hónaptól 
 7,99% 
 Végig fix  Futamidő: 20 év Banki visszahívás
Az OTP Bank munkatársai a neked megfelelő napszakban veszik fel veled a kapcsolatot.Hitelfelvétel esetén akár egy héttel rövidebb lehet az ügyintézés.
Ez az ingatlan a nálunk meglévő adatok alapján azonnali értékbecslésre alkalmas lehet.
 A becslés a hirdető által megadott adatokon alapul. A jelen tájékoztatás nem minősül ajánlattételnek és nem teljes körű, az egyes feltételek a hitelbírálat eredményétől függően változhatnak. Kérjük, a részletekről tájékozódj az OTP Bank fiókjaiban vagy az OTP Bank honlapján közzétett vonatkozó Üzletszabályzatokból és Hirdetményekből. 
Vedd fel a kapcsolatot a hirdetővel
Győri Eszter OTPip - Budapest IX. kerület Üllői út 21 - OTP Ingatlanpont Iroda  Az iroda összes hirdetése 
 +36 70 792 0 
Vedd fel a kapcsolatot a hirdetővel
Győri Eszter OTPip - Budapest IX. kerület Üllői út 21 - OTP Ingatlanpont Iroda  Az iroda összes hirdetése 
 +36 70 792 0 
UI_KIT.CHARACTER_COUNTER__COMPONENT.REMAINING_SPACE__SR_ONLYUI_KIT.CHARACTER_COUNTER__COMPONENT.MAXIMUM_CHARACTER__SR_ONLY
Hasonló eladó ingatlanok Pesterzsébet városrészben
 Feltöltve: 5 hónapja 

 1 
 54,9 M Ft  1 055 769 Ft/m² 
 Eladó lakás, Budapest XX. kerület, Pesterzsébet 
 Frissítve: 1 napja 

 7 
 59,9 M Ft  966 129 Ft/m² 
 Eladó lakás, Budapest XX. kerület, Pesterzsébet 

 Frissítve: 3 hónapja 

 1 
 55 M Ft  1 057 692 Ft/m² 
 Eladó lakás, Budapest XX. kerület, Pesterzsébet 

Fedezd fel a 
hasonló lakásokat!Még további lakások Budapest XX. kerület, Pesterzsébet városrészben 56,5 M Ft körüli értékben
 Tovább a hirdetésekhez  Frissítve: 2 hónapja 
 0 
 57 M Ft  1 000 000 Ft/m² 
 Eladó lakás, Budapest XX. kerület, Pesterzsébet 
 Frissítve: 4 napja 

 7 
 59,9 M Ft  966 129 Ft/m² 
 Eladó lakás, Budapest XX. kerület, Pesterzsébet 

 Frissítve: 1 hónapja 

 7 
 54,9 M Ft  1 483 784 Ft/m² 
 Eladó lakás, Budapest XX. kerület, Pesterzsébet 

Töltsd fel hirdetésed ingyenesen!
Egyszerű 

