

+15 fotó
Hirdetéskód: 8751731
Referenciaszám: M315142-5064138
Feltöltve: 3 napja
Budapest XX. kerület eladó panellakás 1 szobás: 56,5 millió Ft
56,5 millió Ft
1 527 027 Ft/m²
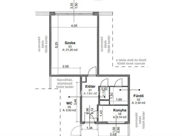
37 m²
1 szoba
9. emelet
Eladó Lakás, Budapest 20. ker.
Eladó igényesen felújított, napfényes és modern lakás Pesterzsébet szívében – Ady Endre utca
Azonnal költözhető, 37 m²-es, modern otthon várja új tulajdonosát Pesterzsébet központjában, csendes, mégis kiváló infrastruktúrával rendelkező környezetben. A lakás 2020-ban teljes körű felújításon esett át, így minden részletében megújult, igényes és gondosan karbantartott állapotban van. A felújítás során megújult a laminált parketta, a nyílászárók, a beltéri és bejárati ajtók, a burkolatok, valamint a teljes villamos hálózat és a radiátorok is. A lakás Gree hűtő-fűtő klímával felszerelt, így minden évszakban komfortos hőmérséklet biztosított.
A modern, gépesített konyha – IKEA sütővel és mikrohullámúval, Gorenje hűtővel és négyégős gáztűzhellyel – kényelmes és átgondolt elrendezésű. A korábbi konyhafal elbontásával tágasabb, világosabb közösségi tér jött létre, ami a mindennapi életet is kellemesebbé teszi. A szoba egyik fala akusztikai panelekkel burkolt, ami ideális választás zenéléshez, házimozihoz vagy akár otthoni stúdió kialakításához is. A lakás rendkívül világos, jó térkihasználású, minden részlete a kényelmet és az otthonosságot szolgálja.
A lakás egy szomszéddal közös, külön zárható folyosóról nyílik, ami extra biztonságot és nyugalmat ad. Igény esetén a teljes bútorzattal együtt is megvásárolható, megegyezés szerint. A tulajdoni lap rendezett, 1/1 tulajdon, így a lakás akár azonnal birtokba vehető.
A ház elhelyezkedése kiemelkedő: Pesterzsébet központjában található, ahol minden fontos szolgáltatás pár perc sétával elérhető. A közelben Spar, Interspar, Aldi, Penny, Rossmann, DM, iskola, óvoda és háziorvosi rendelő is megtalálható. A közlekedés kiváló: a 2B villamos három, a 151-es busz két, a 223-as és 224-es busz pedig mindössze öt perc sétára áll meg, így a belváros gyorsan és kényelmesen elérhető.
Az OTP Ingatlanpont, mint az egyetlen közvetlen banki hátterű ingatlanközvetítő társaság, teljes körű ügyintézéssel segíti mind az eladókat, mind a vevőket. Ügyfeleink számára különböző finanszírozási lehetőségeket kínálunk – lakásvásárlási hitel, CSOK Plusz, Babaváró, szabad felhasználású és céges hitelek, valamint pályázati konstrukciók formájában. Az adásvételi szerződéshez igény esetén megbízható ügyvédi közreműködést biztosítunk, és segítséget nyújtunk az ügymenet minden lépésében. Amennyiben új otthona megvásárlásához a jelenlegi ingatlanát is értékesítenie kell, abban is teljes körű támogatást nyújtunk.
Ez a lakás egy valódi, azonnal költözhető ékszerdoboz Pesterzsébet szívében – ideális választás mind első otthonként, mind befektetésként. Ha felkeltette érdeklődését, hívjon bizalommal, és tekintse meg személyesen!
Referenciaszám: M315142
Tulajdonságok
Panellakás
Felújított
Távfűtés egyedi méréssel
Nem adta meg a hirdető
Vedd fel a kapcsolatot a hirdetővel
Bödör Dóra OTPip - Budapest IX. kerület Üllői út 21 - OTP Ingatlanpont Iroda Az iroda összes hirdetése
+36 30 357 0
Hitelkalkulátor
Második évtől
243 150 Ft A 13. hónaptól
7,99%
Végig fix Futamidő: 20 év Banki visszahívás
Az OTP Bank munkatársai a neked megfelelő napszakban veszik fel veled a kapcsolatot.Hitelfelvétel esetén akár egy héttel rövidebb lehet az ügyintézés.
Ez az ingatlan a nálunk meglévő adatok alapján azonnali értékbecslésre alkalmas lehet.
A becslés a hirdető által megadott adatokon alapul. A jelen tájékoztatás nem minősül ajánlattételnek és nem teljes körű, az egyes feltételek a hitelbírálat eredményétől függően változhatnak. Kérjük, a részletekről tájékozódj az OTP Bank fiókjaiban vagy az OTP Bank honlapján közzétett vonatkozó Üzletszabályzatokból és Hirdetményekből.
Vedd fel a kapcsolatot a hirdetővel
Bödör Dóra OTPip - Budapest IX. kerület Üllői út 21 - OTP Ingatlanpont Iroda Az iroda összes hirdetése
+36 30 357 0
Vedd fel a kapcsolatot a hirdetővel
Bödör Dóra OTPip - Budapest IX. kerület Üllői út 21 - OTP Ingatlanpont Iroda Az iroda összes hirdetése
+36 30 357 0
UI_KIT.CHARACTER_COUNTER__COMPONENT.REMAINING_SPACE__SR_ONLYUI_KIT.CHARACTER_COUNTER__COMPONENT.MAXIMUM_CHARACTER__SR_ONLY
Hasonló eladó ingatlanok Budapest XX. kerületben
Frissítve: 3 napja

20
52,5 M Ft 972 222 Ft/m²
Eladó lakás, Budapest XX. kerület
Frissítve: 17 napja

1
60 M Ft 1 176 470 Ft/m²
Eladó lakás, Budapest XX. kerület
Frissítve: 1 napja

20
61,9 M Ft 923 881 Ft/m²
Eladó lakás, Budapest XX. kerület


Fedezd fel a
hasonló lakásokat!Még további lakások Budapest XX. kerületben 56,5 M Ft körüli értékben
Tovább a hirdetésekhez Frissítve: 2 hónapja

1
57 M Ft 1 000 000 Ft/m²
Eladó lakás, Budapest XX. kerület
Frissítve: ma

20
61,9 M Ft 923 881 Ft/m²
Eladó lakás, Budapest XX. kerület

Frissítve: ma

17
61,9 M Ft 923 881 Ft/m²
Eladó lakás, Budapest XX. kerület


Töltsd fel hirdetésed ingyenesen!
Egyszerű