

+15 fotó
Hirdetéskód: 8751738
Referenciaszám: M315142-5063932
Feltöltve: 3 napja
Budapest XX. kerület eladó panellakás 1 szobás: 56,5 millió Ft
56,5 millió Ft
1 527 027 Ft/m²
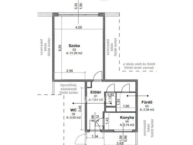
37 m²
1 szoba
9. emelet
Eladó Lakás, Budapest 20. ker.
Eladó igényesen felújított, napfényes és modern lakás Pesterzsébet szívében, az Ady Endre utcában
Azonnal költözhető, 37 m2-es otthon várja új tulajdonosát Pesterzsébet központi részén. A lakás 2020-ban teljes körű felújításon esett át, így minden részletében megújult, minőségi és gondosan karbantartott állapotban van.
A felújítás során megújult:
minőségi laminált parketta
műanyag nyílászárók redőnnyel és szúnyoghálóval
új beltéri ajtók és biztonsági bejárati ajtó
modern burkolatok és szaniterek
teljesen új villamos hálózat és vezetékek
radiátorok
Gree hűtő-fűtő klíma
A modern, gépesített konyha (Ikea sütő és mikrohullámú, Gorenje hűtő, 4 égős gáztűzhely) kényelmes és praktikus elrendezésű. A korábbi konyhafal elbontásával tágasabb, levegősebb előtér és konyharész jött létre.
A lakás rendkívül világos, jól kihasználható terekkel rendelkezik. A szoba egyik fala akusztikai panelekkel burkolt, ami ideális környezetet teremt zenéléshez, házimozihoz vagy otthoni stúdió kialakításához is.
Elhelyezkedés:
A ház Pesterzsébet központjában található, kiváló infrastruktúrával és közlekedéssel.
A közelben: Spar, Interspar, Aldi, Penny, Rossmann, DM, iskola, óvoda, háziorvosi rendelő ? mind néhány perc sétára.
Közlekedés: 2B villamos ? 3 perc, 151-es busz ? 2 perc, 223 és 224-es busz ? 5 perc séta.
A lakás egy szomszéddal közös, külön zárható folyosóról nyílik, ami plusz biztonságot és nyugalmat biztosít.
Igény esetén teljes bútorzattal együtt is eladó, megegyezés szerint.
Tulajdoni lap rendezett, 1/1 tulajdon.
Amennyiben felkeltette érdeklődését, hívjon!
Az OTP Ingatlanpont, mint egyetlen közvetlen banki hátterű ingatlanközvetítő társaság teljes körű ügyintézéssel áll az eladók és a vevők rendelkezésére! A kínálatunkból választott ingatlan finanszírozásához minősített fogyasztóbarát, piaci és kedvezményes hitel- és lízingkonstrukciókat kínálunk (lakásvásárlási hitel, CSOK plusz, szabad felhasználású hitel, babaváró hitel, céges hitelek, pályázatok). Az adásvételi szerződés megkötéséhez igény szerint megbízható ügyvédi közreműködést biztosítunk, és segítséget nyújtunk az adásvételhez kapcsolódó egyéb ügyek intézéséhez.
Ha az új ingatlana megvásárlásához a jelenlegi ingatlanát el kell adnia, abban is szívesen segítünk.
Tulajdonságok
Panellakás
Felújított
Távfűtés egyedi méréssel
D
Vedd fel a kapcsolatot a hirdetővel
Juhász Emese OTPip - Budapest IX. kerület Üllői út 21 - OTP Ingatlanpont Iroda Az iroda összes hirdetése
+36 70 369 0
Hitelkalkulátor
Második évtől
243 150 Ft A 13. hónaptól
7,99%
Végig fix Futamidő: 20 év Banki visszahívás
Az OTP Bank munkatársai a neked megfelelő napszakban veszik fel veled a kapcsolatot.Hitelfelvétel esetén akár egy héttel rövidebb lehet az ügyintézés.
Ez az ingatlan a nálunk meglévő adatok alapján azonnali értékbecslésre alkalmas lehet.
A becslés a hirdető által megadott adatokon alapul. A jelen tájékoztatás nem minősül ajánlattételnek és nem teljes körű, az egyes feltételek a hitelbírálat eredményétől függően változhatnak. Kérjük, a részletekről tájékozódj az OTP Bank fiókjaiban vagy az OTP Bank honlapján közzétett vonatkozó Üzletszabályzatokból és Hirdetményekből.
Vedd fel a kapcsolatot a hirdetővel
Juhász Emese OTPip - Budapest IX. kerület Üllői út 21 - OTP Ingatlanpont Iroda Az iroda összes hirdetése
+36 70 369 0
Vedd fel a kapcsolatot a hirdetővel
Juhász Emese OTPip - Budapest IX. kerület Üllői út 21 - OTP Ingatlanpont Iroda Az iroda összes hirdetése
+36 70 369 0
UI_KIT.CHARACTER_COUNTER__COMPONENT.REMAINING_SPACE__SR_ONLYUI_KIT.CHARACTER_COUNTER__COMPONENT.MAXIMUM_CHARACTER__SR_ONLY
Hasonló eladó ingatlanok Budapest XX. kerületben
Frissítve: 3 napja

20
52,5 M Ft 972 222 Ft/m²
Eladó lakás, Budapest XX. kerület
Frissítve: 17 napja

1
60 M Ft 1 176 470 Ft/m²
Eladó lakás, Budapest XX. kerület
Frissítve: 1 napja

20
61,9 M Ft 923 881 Ft/m²
Eladó lakás, Budapest XX. kerület


Fedezd fel a
hasonló lakásokat!Még további lakások Budapest XX. kerületben 56,5 M Ft körüli értékben
Tovább a hirdetésekhez Frissítve: 2 hónapja

1
57 M Ft 1 000 000 Ft/m²
Eladó lakás, Budapest XX. kerület
Frissítve: ma

20
61,9 M Ft 923 881 Ft/m²
Eladó lakás, Budapest XX. kerület

Frissítve: ma

17
61,9 M Ft 923 881 Ft/m²
Eladó lakás, Budapest XX. kerület


Töltsd fel hirdetésed ingyenesen!
Egyszerű