+12 fotó
Hirdetéskód: 8932990
Feltöltve: 2 napja
Budapest XXI. kerület eladó panellakás 1+2 fél szobás: 62,9 millió Ft
62,9 millió Ft
1 084 483 Ft/m²
58 m²
1+2 fél szoba
6. emelet
Leírás
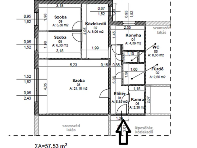
Megvételre kínálunk Csepel központi részén, a Szent István út legelején egy 58nm-es, 6. emeleti, 1+2 szobás, erkélyes panellakást.
A LAKÁS A 3%-OS OTTHONSTART HITEL FELTÉTELEINEK MEGFELEL!
A lakás Csepel belvárosában, a plaza és a hév közelében helyezkedik el.
Innen minden gyalogtávra elérhető.
A lakás egy rendezett panelház hatodik emeletén található.
A ház nem panelprogramos, de minden nyílászáró ki lett cserélve.
A kapualj fel lett újítva, és a lift is új benne.
Minden emeleten hat lakás található, ez egy szélső.
A lakás bejárata ráccsal védett, a rács és a bejárati ajtó között kialakított előtér pedig ideális kerékpár vagy babakocsi tárolására!
Az alaprajza a szokásos 58nm-es , nappali plusz két félszoba, de a konyha mellett közlekedő minden lakásban étkező funkciót tölt be, ez egy harmadik félszoba, mivel ablakos. Elosztása körbejárható, a szobák külön nyílnak, ami kényelmes és praktikus lakhatást biztosít.
A lakásban a nyílászárók ki lettek cserélve, a fürdőszoba, és a wc fel lett újítva.
A lakásban ablakos konyha található, amely világos és jól szellőztethető!
A konyha sem az eredeti, felújításra került.
Az erkély a Csepel focipálya irányába néz, délelőtt süt oda a nap.
Reggeli kávézásokhoz tökéletes élményt nyújt.
Fűtése távfűtés.
A közös költség 18.000.-, a főzéshez a gáz álltalány 4.200.-/ 2 hónap.
Távfűtés 19.000.-
Víz, villany saját óra alapján van elszámolva.
Tökéletes választás családoknak, hiszen semmihez nem kell autóba ülni, minden gyalogtávra van.
A tömegközlekedés is tökéletes, a belváros is könnyen elérhető egy fél óra alatt.
Kérdéseivel keressen bizalommal!
Tulajdonságok
Panellakás
10
Átlagos
Távfűtés
1970
4 m²
Nem adta meg a hirdető
Vedd fel a kapcsolatot a hirdetővel
+36 30 231 6
Hitelkalkulátor
Második évtől
270 693 Ft A 13. hónaptól
7,99%
Végig fix Futamidő: 20 év Banki visszahívás
Az OTP Bank munkatársai a neked megfelelő napszakban veszik fel veled a kapcsolatot.Hitelfelvétel esetén akár egy héttel rövidebb lehet az ügyintézés.
Ez az ingatlan a nálunk meglévő adatok alapján azonnali értékbecslésre alkalmas lehet.
A becslés a hirdető által megadott adatokon alapul. A jelen tájékoztatás nem minősül ajánlattételnek és nem teljes körű, az egyes feltételek a hitelbírálat eredményétől függően változhatnak. Kérjük, a részletekről tájékozódj az OTP Bank fiókjaiban vagy az OTP Bank honlapján közzétett vonatkozó Üzletszabályzatokból és Hirdetményekből.
Vedd fel a kapcsolatot a hirdetővel
+36 30 231 6
Vedd fel a kapcsolatot a hirdetővel
+36 30 231 6
UI_KIT.CHARACTER_COUNTER__COMPONENT.ACTUAL_CHARACTER__SR_ONLY UI_KIT.CHARACTER_COUNTER__COMPONENT.MAXIMUM_CHARACTER__SR_ONLY
Hasonló eladó ingatlanok Csepel Belváros városrészben
Feltöltve: 2 hónapja
18
64,9 M Ft 1 100 000 Ft/m²
Eladó lakás, Budapest XXI. kerület, Csepel Belváros, Kiss János altábornagy utca 65
Feltöltve: 1 hónapja
14
67,9 M Ft 1 131 667 Ft/m²
Eladó lakás, Budapest XXI. kerület, Csepel Belváros

Frissítve: 3 napja
18
63 M Ft 1 086 190 Ft/m²
Eladó lakás, Budapest XXI. kerület, Csepel Belváros


Fedezd fel a
hasonló lakásokat!Még további lakások Budapest XXI. kerület, Csepel Belváros városrészben 62,9 M Ft körüli értékben
Tovább a hirdetésekhez Feltöltve: 1 hónapja
1
66,9 M Ft 1 216 364 Ft/m²
Eladó lakás, Budapest XXI. kerület, Csepel Belváros
Frissítve: 10 napja
11
63,9 M Ft 1 014 286 Ft/m²
Eladó lakás, Budapest XXI. kerület, Csepel Belváros, II Rákóczi Ferenc
Frissítve: ma
18
62 M Ft 1 068 966 Ft/m²
Eladó lakás, Budapest XXI. kerület, Csepel Belváros

