+10 fotó
Hirdetéskód: 8816375
Referenciaszám: 178696-5101176
Feltöltve: 1 napja
Debrecen eladó panellakás 3 szobás: 62,5 millió Ft
62,5 millió Ft
1 157 407 Ft/m²
54 m²
3 szoba
2. emelet
Debrecen kedvelt városrészén társas házi lakás eladó!
Debrecen Tócóskert városrészén társas házi lakás eladó!
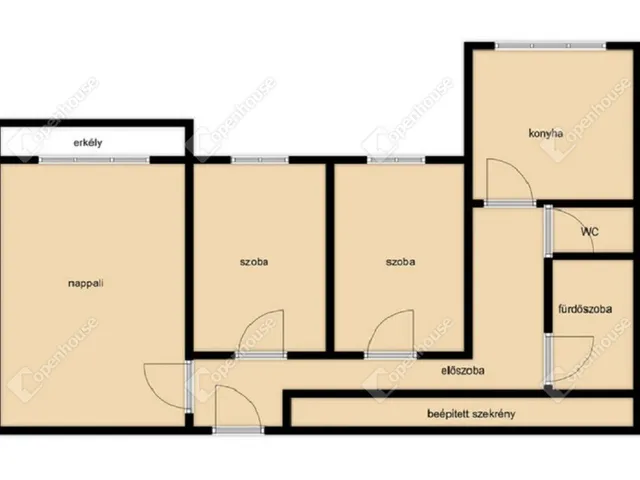
- A lakás 54 nm-es felújított állapotú.
- A lakásban nappali, kettő szoba, konyha, előszoba, fürdőszoba, WC külön helységben található.
- A lakás nappali helysége erkély kapcsolatos, klímával felszerelt. Minden helység külön nyíló.
- A lakás bejárati ajtaja műanyag, a beltéri ajtó fából készültek.
- A lakás nyílászárói fa borításúak, redőnnyel, szúnyoghálóval felszereltek.
- A lakás villanyhálózata felújított.
- Belváros közelében keres? Nem szeretne felújítással foglalkozni?
- Ne habozzon, mert le marad! Hívjon, nézze meg!
Ha felkeltette érdeklődését ez az eladó debreceni társasházi lakás, vagy bármely más társasházi lakás és bővebb információt szeretne, keressen bizalommal.
Hivatkozási szám: #178696
Az Openhouse Debrecen Hadházi úti Ingatlaniroda tagjaként várom Önt az országos hálózatunk teljes kínálatával.
A társasházi lakás vásárláshoz hitelt igényelne? Ingyenes hitelközvetítéssel segít Önnek bankfüggetlen hitelszakértőnk.
További szolgáltatásainkkal (pl. értékbecslés, energetikai tanúsítvány, jogi háttér) is segítjük Önt a vásárlásban.
Az otthon érték. Az ingatlan üzlet.
Tulajdonságok
Panellakás
Jó állapotú
Távfűtés
1989
Nem adta meg a hirdető
Vedd fel a kapcsolatot a hirdetővel
+36 70 467 7
Hitelkalkulátor
Második évtől
268 972 Ft A 13. hónaptól
7,99%
Végig fix Futamidő: 20 év Banki visszahívás
Az OTP Bank munkatársai a neked megfelelő napszakban veszik fel veled a kapcsolatot.Hitelfelvétel esetén akár egy héttel rövidebb lehet az ügyintézés.
Ez az ingatlan a nálunk meglévő adatok alapján azonnali értékbecslésre alkalmas lehet.
A becslés a hirdető által megadott adatokon alapul. A jelen tájékoztatás nem minősül ajánlattételnek és nem teljes körű, az egyes feltételek a hitelbírálat eredményétől függően változhatnak. Kérjük, a részletekről tájékozódj az OTP Bank fiókjaiban vagy az OTP Bank honlapján közzétett vonatkozó Üzletszabályzatokból és Hirdetményekből.
Vedd fel a kapcsolatot a hirdetővel
+36 70 467 7
Vedd fel a kapcsolatot a hirdetővel
+36 70 467 7
UI_KIT.CHARACTER_COUNTER__COMPONENT.REMAINING_SPACE__SR_ONLYUI_KIT.CHARACTER_COUNTER__COMPONENT.MAXIMUM_CHARACTER__SR_ONLY
Hasonló eladó ingatlanok Tócóskert városrészben
Frissítve: 1 hónapja
11
58,3 M Ft 883 333 Ft/m²
Eladó lakás, Debrecen, Tócóskert, Derék utca
Frissítve: 2 napja
20
56,9 M Ft 875 385 Ft/m²
Eladó lakás, Debrecen, Tócóskert
Feltöltve: 6 hónapja
12
64,99 M Ft 955 735 Ft/m²
Eladó lakás, Debrecen, Tócóskert


Fedezd fel a
hasonló lakásokat!Még további lakások Debrecen, Tócóskert városrészben 62,5 M Ft körüli értékben
Tovább a hirdetésekhez Frissítve: 13 napja
18
61,9 M Ft 736 905 Ft/m²
Eladó lakás, Debrecen, Tócóskert
Frissítve: 2 hónapja
20
66,9 M Ft 904 054 Ft/m²
Eladó lakás, Debrecen, Tócóskert
Frissítve: 11 napja
12
61,5 M Ft 1 138 889 Ft/m²
Eladó lakás, Debrecen, Tócóskert


Töltsd fel hirdetésed ingyenesen!
Egyszerű
