

+5 fotó
Hirdetéskód: 8741464
Referenciaszám: 388238
Feltöltve: 1 napja
Komárom eladó panellakás 4 szobás: 76,58 millió Ft
76,58 millió Ft
945 432 Ft/m²
81 m²
4 szoba
földszint
Eladó panellakás Komárom, 81nm, 76.580.000Ft - Laktanya köz
ÚJ ÉPÍTÉSŰ LAKÁS KOMÁROMBAN!
-modern
-kulcsrakész
-energiatakarékos
-akadálymentesített
Komáromban a városközponthoz, buszpályaudvarhoz és vasútállomáshoz közel, a Laktanya köz 7. sz. alatt kerül kialakításra egy 24 lakásos társasház, mely két ütemben (12-12 lakással) készül el.
A négyszintes épületben található felvonó akadálymentesen is megközelíthető. A földszinten kettő, az első és második emeleten négy-négy, illetve a legfelső szinten 2 db penthouse lakás kerül kialakításra.
Minden lakáshoz tartozik egy önálló, földszinti tároló, valamint 1 db zárt udvarban található kocsibeálló.
Az épület teljes szerkezete vasbeton kéregelemes (Leier) technológiával készül. Az energetikai követelményeknek való megfelelést a megfelelő vastagságú hőszigetelés, korszerű nyílászárók és épületgépészeti rendszer biztosítja.
Az épület homlokzaton 20 cm EPS szigetelés készül. A lapostetőn minimum 22 cm vastag EPS hőszigetelés, a terasztetőn minimum 15 cm PIR hőszigetelés készül.
Az épületbe laminált parketta burkolat és mázas kerámia burkolat kerül beépítésre. Teraszokon fagyálló, csúszásmentes greslap burkolat készül. A lépcsőházakban és a közlekedési útvonalakon szintén csúszásmentes, greslap burkolat lesz. A tetőteraszok burkolata 3 cm vastag nyílthézagos fagyálló kő burkolat.
A nyílászárók 3 rétegű hőszigetelő üvegezéssel ellátottak. Ezen nyílászárók minimum „u” értéke 0,81 W/m2K. A nyílászárók fehér színben kerülnek kivitelezésre.
Az épületben a villamos mérés lakásonként főmérővel történik.
A laskásokban a vécék és a fürdőszobák szellőzésére gépi elszívás kerül beépítésre.
Az épület fűtését központilag levegő-víz hőszivattyú rendszer biztosítja a mennyezet hűtés-fűtés által, kiegészítő padlófűtéssel.
A főbejáratnál elhelyezett kaputelefon lakásonként biztosít csengetési lehetőséget, a mágneszárral ellátott külső főbejárati ajtó minden lakásból távműködtetéssel nyitható.
Tervezett átadás 2025 év vége.
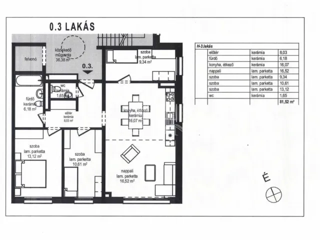
F.3. lakás
- nappali + 3 szoba
- 81,52 m2
- 76.580.000 Ft ...TOVÁBBI, TÖBBEZRES INGATLAN KÍNÁLAT: www.gdn-ingatlan.hu - GDN azonosító: 388238
Tulajdonságok
Panellakás
Új építésű
Hőszivattyú
2025
Nem adta meg a hirdető
Vedd fel a kapcsolatot a hirdetővel
+36 30 237 2
Hitelkalkulátor
Második évtől
329 565 Ft A 13. hónaptól
7,99% 8,49%
Végig fix Futamidő: 20 év Banki visszahívás
Az OTP Bank munkatársai a neked megfelelő napszakban veszik fel veled a kapcsolatot. A becslés a hirdető által megadott adatokon alapul. A jelen tájékoztatás nem minősül ajánlattételnek és nem teljes körű, az egyes feltételek a hitelbírálat eredményétől függően változhatnak. Kérjük, a részletekről tájékozódj az OTP Bank fiókjaiban vagy az OTP Bank honlapján közzétett vonatkozó Üzletszabályzatokból és Hirdetményekből.
Vedd fel a kapcsolatot a hirdetővel
+36 30 237 2
Vedd fel a kapcsolatot a hirdetővel
+36 30 237 2
UI_KIT.CHARACTER_COUNTER__COMPONENT.REMAINING_SPACE__SR_ONLYUI_KIT.CHARACTER_COUNTER__COMPONENT.MAXIMUM_CHARACTER__SR_ONLY
Hasonló eladó ingatlanok Komáromban
Frissítve: 17 napja

18
Gesztenye-liget Komárom
71,78 M Ft 71 780 000 Ft/m²
Eladó lakás, Komárom, Vállalkozók útja

Frissítve: 22 napja

20
81,06 M Ft 779 404 Ft/m²
Eladó lakás, Komárom
Frissítve: ma

10
69,35 M Ft 1 019 912 Ft/m²
Eladó lakás, Komárom


Fedezd fel a
hasonló lakásokat!Még további lakások Komáromban 76,58 M Ft körüli értékben
Tovább a hirdetésekhez Frissítve: ma

10
69,35 M Ft 1 019 912 Ft/m²
Eladó lakás, Komárom

Frissítve: 1 napja

11
Insula Lakópark
76,58 M Ft 933 902 Ft/m²
Eladó lakás, Komárom
Frissítve: 1 napja

11
Insula Lakópark
77,45 M Ft 992 949 Ft/m²
Eladó lakás, Komárom

Töltsd fel hirdetésed ingyenesen!
Egyszerű