

+4 fotó
Hirdetéskód: 8741479
Referenciaszám: 388334
Feltöltve: 1 napja
Komárom eladó panellakás 2 szobás: 63,89 millió Ft
63,89 millió Ft
1 161 636 Ft/m²
55 m²
2 szoba
2. emelet
Eladó panellakás Komárom, 55nm, 63.890.000Ft - Laktanya köz
ÚJ ÉPÍTÉSŰ LAKÁS KOMÁROMBAN!
-modern
-kulcsrakész
-energiatakarékos
-akadálymentesített
Komáromban a városközponthoz, buszpályaudvarhoz és vasútállomáshoz közel, a Laktanya köz 7. sz. alatt kerül kialakításra egy 24 lakásos társasház, mely két ütemben (12-12 lakással) készül el.
A négyszintes épületben található felvonó akadálymentesen is megközelíthető. A földszinten kettő, az első és második emeleten négy-négy, illetve a legfelső szinten 2 db penthouse lakás kerül kialakításra.
Minden lakáshoz tartozik egy önálló, földszinti tároló, valamint 1 db zárt udvarban található kocsibeálló.
Az épület teljes szerkezete vasbeton kéregelemes (Leier) technológiával készül. Az energetikai követelményeknek való megfelelést a megfelelő vastagságú hőszigetelés, korszerű nyílászárók és épületgépészeti rendszer biztosítja.
Az épület homlokzaton 20 cm EPS szigetelés készül. A lapostetőn minimum 22 cm vastag EPS hőszigetelés, a terasztetőn minimum 15 cm PIR hőszigetelés készül.
Az épületbe laminált parketta burkolat és mázas kerámia burkolat kerül beépítésre. Teraszokon fagyálló, csúszásmentes greslap burkolat készül. A lépcsőházakban és a közlekedési útvonalakon szintén csúszásmentes, greslap burkolat lesz. A tetőteraszok burkolata 3 cm vastag nyílthézagos fagyálló kő burkolat.
A nyílászárók 3 rétegű hőszigetelő üvegezéssel ellátottak. Ezen nyílászárók minimum „u” értéke 0,81 W/m2K. A nyílászárók fehér színben kerülnek kivitelezésre.
Az épületben a villamos mérés lakásonként főmérővel történik.
A laskásokban a vécék és a fürdőszobák szellőzésére gépi elszívás kerül beépítésre.
Az épület fűtését központilag levegő-víz hőszivattyú rendszer biztosítja a mennyezet hűtés-fűtés által, kiegészítő padlófűtéssel.
A főbejáratnál elhelyezett kaputelefon lakásonként biztosít csengetési lehetőséget, a mágneszárral ellátott külső főbejárati ajtó minden lakásból távműködtetéssel nyitható.
Tervezett átadás 2025 év vége.
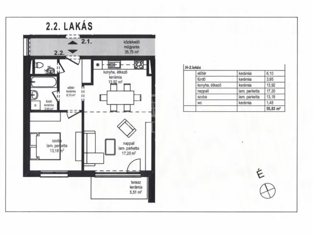
2.2. lakás
- nappali + 1 szoba
- 61,34 m2
- 63.890.000 Ft ...TOVÁBBI, TÖBBEZRES INGATLAN KÍNÁLAT: www.gdn-ingatlan.hu - GDN azonosító: 388334
Tulajdonságok
Panellakás
Új építésű
Hőszivattyú
2025
5 m²
Nem adta meg a hirdető
Vedd fel a kapcsolatot a hirdetővel
+36 30 237 2
Hitelkalkulátor
Második évtől
274 953 Ft A 13. hónaptól
7,99% 8,49%
Végig fix Futamidő: 20 év Banki visszahívás
Az OTP Bank munkatársai a neked megfelelő napszakban veszik fel veled a kapcsolatot. A becslés a hirdető által megadott adatokon alapul. A jelen tájékoztatás nem minősül ajánlattételnek és nem teljes körű, az egyes feltételek a hitelbírálat eredményétől függően változhatnak. Kérjük, a részletekről tájékozódj az OTP Bank fiókjaiban vagy az OTP Bank honlapján közzétett vonatkozó Üzletszabályzatokból és Hirdetményekből.
Vedd fel a kapcsolatot a hirdetővel
+36 30 237 2
Vedd fel a kapcsolatot a hirdetővel
+36 30 237 2
UI_KIT.CHARACTER_COUNTER__COMPONENT.REMAINING_SPACE__SR_ONLYUI_KIT.CHARACTER_COUNTER__COMPONENT.MAXIMUM_CHARACTER__SR_ONLY
Hasonló eladó ingatlanok Komáromban
Frissítve: 17 napja

19
Gesztenye-liget Komárom
63,4 M Ft 63 400 000 Ft/m²
Eladó lakás, Komárom, Vállalkozók útja

Frissítve: 16 napja

9
Gyermekváros Lakópark
60,89 M Ft 1 170 923 Ft/m²
Eladó lakás, Komárom

Frissítve: 16 napja

4
Várfal utca
59,44 M Ft 1 061 357 Ft/m²
Eladó lakás, Komárom


Fedezd fel a
hasonló lakásokat!Még további lakások Komáromban 63,89 M Ft körüli értékben
Tovább a hirdetésekhez Frissítve: 16 napja

8
Várfal utca
67,83 M Ft 1 012 388 Ft/m²
Eladó lakás, Komárom

Frissítve: 16 napja

12
Várfal utca
62,52 M Ft 1 116 429 Ft/m²
Eladó lakás, Komárom

Frissítve: 16 napja

4
Várfal utca
57,8 M Ft 1 032 214 Ft/m²
Eladó lakás, Komárom


Töltsd fel hirdetésed ingyenesen!
Egyszerű