+12 fotó
Hirdetéskód: 8843509
Referenciaszám: M319790-5119223
Feltöltve: ma
Miskolc eladó panellakás 2 szobás: 27,49 millió Ft
27,49 millió Ft
499 818 Ft/m²
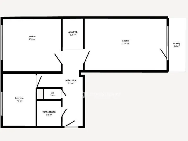
55 m²
2 szoba
4. emelet
Eladó Lakás, Miskolc
Eladó Miskolc Avason a Szentgyörgy utca központi, jó lokációjú részén egy 55 nm-es, 2 különnyíló szobás + gardróbos, felújított távfűtéses lakás 10 emeletes panelépület 4. emeletén. A felújítás érintette a nyílászárók cseréjét hőszigetelt műanyag ablakokra, új, több ponton záródó biztonsági bejárati ajtó került beszerelésre. A lakás gépészeti felújításon esett át.
A nappaliban egy vadonatúj, garanciális Gree hűtő-fűtő klíma gondoskodik a kellemes hőmérsékletről. Az erkélyen a burkolatok és üvegek cseréje megtörtént. A szobák laminált parkettával, a többi helyiség járólappal burkolt, a falak festettek.
A lakás kiváló elhelyezkedésű: a közelben boltok, iskola, óvoda, orvosi rendelő, posta és buszmegállók is kényelmes sétatávolságra találhatóak. A parkolás a ház körül ingyenesen megoldott.
Ideális választás fiatal pároknak, egyetemistáknak (a Miskolci Egyetem közelsége miatt) idősebb korosztálynak, befektetőknek, hiszen az ingatlan állapota miatt magas áron bérbe adható. Várom hívását megtekintésért!
27490000 Ft
Referencia szám: M319790
Tulajdonságok
Panellakás
Jó állapotú
Távfűtés
1980
Nem adta meg a hirdető
Vedd fel a kapcsolatot a hirdetővel
+36 70 637 8
Hitelkalkulátor
Második évtől
118 304 Ft A 13. hónaptól
7,99%
Végig fix Futamidő: 20 év Banki visszahívás
Az OTP Bank munkatársai a neked megfelelő napszakban veszik fel veled a kapcsolatot.Hitelfelvétel esetén akár egy héttel rövidebb lehet az ügyintézés.
Ez az ingatlan a nálunk meglévő adatok alapján azonnali értékbecslésre alkalmas lehet.
A becslés a hirdető által megadott adatokon alapul. A jelen tájékoztatás nem minősül ajánlattételnek és nem teljes körű, az egyes feltételek a hitelbírálat eredményétől függően változhatnak. Kérjük, a részletekről tájékozódj az OTP Bank fiókjaiban vagy az OTP Bank honlapján közzétett vonatkozó Üzletszabályzatokból és Hirdetményekből.
Vedd fel a kapcsolatot a hirdetővel
+36 70 637 8
Vedd fel a kapcsolatot a hirdetővel
+36 70 637 8
UI_KIT.CHARACTER_COUNTER__COMPONENT.REMAINING_SPACE__SR_ONLYUI_KIT.CHARACTER_COUNTER__COMPONENT.MAXIMUM_CHARACTER__SR_ONLY
Hasonló eladó ingatlanok Miskolcon
Frissítve: ma
2
29 M Ft 527 273 Ft/m²
Eladó lakás, Miskolc

Frissítve: 18 napja
18
29,8 M Ft 541 818 Ft/m²
Eladó lakás, Miskolc, Klapka György utca

Frissítve: 9 hónapja
1
30 M Ft 555 556 Ft/m²
Eladó lakás, Miskolc, Bajcsy-Zsilinszky utca

Fedezd fel a
hasonló lakásokat!Még további lakások Miskolcon 27,49 M Ft körüli értékben
Tovább a hirdetésekhez Frissítve: 17 napja
15
25,4 M Ft 498 040 Ft/m²
Eladó lakás, Miskolc

Frissítve: 15 napja
15
25,4 M Ft 498 039 Ft/m²
Eladó lakás, Miskolc

Frissítve: 15 napja
15
25,4 M Ft 498 039 Ft/m²
Eladó lakás, Miskolc

