+12 fotó
Hirdetéskód: 8849483
Referenciaszám: M318298-5123402
Feltöltve: 3 napja
Miskolc eladó panellakás 2 szobás: 33 millió Ft
33 millió Ft
600 000 Ft/m²
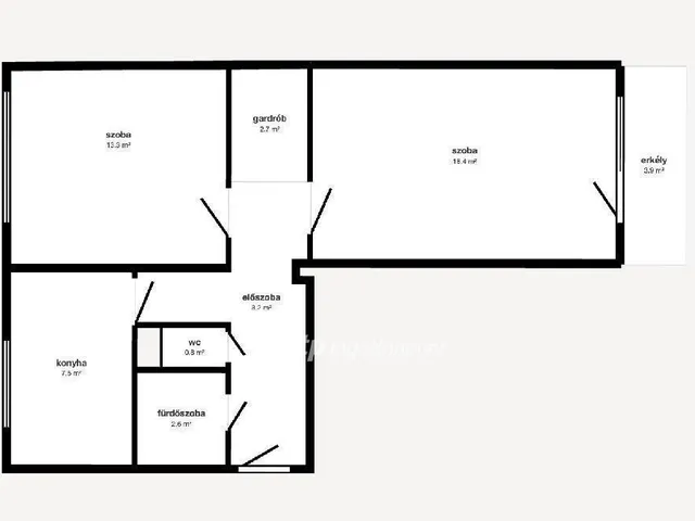
55 m²
2 szoba
2. emelet
Eladó Lakás, Miskolc
Eladó Miskolc egyik kedvelt részén, Újgyőri főtér szomszédságában, a Károly utcában, egy 55 nm-es, 2 szobás, második emeleti, tehermentes panel lakás!
A lakás átlagos állapotú, jól elrendezéssel rendelkezik. A két szoba parkettás, a többi helyiség járólappal burkolt. A nyílászárók műanyag, hőszigetelt ablakok redőnnyel, a lépcsőház pedig zárható, tiszta és rendezett.
A társasház 1986-ban épült, és külön előnye, hogy a lépcsőház saját kazánnal, teljesen egyedi fűtési rendszerrel rendelkezik ? ez kedvező fenntartási költségeket biztosít. Nagyszobában klíma is elhelyezésre került, beépített szekrény és a konyhabútor a vételár részét képezi, pince is tartozik hozzá.
A környék csendes, rendezett, a lakóközösség jó, a közelben villamosmegálló, buszmegálló.
Ideális választás első lakásnak, befektetésnek vagy kisebb család számára.
Banki háttérrel, teljes körű ügyintézéssel segítem a vásárlást! Otthon Start Hitelprogram, CSOK Plusz és lakáshitel ügyintézésben is támogatást nyújtok díjmentesen! Érdeklődés esetén hivatkozzon M318298 azonosítási számra.
Referencia szám: M318298
Tulajdonságok
Panellakás
Átlagos
Gázkazán
1986
D
Vedd fel a kapcsolatot a hirdetővel
Csantavéri Krisztián OTPip - Miskolc Corvin utca 1-3 - OTP Ingatlanpont Iroda Az iroda összes hirdetése
+36 30 676 3
Hitelkalkulátor
Második évtől
142 017 Ft A 13. hónaptól
7,99%
Végig fix Futamidő: 20 év Banki visszahívás
Az OTP Bank munkatársai a neked megfelelő napszakban veszik fel veled a kapcsolatot.Hitelfelvétel esetén akár egy héttel rövidebb lehet az ügyintézés.
Ez az ingatlan a nálunk meglévő adatok alapján azonnali értékbecslésre alkalmas lehet.
A becslés a hirdető által megadott adatokon alapul. A jelen tájékoztatás nem minősül ajánlattételnek és nem teljes körű, az egyes feltételek a hitelbírálat eredményétől függően változhatnak. Kérjük, a részletekről tájékozódj az OTP Bank fiókjaiban vagy az OTP Bank honlapján közzétett vonatkozó Üzletszabályzatokból és Hirdetményekből.
Vedd fel a kapcsolatot a hirdetővel
Csantavéri Krisztián OTPip - Miskolc Corvin utca 1-3 - OTP Ingatlanpont Iroda Az iroda összes hirdetése
+36 30 676 3
Vedd fel a kapcsolatot a hirdetővel
Csantavéri Krisztián OTPip - Miskolc Corvin utca 1-3 - OTP Ingatlanpont Iroda Az iroda összes hirdetése
+36 30 676 3
UI_KIT.CHARACTER_COUNTER__COMPONENT.REMAINING_SPACE__SR_ONLYUI_KIT.CHARACTER_COUNTER__COMPONENT.MAXIMUM_CHARACTER__SR_ONLY
Hasonló eladó ingatlanok Miskolcon
Frissítve: 6 napja
13
34 M Ft 629 630 Ft/m²
Eladó lakás, Miskolc

Frissítve: 27 napja
18
29,8 M Ft 541 818 Ft/m²
Eladó lakás, Miskolc, Klapka György utca

Frissítve: 10 hónapja
1
30 M Ft 555 556 Ft/m²
Eladó lakás, Miskolc, Bajcsy-Zsilinszky utca

Fedezd fel a
hasonló lakásokat!Még további lakások Miskolcon 33 M Ft körüli értékben
Tovább a hirdetésekhez Frissítve: 5 napja
19
35 M Ft 530 303 Ft/m²
Eladó lakás, Miskolc

Frissítve: 27 napja
3
34,99 M Ft 636 182 Ft/m²
Eladó lakás, Miskolc, Felsőruzsin körút

Frissítve: 6 napja
5
31,99 M Ft 780 244 Ft/m²
Eladó lakás, Miskolc


