+9 fotó
Hirdetéskód: 8938326
Referenciaszám: M324672-5180656
Frissítve: 1 hónapja
Miskolc eladó panellakás 1+2 fél szobás: 29,99 millió Ft
29,99 millió Ft
555,4 ezer Ft/m²
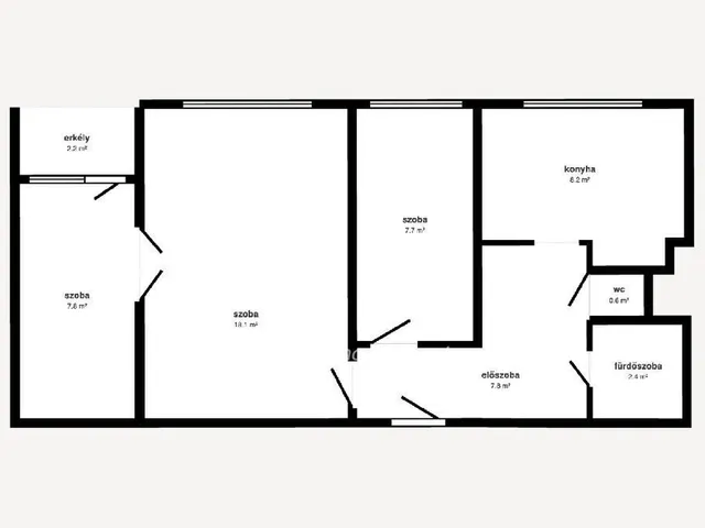
54 m²
1+2 fél szoba
3. emelet
Eladó Lakás, Miskolc
ELADÓ EGY+KÉT FÉLSZOBÁS ERKÉLYES KLÍMÁS LAKÁS A KÖZÉPSZEREN! Eladó a Középszer utcában egy 54 nm-es, egy + két félszobás, erkélyes, klímás, részben felújított, harmadik emeleti, tehermentes panellakás! Ablakai hőszigeteltek, bejárati ajtó kicserélve, fürdő és wc a kád kivételével felújítva, villamoshálózat a konyha és fürdő felé átvezetékelve. Lépcsőháza tiszta rendes, a szomszédok kulturáltak. Kilátás a parkos domboldalra, parkolás a ház előtt ingyenes. Tömegközlekedés, üzletek, iskola pár percre. Várom hívását hétvégén is!
OTP Banki hátterünknek köszönhetően finanszírozási igényekben (pl. Otthon Start Hitelprogram, Babaváró, Falusi CSOK, CSOK Plusz, Lakáshitel, Személyi kölcsön stb.), illetve biztosítások tekintetében is díjmentesen, soron kívüli ügyintézéssel segítem ügyfeleim! Referenciaszám: M324672
Virtuális séta:
Tulajdonságok
Panellakás
Jó állapotú
Távfűtés
1973
Nem adta meg a hirdető
Vedd fel a kapcsolatot a hirdetővel

Spéth Gábor György
OTPip - Miskolc Szemere Bertalan utca 20 - OTP Ingatlanpont Iroda
Az iroda összes hirdetése +36 20 361 5
Hitelkalkulátor
Második évtől
129 063 Ft A 13. hónaptól
7,99%
Végig fix Futamidő: 20 év Banki visszahívás
Az OTP Bank munkatársai a neked megfelelő napszakban veszik fel veled a kapcsolatot.Hitelfelvétel esetén akár egy héttel rövidebb lehet az ügyintézés.
Ez az ingatlan a nálunk meglévő adatok alapján azonnali értékbecslésre alkalmas lehet.
A becslés a hirdető által megadott adatokon alapul. A jelen tájékoztatás nem minősül ajánlattételnek és nem teljes körű, az egyes feltételek a hitelbírálat eredményétől függően változhatnak. Kérjük, a részletekről tájékozódj az OTP Bank fiókjaiban vagy az OTP Bank honlapján közzétett vonatkozó Üzletszabályzatokból és Hirdetményekből.
Vedd fel a kapcsolatot a hirdetővel

Spéth Gábor György
OTPip - Miskolc Szemere Bertalan utca 20 - OTP Ingatlanpont Iroda
Az iroda összes hirdetése +36 20 361 5
Vedd fel a kapcsolatot a hirdetővel

Spéth Gábor György
OTPip - Miskolc Szemere Bertalan utca 20 - OTP Ingatlanpont Iroda
Az iroda összes hirdetése +36 20 361 5
UI_KIT.CHARACTER_COUNTER__COMPONENT.ACTUAL_CHARACTER__SR_ONLY UI_KIT.CHARACTER_COUNTER__COMPONENT.MAXIMUM_CHARACTER__SR_ONLY
Hasonló eladó ingatlanok Miskolcon
Frissítve: 1 hónapja
14
29,9 millió Ft 586,3 ezer Ft/m²
Eladó lakás, Miskolc

Frissítve: 22 napja
8
31,5 millió Ft 572,7 ezer Ft/m²
Eladó lakás, Miskolc, Szentgyörgy út

Frissítve: 1 hónapja
18
31 millió Ft 607,8 ezer Ft/m²
Eladó lakás, Miskolc


Fedezd fel a
hasonló lakásokat!Még további lakások Miskolcon 29,99 M Ft körüli értékben
Tovább a hirdetésekhez Frissítve: 10 hónapja
1
28,5 millió Ft 491,4 ezer Ft/m²
Eladó lakás, Miskolc
Frissítve: 1 hónapja
11
28,5 millió Ft 527,8 ezer Ft/m²
Eladó lakás, Miskolc

Frissítve: 1 hónapja
11
31,9 millió Ft 559,6 ezer Ft/m²
Eladó lakás, Miskolc

