+11 fotó
Hirdetéskód: 8986856
Referenciaszám: M326220-5211945
Feltöltve: ma
Miskolc eladó panellakás 2 szobás: 25,9 millió Ft
25,9 millió Ft
488,7 ezer Ft/m²
53 m²
2 szoba
4. emelet
Eladó Lakás, Miskolc
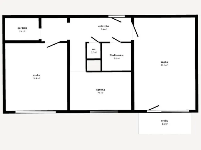
Miskolcon, a Győri kapuban kínálunk megvételre egy 53 nm-es, 2 szobás, erkélyes lakást egy 4 emeletes panel építésű társasház 4. emeletén. Az ingatlan jó elosztású, jelenlegi állapotában azonnal birtokba vehető, ugyanakkor igény szerint felújítást igényel, így az új tulajdonos saját ízlése és elképzelései szerint formálhatja. A nyílászárók már korszerű, műanyag ablakokra lettek cserélve, az ingatlan fűtéséről,(+ meleg vízről) pedig a távhő gondoskodik radiátoros hőleadókon keresztül. Elhelyezkedését tekintve kiváló , valamint rezsiköltsége is rendkívül kedvező. Buszmegálló, villamosmegálló, boltok, posta, óvoda, iskola mind néhány perc sétára találhatók. Az ingatlan rövid időn belül költözhető, így saját célra, valamint befektetőknek is egyaránt kiváló választás. Kérem tekintse meg virtuális sétámat is. Jöjjön el, tegyen egy ajánlatot és biztosan meg fogunk tudni egyezni! Várom hívását akár hétvégén is! OTP Banki hátterünknek köszönhetően finanszírozási igényekben (pl. Otthon Start Hitelprogram, Babaváró, Falusi CSOK, CSOK Plusz, Lakáshitel, Személyi kölcsön stb.), illetve biztosítások tekintetében is állunk ügyfeleink rendelkezésére! Az adásvételhez pedig megbízható ügyvédi közreműködést biztosítunk. Hívása során hivatkozzon az M326220-as referenciaszámra.
Referencia szám: M326220
Tulajdonságok
Panellakás
Átlagos
Távfűtés
1977
Nem adta meg a hirdető
Vedd fel a kapcsolatot a hirdetővel

Piskóti Tibor Lajos
OTPip - Miskolc Szemere Bertalan utca 20 - OTP Ingatlanpont Iroda
Az iroda összes hirdetése +36 70 322 2
Hitelkalkulátor
Második évtől
111 462 Ft A 13. hónaptól
7,99%
Végig fix Futamidő: 20 év Banki visszahívás
Az OTP Bank munkatársai a neked megfelelő napszakban veszik fel veled a kapcsolatot.Hitelfelvétel esetén akár egy héttel rövidebb lehet az ügyintézés.
Ez az ingatlan a nálunk meglévő adatok alapján azonnali értékbecslésre alkalmas lehet.
A becslés a hirdető által megadott adatokon alapul. A jelen tájékoztatás nem minősül ajánlattételnek és nem teljes körű, az egyes feltételek a hitelbírálat eredményétől függően változhatnak. Kérjük, a részletekről tájékozódj az OTP Bank fiókjaiban vagy az OTP Bank honlapján közzétett vonatkozó Üzletszabályzatokból és Hirdetményekből.
Vedd fel a kapcsolatot a hirdetővel

Piskóti Tibor Lajos
OTPip - Miskolc Szemere Bertalan utca 20 - OTP Ingatlanpont Iroda
Az iroda összes hirdetése +36 70 322 2
Vedd fel a kapcsolatot a hirdetővel

Piskóti Tibor Lajos
OTPip - Miskolc Szemere Bertalan utca 20 - OTP Ingatlanpont Iroda
Az iroda összes hirdetése +36 70 322 2
UI_KIT.CHARACTER_COUNTER__COMPONENT.ACTUAL_CHARACTER__SR_ONLY UI_KIT.CHARACTER_COUNTER__COMPONENT.MAXIMUM_CHARACTER__SR_ONLY
Hasonló eladó ingatlanok Miskolcon
Frissítve: 9 napja
1
24,2 millió Ft 590,2 ezer Ft/m²
Eladó lakás, Miskolc
Frissítve: 20 napja
19
27 millió Ft 509,4 ezer Ft/m²
Eladó lakás, Miskolc

Frissítve: 14 napja
8
26,9 millió Ft 560,4 ezer Ft/m²
Eladó lakás, Miskolc


Fedezd fel a
hasonló lakásokat!Még további lakások Miskolcon 25,9 M Ft körüli értékben
Tovább a hirdetésekhez Frissítve: 20 napja
13
27,9 millió Ft 536,5 ezer Ft/m²
Eladó lakás, Miskolc

Feltöltve: 25 napja
20
24,5 millió Ft 700 ezer Ft/m²
Eladó lakás, Miskolc

Frissítve: 18 napja
16
26,99 millió Ft 710,3 ezer Ft/m²
Eladó lakás, Miskolc
